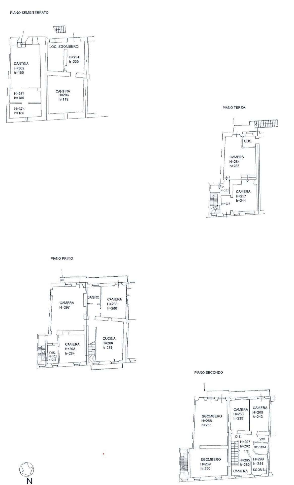
Vendesi immobile di circa 800 mq, integralmente da ristrutturare, articolato in quattro edifici distinti ma contigui, nel centro di Montechiaro, con due arie, una verso la valle, e l'altra sulla via...
Ribassato -7% Questa meravigliosa villa indipendente situata a Montechiaro d'Asti una vera e propria oasi di pace e tranquillit. Costruita nel lontano 1971, stata mantenuta con cura e attenzione, risultando in uno...
In via Piesenzana, nel centro di Montechiaro d'Asti, ampio immobile completamente da ristrutturare, ideale per chi cerca un investimento nel cuore del Monferrato, con molteplici possibilit, adatto...
A Montechiaro d'Asti, caratteristico borgo collinare del Monferrato, noto per il suo patrimonio storico, i paesaggi mozzafiato e la qualit della vita, ampio terreno edificabile di circa 4400 mq., in...
Stai cercando Case e Immobili in vendita a Montechiaro d'Asti? Su PCase.it puoi trovare diversi annunci immobiliari di Case e Immobili in vendita a Montechiaro d'Asti affini alla tua ricerca, ogni giorno tanti nuovi inserimenti e abbassamenti di prezzo da agenzie immobiliari di fiducia, costruttori esperti e privati che offrono le migliori case e immobili corredate da descrizioni complete, foto, video e mappe. Scopri com'č facile trovare subito la tua nuova casa online in vendita a Montechiaro d'Asti.