Preferiti

Sponsorizza

Stampa

Ufficio in vendita con giardino a Viareggio in via battisti

  • 550.000€
  • 15 locali
  • 287 mq
  • Vendesi

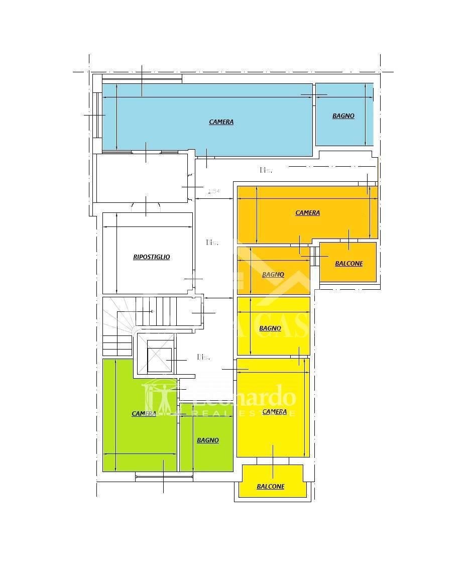
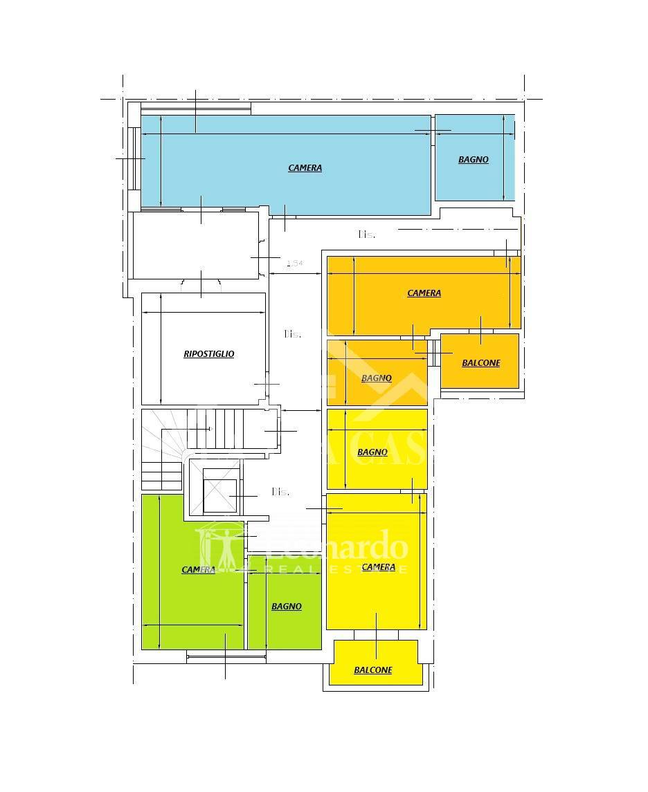
Studi/ uffici trasformabili in civile abitazione o struttura ricettiva In pieno centro di Viareggio, sulla rinomata via Battisti, a 450 mt dal mare, a 200 dal mercato centrale in completa ristrutturazione, Agenzia immobiliare Leonardo propone in esclusiva questo immobile elevato a due piani fuori terra, corredato da piccola corte interna e da due balconi a piano primo.
L'intero fabbricato ha attualmente destinazione direzionale, nello specifico poli ambulatorio medico ma consente diverse soluzioni di trasformazione grazie anche all'ascensore interno gi presente 1) Civile abitazione ripristino di una unit di civile abitazionem o realizzazione di un appartamento al piano primo, con garage privato e di un uso ufficio al piano terreno 2) Struttura ricettiva su due livelli con 7 camere ampie e luminose dotate di bagni privati per ogni stanza, garantendo il massimo comfort agli ospiti Ingresso al piano terreno con reception per accoglienza e zona colazioni Piano Terra superficie lorda complessiva = 132,00 m corte interna 9,60 m Piano Primo superficie lorda complessiva = 148,00 m Rif. ES584 ***.*******.** Vuoi altre informazioni? Vuoi valutare altre offerte immobiliari? Devi vendere il tuo immobile? Contattaci allo 0584961129 / +393756339708 Oppure vieni a trovarci nella nostra sede di Viareggio in Corso Garibaldi, 170 L'indirizzo proposto pu essere nelle vicinanze per ragioni di privacy Contatta l'inserzionista

Agenzia Immobiliare LeonardoAgenzia Immobiliare Leonardo
Corso Garibaldi, 170
55049, Viareggio (Lucca)
Visualizza Telefono

INFORMAZIONI SULL'IMMOBILE

  • Riferimento: ES584
  • Tipologia: Ufficio in Vendita
  • Locali: 15 Locali
  • Stato: Ottimo
  • Bagni: 4
  • Prezzo: 550.000 €
  • Prezzo al mq: 1.916 €
  • Riscaldamento: Autonomo
  • Giardino: Privato - 10 Mq
  • Modificato il: 02/07/2025
  • Scheda: SC9572047

Stabile

  • Piani Totali: 2
I.P.E.
185Kwh/m2
G

Mappa e indirizzo

Ufficio sito in via battisti
55049 Viareggio (Lucca)
mappa mostra l'annuncio su mappa

Galleria Fotografica

Contatta l'inserzionista

Agenzia Immobiliare Leonardo

Agenzia Immobiliare Leonardo di Viareggio propone in vendita questo immobile, contattali subito!

Annunci immobiliari a Viareggio (LU)

Copyright Š 2026 PCase.it. All rights reserved. Sede operativa MILANO. P.IVA 08508420968 - Condizioni d'uso e privacy