Preferiti

Sponsorizza

Stampa

Negozio in vendita a Udine in piazzale osoppo

  • 120.000€
  • 4 locali
  • 138 mq
  • Vendesi

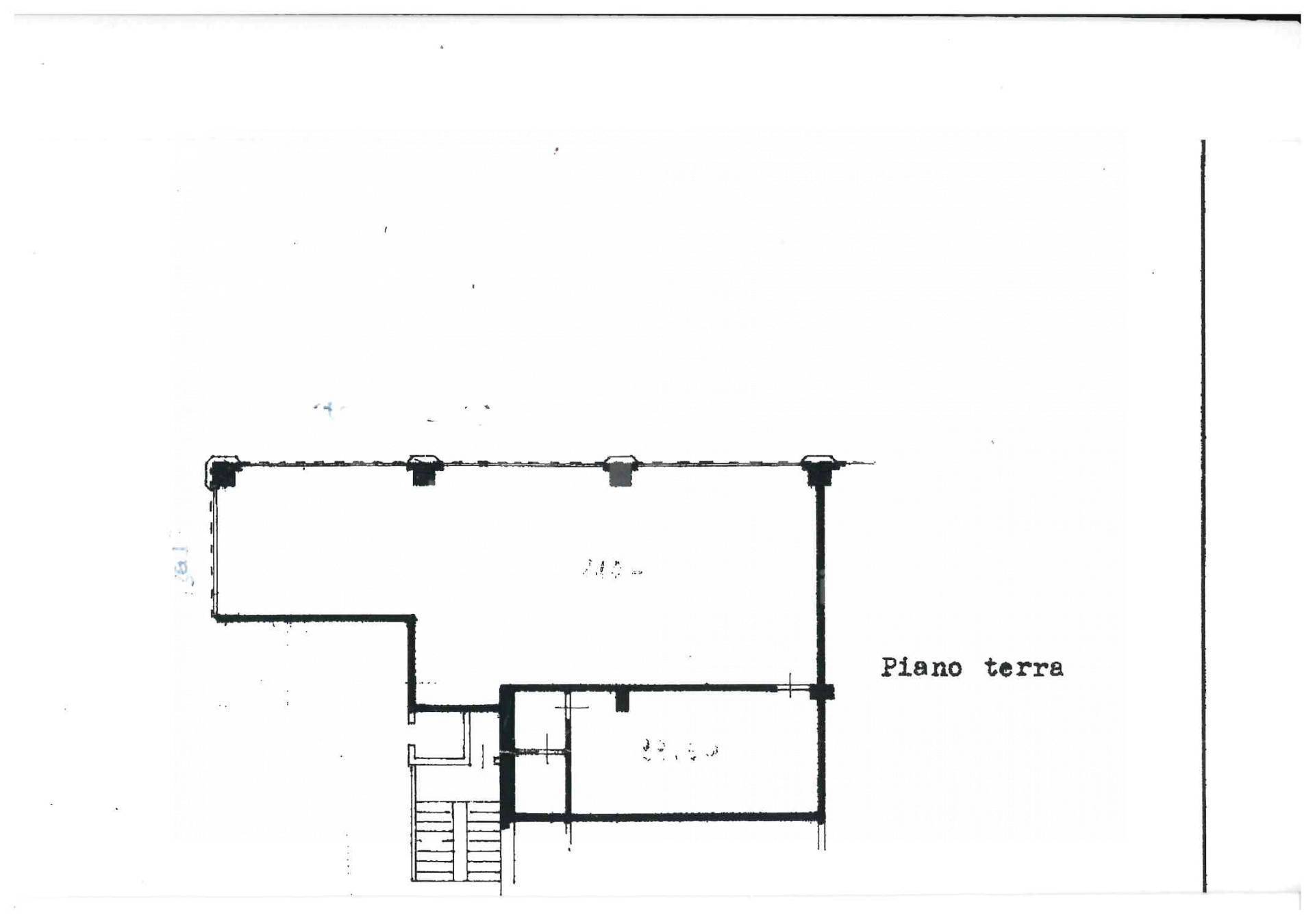
Adiacenze Via Gemona, in zona di grande passaggio, dotato di ampie vetrine fronte strada, negozio di 138 mq con ufficio/magazzino sul retro e antibagno con bagno.
Immobile pu essere divisibile in due parti, ciascuna con il proprio ingresso indipendente. Contatta l'inserzionista

CQ CASAINVEST gruppo QUORECQ CASAINVEST gruppo QUORE
via valussi 22
33100, Udine (Udine)
Visualizza Telefono

INFORMAZIONI SULL'IMMOBILE

  • Riferimento: CI223/Nl
  • Tipologia: Negozio in Vendita
  • Locali: 4 Locali (3 camere e un bagno)
  • Prezzo: 120.000 €
  • Prezzo al mq: 870 €
  • Modificato il: 23/06/2025
  • Scheda: SC9575282

Stabile

  • Classe Energetica: n.d.

Mappa e indirizzo

Negozio sito in piazzale osoppo
33100 Udine (Udine)
Centro
mappa mostra l'annuncio su mappa

Galleria Fotografica

Contatta l'inserzionista

CQ CASAINVEST gruppo QUORE

CQ CASAINVEST gruppo QUORE di Udine propone in vendita questo immobile, contattali subito!

Annunci immobiliari a Udine (UD)

Copyright Š 2026 PCase.it. All rights reserved. Sede operativa MILANO. P.IVA 08508420968 - Condizioni d'uso e privacy