Preferiti

Sponsorizza

Stampa

Locale commerciale in vendita a Sassuolo

  • 150.000€
  • 2 locali
  • 150 mq
  • Vendesi

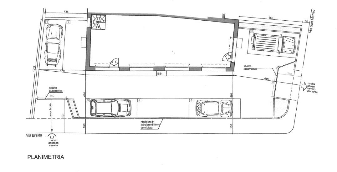
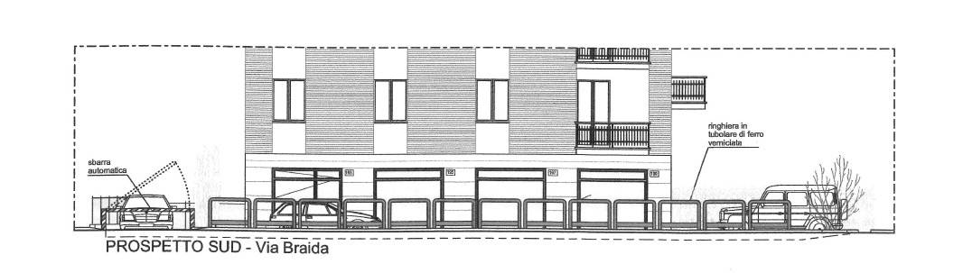
Locale commerciale in vendita in zona Braida a Sassuolo, una delle strade principali di ingresso al centro di Sassuolo.
L'immobile ha una superficie commerciale di 150 metri quadri ed distribuito su piano terra e piano interrato.
La sua esposizione su una strada molto frequentata permette l'utilizzo di ben 5 vetrine, garantendo una grande visibilit e possibilit di esposizione per la tua attivit commerciale.
Al piano terra l'area di vendita di 90mq e gode di un parcheggio privato di circa 140mq oltre ad un magazzino di 90mq con bagno al piano interrato collegato con scala interna Grazie alla sua posizione strategica, a pochi passi dal centro e ben servita dai mezzi pubblici, questo locale commerciale rappresenta un'ottima opportunit per chi desidera avviare o espandere la propria attivit. Contatta l'inserzionista

Agenzia immobiliare HabitatAgenzia immobiliare Habitat
Viale San Lorenzo n.2
41049, Sassuolo (Modena)
Visualizza Telefono

INFORMAZIONI SULL'IMMOBILE

  • Riferimento: 6451
  • Tipologia: Locale commerciale in Vendita
  • Locali: 2 Locali ( 1 camera e un bagno)
  • Prezzo: 150.000 €
  • Prezzo al mq: 1.000 €
  • Riscaldamento: Autonomo
  • Modificato il: 23/01/2026
  • Scheda: SC9588402

Stabile

I.P.E.
382,18Kwh/m2
D

Mappa e indirizzo

41049 Sassuolo (Modena)
mappa mostra l'annuncio su mappa

Galleria Fotografica

Contatta l'inserzionista

Agenzia immobiliare Habitat

Agenzia immobiliare Habitat di Sassuolo propone in vendita questo immobile, contattali subito!

Annunci simili

Annunci immobiliari a Sassuolo (MO)

Copyright Š 2026 PCase.it. All rights reserved. Sede operativa MILANO. P.IVA 08508420968 - Condizioni d'uso e privacy