Preferiti

Sponsorizza

Stampa

Locale commerciale in vendita a Jesi in via san antonio da padova 4/c

  • 40.000€
  • 2 locali
  • 53 mq
  • Vendesi

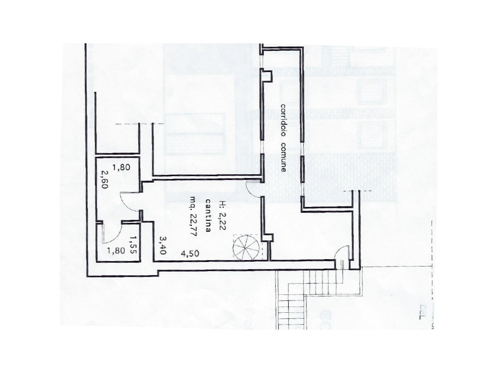
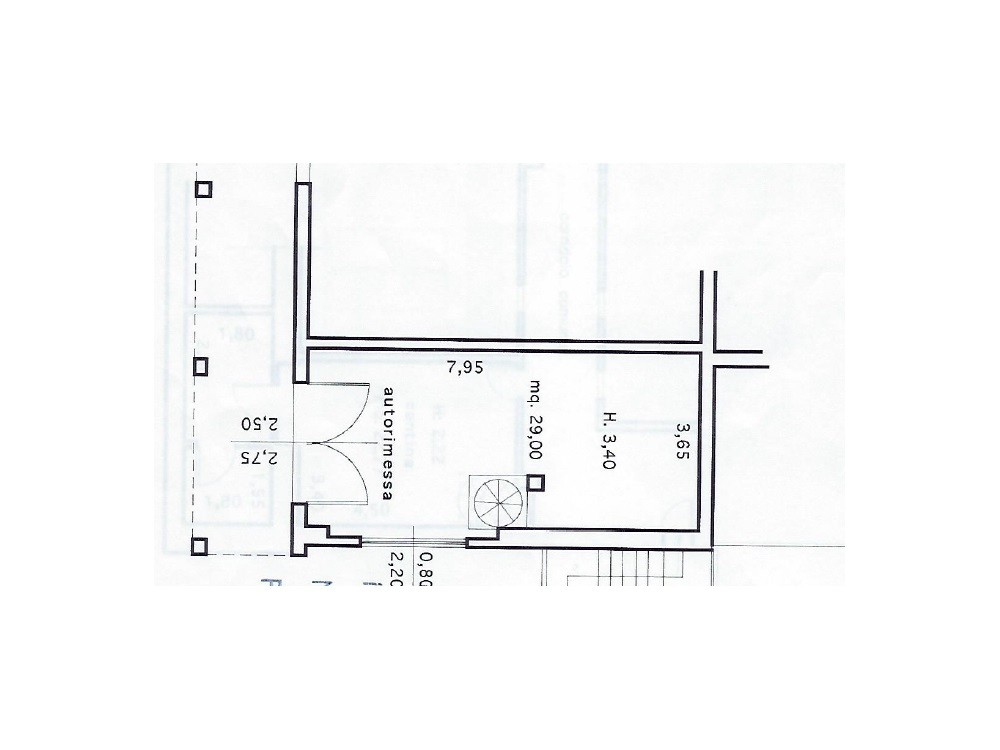
In zona centrale , facile accesso , ampio garage di complessivi 53 mq con due locali comunicanti con scala interna . Il locale garage e' di 30 mq con alti soffitti di 3,5 mt . Con scala a chiocciola interna o tramite corridoio condominiale si puo' accedere al locale seminterrato di circa 22 mq con annesso bagno . Le spese condominiali sono minime . I locali sono stati ristrutturati di recente . Il prezzo e' trattabile . Contatta l'inserzionista

Ing Giulio Pennacchietti - Agenzia ImmobiliareIng Giulio Pennacchietti - Agenzia Immobiliare
Corso Giacomo Matteotti 16
60035, Jesi (Ancona)
Visualizza Telefono

INFORMAZIONI SULL'IMMOBILE

  • Riferimento: IMP26
  • Tipologia: Locale commerciale in Vendita
  • Locali: 2 Locali ( 1 camera e un bagno)
  • Piano: Terra
  • Stato: Ottimo
  • Prezzo: 40.000 €
  • Prezzo al mq: 755 €
  • Modificato il: 13/12/2018
  • Scheda: SC9549335

Stabile

  • Piano: Terra su 1 totali
  • Classe Energetica: n.d.

Mappa e indirizzo

Locale commerciale sito in via san antonio da padova, 4/c
60035 Jesi (Ancona)
mappa mostra l'annuncio su mappa

Galleria Fotografica

Contatta l'inserzionista

Ing Giulio Pennacchietti - Agenzia Immobiliare

Ing Giulio Pennacchietti - Agenzia Immobiliare di Jesi propone in vendita questo immobile, contattali subito!

Annunci immobiliari a Jesi (AN)

Copyright Š 2026 PCase.it. All rights reserved. Sede operativa MILANO. P.IVA 08508420968 - Condizioni d'uso e privacy