Preferiti

Sponsorizza

Stampa

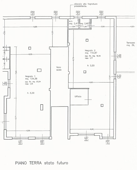
Locale commerciale in vendita a Castelbellino in via silvio pellico

  • 280.000€
  • 2 locali
  • 280 mq
  • Vendesi

Su strada principale vicino alle Poste e altri servizi , ampio locale di 280 mq uso negozio o magazzino con 5 vetrine su strada e terrazza esclusiva di circa 30 mq . Il locale e' facilmente divisibile in due unita' indipendenti di pressoch pari superficie . L' edificio e' in cemento armato costruzione degli anni 70 . Il riscaldamento e' con pompa di calore elettrico . Vi sono complessivamente n. 3 bagni di cui uno per i diversamente abili, soffitti alti e struttura muraria buona, necessita di una imbiancatura e una revisione alle vetrate delle vetrine . Non ci sono barriere architettoniche Contatta l'inserzionista

Ing Giulio Pennacchietti - Agenzia ImmobiliareIng Giulio Pennacchietti - Agenzia Immobiliare
Corso Giacomo Matteotti 16
60035, Jesi (Ancona)
Visualizza Telefono

INFORMAZIONI SULL'IMMOBILE

  • Riferimento: IMP25
  • Tipologia: Locale commerciale in Vendita
  • Locali: 2 Locali ( 1 camera e 4 bagni)
  • Piano: Terra
  • Stato: Ottimo
  • Prezzo: 280.000 €
  • Prezzo al mq: 1.000 €
  • Riscaldamento: Autonomo
  • Modificato il: 23/07/2017
  • Scheda: SC9549283

Stabile

  • Piano: Terra
  • Classe Energetica: n.d.

Mappa e indirizzo

Locale commerciale sito in via silvio pellico
60030 Castelbellino (Ancona)
mappa mostra l'annuncio su mappa

Galleria Fotografica

Contatta l'inserzionista

Ing Giulio Pennacchietti - Agenzia Immobiliare

Ing Giulio Pennacchietti - Agenzia Immobiliare di Jesi propone in vendita questo immobile, contattali subito!

Annunci immobiliari a Castelbellino (AN)

Copyright Š 2026 PCase.it. All rights reserved. Sede operativa MILANO. P.IVA 08508420968 - Condizioni d'uso e privacy