Preferiti

Sponsorizza

Stampa

Locale commerciale in affitto a Ragusa in via rapisasrdi 123

  • Prezzo ribassato -35%
  • € 2.950 1.900€
  • 7 locali
  • 280 mq
  • Affittasi

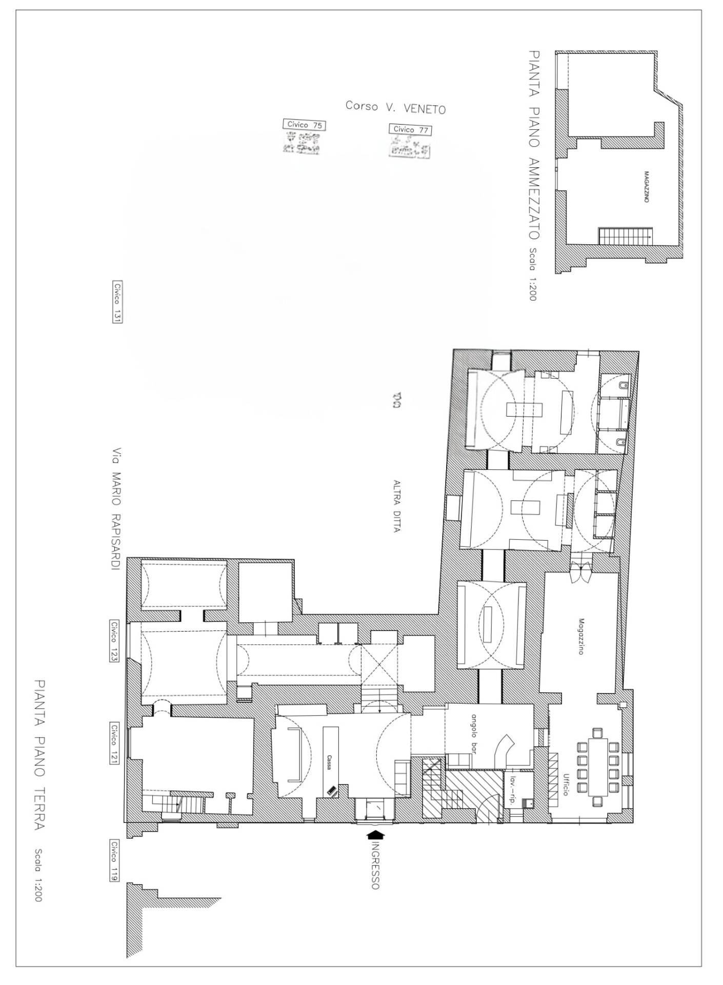
LOCALE COMMERCIALE DI PREGIO Affitto Centro storico di Ragusa Atelier Immobiliare propone in locazione un prestigioso locale commerciale al piano terra di circa 280mq, caratterizzato da finiture interne di alto livello e da una configurazione architettonica ideale per attivit professionali e commerciali di qualit.
Limmobile si presta perfettamente come studio polimedico, studio associato, ambulatori specialistici, uffici di rappresentanza, asili nido e/o ludoteche, showroom, negozio di fascia alta o come sede di attivit che richiedono unimmagine elegante e un ambiente curato.
Caratteristiche interne: - Ambienti ampi e accoglienti con volte in pietra a vista perfettamente restaurate - Illuminazione integrata che valorizza le arcate storiche - Finiture di pregio e materiali ricercati - Ampia zona reception/accoglienza - Spazi operativi versatili, gi suddivisi e facilmente adattabili - Pavimentazione moderna e scenografica in vetro antisfondamento in alcuni punti Nessun lavoro strutturale necessario: il locale pronto, servono solo gli arredi in base allattivit da svolgere Distribuzione e funzionalit: - Ambienti separati perfetti per sale visite, uffici privati, cabine operative o studi professionali - Ampio ambiente principale con affaccio diretto sulla piazzetta - Magazzino funzionale con accesso dedicato - Possibilit di ottimizzare la disposizione interna senza alcun intervento invasivo Posizione e collegamenti : Ingresso sulla piazzetta antistante, recentemente riqualificata, che dona maggiore visibilit e valore Doppio accesso: da Piazza San Giovanni, attraverso il Giardino Monsignor Tidona da Via Mario Rapisardi, a soli 50 metri dal parcheggio di Piazza Poste Zona centrale, comoda e facilmente raggiungibile da clienti, pazienti o pubblico Contesto di pregio, nel cuore del centro urbano.
Perch scegliere questo locale: - Immagine professionale di alto livello - Eleganza architettonica e valore storico - Spazi gi pronti, senza interventi edilizi da programmare - Visibilit eccellente e accessibilit ottimale - Perfetto per chi vuole un ambiente rappresentativo e immediatamente operativo Per garantire la massima efficacia e professionalit nella gestione delle richieste, la visita dell'immobile subordinata a un preventivo appuntamento informativo e conoscitivo da tenersi presso i nostri uffici di agenzia. Contatta l'inserzionista

Atelier Immobiliare di Cintolo EnricoAtelier Immobiliare di Cintolo Enrico
Corso Mazzini, 36
97100, Ragusa (Ragusa)
Visualizza Telefono

INFORMAZIONI SULL'IMMOBILE

  • Riferimento: 18
  • Tipologia: Locale commerciale in Affitto
  • Locali: 7 Locali
  • Piano: Terra
  • Stato: Ottimo
  • Bagni: 2
  • Prezzo: 1.900 €
  • Prezzo al mq: 7 €
  • Riscaldamento: Autonomo
  • Modificato il: 16/02/2026
  • Scheda: SC9506764

Stabile

  • Piano: Terra
  • Classe Energetica: n.d.

Mappa e indirizzo

Locale commerciale sito in via rapisasrdi, 123
97100 Ragusa (Ragusa)
mappa mostra l'annuncio su mappa

Galleria Fotografica

Contatta l'inserzionista

Atelier Immobiliare di Cintolo Enrico

Atelier Immobiliare di Cintolo Enrico di Ragusa propone in affitto questo immobile, contattali subito!

Annunci immobiliari a Ragusa (RG)

Copyright Š 2026 PCase.it. All rights reserved. Sede operativa MILANO. P.IVA 08508420968 - Condizioni d'uso e privacy