Preferiti

Sponsorizza

Stampa

Magazzino in vendita con giardino a Camaiore in via dei carpentieri 5

  • trattativa riservata
  • 1300 mq
  • Vendesi

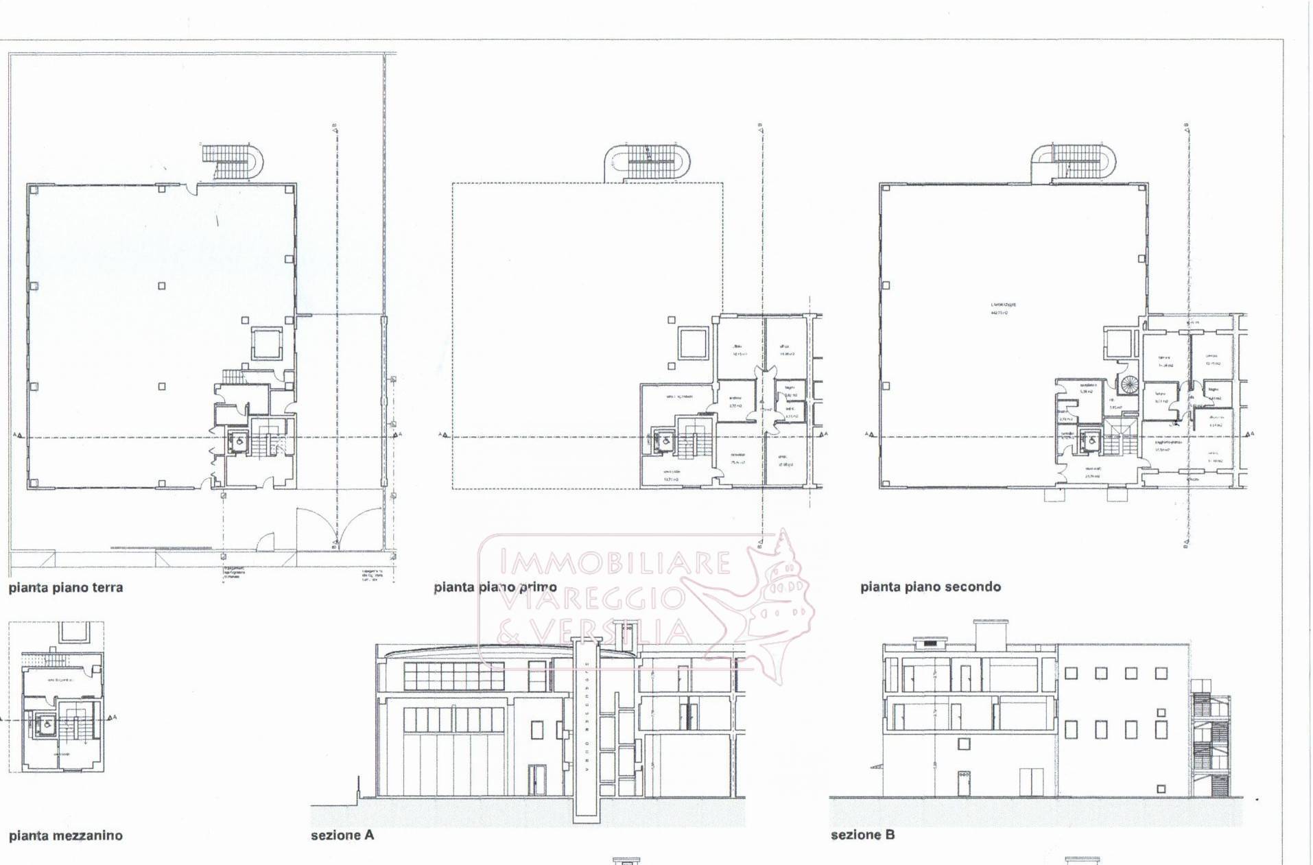
Capezzano Pianore, loc. Le Bocchette, si offre in vendita CAPANNONE ARTIGIANALE di mq 1200 di NUOVA COSTRUZIONE e ideale per la NAUTICA.
Il capannone disposto su due livelli: il piano terreno di mq 500 con altezza di circa 10 metri collegato mediante scale e montacarichi al piano superiore di mq 500, di altezza di 3 metri.
E' dotato di uffici di 100 mq e di un appartamento di 100 mq, con scale e ingresso indipendenti dall'area produttiva.
Resede su tre lati di complessivi 350 mq. Predisposizione per montacarichi, impianto elettrico e carroponte.
Scale interne ed esterne.
Anello antincendio.
IDEALE PER CANTIERE NAUTICO o altra attivit produttiva.
***CAPANNONE FINITO*** Rif. VEN-V426 Richiesta ?1.300.000 Trattabili Contatta l'inserzionista

IMMOBILIARE VIAREGGIO E VERSILIAIMMOBILIARE VIAREGGIO E VERSILIA
via Ciro Menotti 8
55049, Viareggio (Lucca)
Visualizza Telefono

INFORMAZIONI SULL'IMMOBILE

  • Riferimento: VEN-V426
  • Tipologia: Magazzino in Vendita
  • Stato: Ottimo
  • Giardino: Privato - 350 Mq
  • Modificato il: 27/04/2026
  • Scheda: SC9566658

Stabile

E

Mappa e indirizzo

Magazzino sito in via dei carpentieri, 5
55041 Camaiore (Lucca)
mappa mostra l'annuncio su mappa

Galleria Fotografica

Contatta l'inserzionista

IMMOBILIARE VIAREGGIO E VERSILIA

IMMOBILIARE VIAREGGIO E VERSILIA di Viareggio propone in vendita questo immobile, contattali subito!

Annunci simili

Annunci immobiliari a Camaiore (LU)

Copyright Š 2026 PCase.it. All rights reserved. Sede operativa MILANO. P.IVA 08508420968 - Condizioni d'uso e privacy