Preferiti

Sponsorizza

Stampa

Casa indipendente in vendita classe A4 a Jesi in colle paradiso 55

  • 435.000€
  • 4 locali
  • 110 mq
  • Vendesi

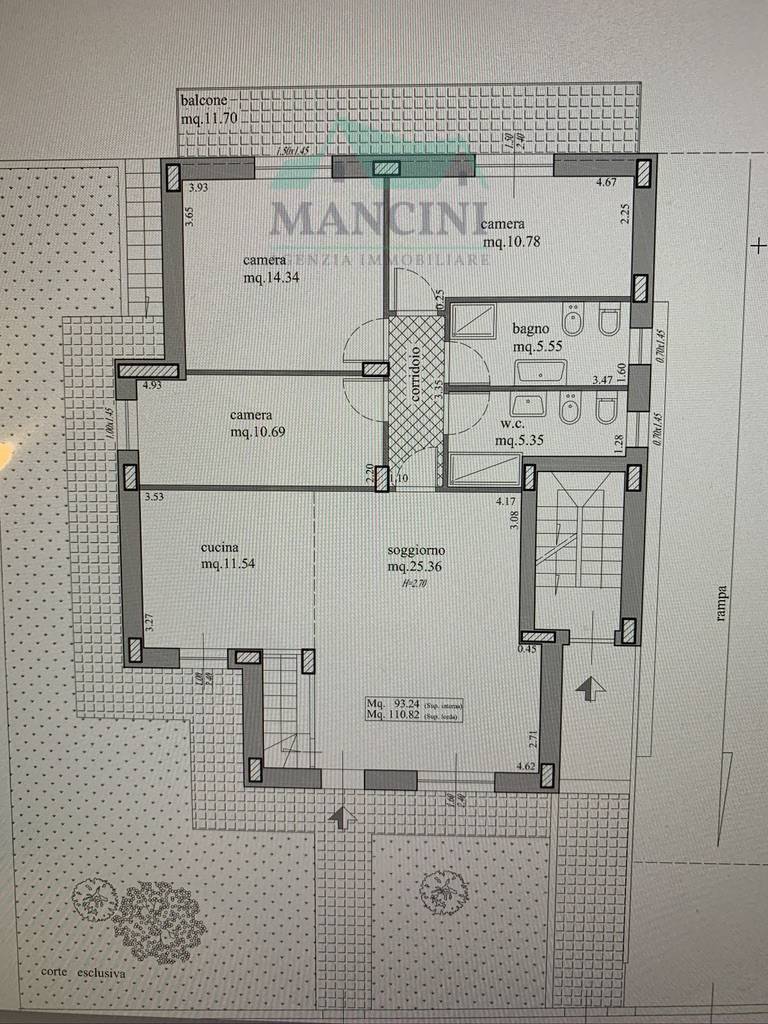
Bifamiliare nuova costruzione in Jesi mq 110 con giardino mq 250, classe energetica A/4 garage corte e taverna cos composta, piano primo si entra nella zona giorno con angolo cottura per un totale di mq 37,76 un balcone lungo mt 8,25 , nella zona notte tre camere di cui una matrimoniale, due camerette, un secondo balcone con affaccio sulle colline marchigiane, lungo mt 11,70 due bagni, scendendo al piano interrato collegato tramite una scala interna, troviamo una taverna di mq 23,45 collegata al garage di mq 25,72 per un totale di 49 mq circa , il riscaldamento a pavimento con consumi molto bassi, predisposizione splitter aria caldo/freddo, predisposizione per fotovoltaico e solare termico, ideale per chi ama la campagna a due passi dalla citt, ideale per genitori figli.
contattare Mancini immobiliare al n 0731/210093 o al cell 338 7520751 il nostro sito ***.*******.** Contatta l'inserzionista

Mancini agenzia ImmobiliareMancini agenzia Immobiliare
Giacomo Matteotti n 66/b
60035, Jesi (Ancona)
Visualizza Telefono

INFORMAZIONI SULL'IMMOBILE

  • Riferimento: VJ96
  • Tipologia: Casa indipendente in Vendita
  • Locali: 4 Locali (3 camere con doppi servizi)
  • Piano: Terra
  • Prezzo: 435.000 €
  • Prezzo al mq: 3.955 €
  • Riscaldamento: Autonomo
  • Modificato il: 10/05/2024
  • Scheda: SC9558850

Stabile

  • Anno: 2023
  • Piano: Terra su 2 totali
A4

Mappa e indirizzo

Casa indipendente sito in colle paradiso, 55
60035 Jesi (Ancona)
mappa mostra l'annuncio su mappa

Galleria Fotografica

Contatta l'inserzionista

Mancini agenzia Immobiliare

Mancini agenzia Immobiliare di Jesi propone in vendita questo immobile, contattali subito!

Annunci simili

Annunci immobiliari a Jesi (AN)

Copyright Š 2026 PCase.it. All rights reserved. Sede operativa MILANO. P.IVA 08508420968 - Condizioni d'uso e privacy