Preferiti

Sponsorizza

Stampa

Attività commerciale in vendita a Udine in viale venezia 51

  • 100.000€
  • 5 locali
  • 91 mq
  • Vendesi

Bar in vendita - Viale Venezia Udine.
Ottima occasione.
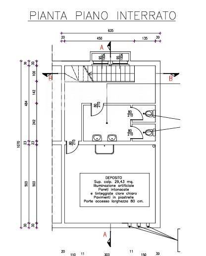
In una delle zone pi ad alta visibilit di Udine, vendesi attivit di bar completa di tutta l'attrezzatura necessaria per lavorare da subito, inclusi arredi, bancone, macchinari e dotazioni.
L'offerta comprende anche i muri del locale, al prezzo complessivo di 100.000 euro. C' la possibilit di acquisto a reddito: il locale attualmente affittato a 600 euro mese, garantendo un rendimento interessante per investitori.
Il locale pronto all'uso, ideale per chi desidera avviare o ampliare la propria attivit nel settore della somministrazione in una posizione strategica ad alta visibilit.
Per maggiori informazioni o per fissare una visita, siamo a disposizione. Contatta l'inserzionista

EvolEvol
Viale Venezia 494
3310 , Udine (Udine)

INFORMAZIONI SULL'IMMOBILE

  • Riferimento: GI556
  • Tipologia: Attività commerciale in Vendita
  • Locali: 5 Locali
  • Piano: Terra
  • Bagni: 2
  • Prezzo: 100.000 €
  • Prezzo al mq: 1.099 €
  • Riscaldamento: Autonomo
  • Modificato il: 14/03/2026
  • Scheda: SC9517366

Stabile

  • Piano: Terra su 2 totali
C

Mappa e indirizzo

Attività commerciale sito in viale venezia, 51
33100 Udine (Udine)
Udine Ovest, Semicentro Ovest
mappa mostra l'annuncio su mappa

Galleria Fotografica

Contatta l'inserzionista

Evol

Evol di Udine propone in vendita questo immobile, contattali subito!

Annunci immobiliari a Udine (UD)

Copyright © 2026 PCase.it. All rights reserved. Sede operativa MILANO. P.IVA 08508420968 - Condizioni d'uso e privacy