Preferiti

Sponsorizza

Stampa

Attività commerciale in vendita a Udine in via aquileia 27

  • 55.000€
  • 3 locali
  • 35 mq
  • Vendesi

Negozio in vendita a Udine.
VI proponiamo uno spazio commerciale in Via Aquileia a Udine.
Una via centrale e ben avviata di Udine che gode di un buon passaggio pedonale e veicolare.
Posizione strategica, vicino a centri servizi, negozi, uffici e zone residenziali.
Questo garantisce una ottima visibilit e l'accesso a una clientela variegata.
Possibilit di trasformazione in locale di servizi, studio professionale ,consulenze, estetica o altro. Contatta l'inserzionista

EvolEvol
Viale Venezia 494
3310 , Udine (Udine)

INFORMAZIONI SULL'IMMOBILE

  • Riferimento: LA103
  • Tipologia: Attività commerciale in Vendita
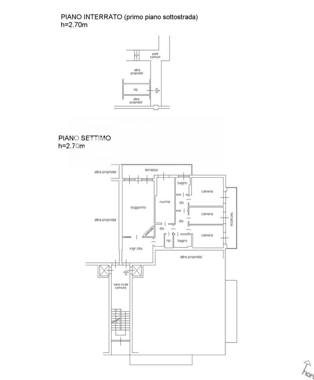
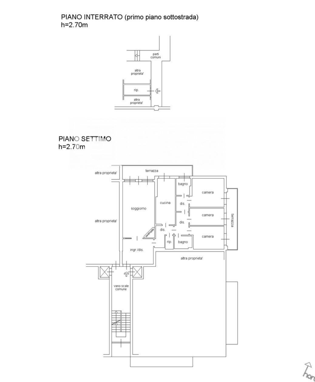
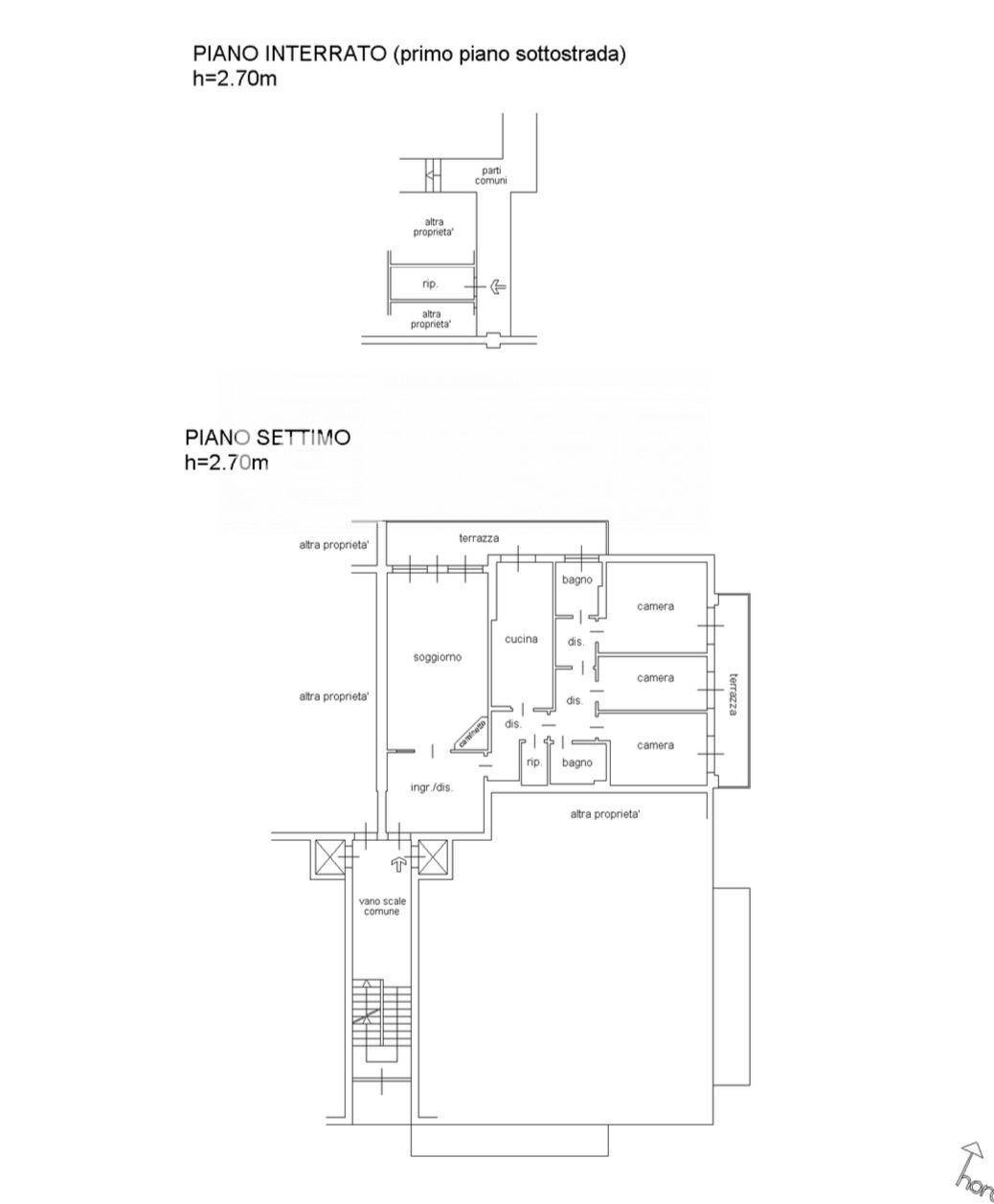
  • Locali: 3 Locali (2 camere e un bagno)
  • Piano: Terra
  • Prezzo: 55.000 €
  • Prezzo al mq: 1.571 €
  • Modificato il: 19/03/2026
  • Scheda: SC9481115

Stabile

  • Piano: Terra
F

Galleria Fotografica

Contatta l'inserzionista

Evol

Evol di Udine propone in vendita questo immobile, contattali subito!

Annunci immobiliari a Udine (UD)

Copyright © 2026 PCase.it. All rights reserved. Sede operativa MILANO. P.IVA 08508420968 - Condizioni d'uso e privacy