Preferiti

Sponsorizza

Stampa

Appartamento monolocale in vendita con giardino a Viareggio in via dei lecci 79

  • 88.000€
  • 1 locale
  • 57 mq
  • Vendesi

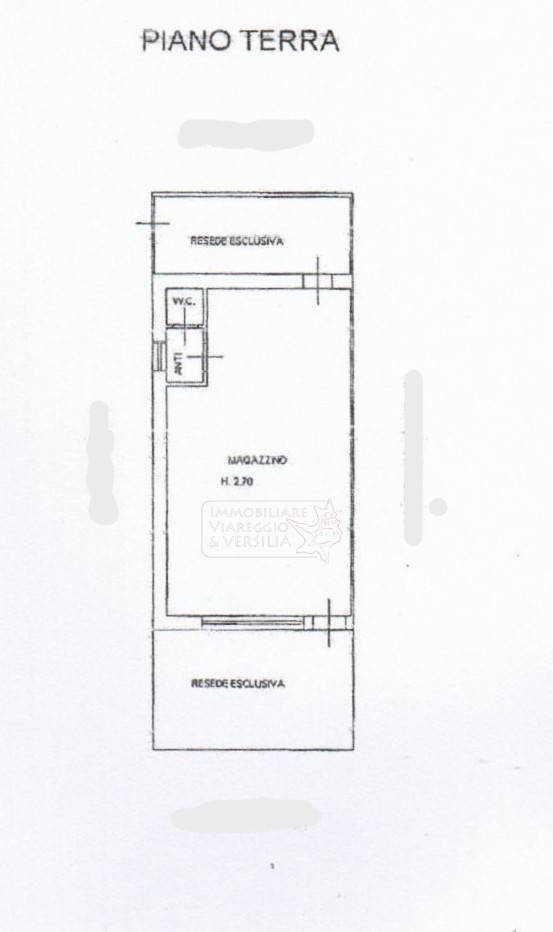
Viareggio - ex Campo d'Aviazione in zona residenziale tranquilla vicino alla pineta e al mare si vende appartamento non di civile abitazione (accatastato C/1) composto da unico vano e bagno di mq 57 posto a piano terreno corredato da resede esterna sul fronte e da corte chiusa per le bici e i motorini con accesso sia dall'interno che dall'esterno!!! IDEALE APPOGGIO MARE Vende un privato Si libera il 1° agosto 2026. Richiesta ?88.000 Rif. V693 Contatta l'inserzionista

IMMOBILIARE VIAREGGIO E VERSILIAIMMOBILIARE VIAREGGIO E VERSILIA
via Ciro Menotti 8
55049, Viareggio (Lucca)
Visualizza Telefono

INFORMAZIONI SULL'IMMOBILE

  • Riferimento: V693
  • Tipologia: Appartamento in Vendita
  • Locali: 1 Locali ( 1 camera e un bagno)
  • Piano: Terra
  • Stato: Buono
  • Prezzo: 88.000 €
  • Prezzo al mq: 1.544 €
  • Riscaldamento: Autonomo
  • Giardino: Privato - 22 Mq
  • Modificato il: 13/04/2026
  • Scheda: SC9610647

Stabile

  • Piano: Terra
G

Galleria Fotografica

Contatta l'inserzionista

IMMOBILIARE VIAREGGIO E VERSILIA

IMMOBILIARE VIAREGGIO E VERSILIA di Viareggio propone in vendita questo immobile, contattali subito!

Annunci immobiliari a Viareggio (LU)

Copyright Š 2026 PCase.it. All rights reserved. Sede operativa MILANO. P.IVA 08508420968 - Condizioni d'uso e privacy