Preferiti

Sponsorizza

Stampa

Appartamento in vendita con box a San Remo

  • 530.000€
  • 3 locali
  • 106 mq
  • Vendesi

Luminoso appartamento con vista mare! 106 m, situato nel quartiere San Martino, una delle zone pi tranquille e comode di Sanremo a soli 5 minuti a piedi dal mare e dalla pista ciclabile.
Lappartamento stato completamente ristrutturato qualche mese fa: impianto elettrico, tubature dellacqua e scarichi fognari sostituiti, condizionatori caldo/freddo installati e finiture di alta qualit in stile moderno.
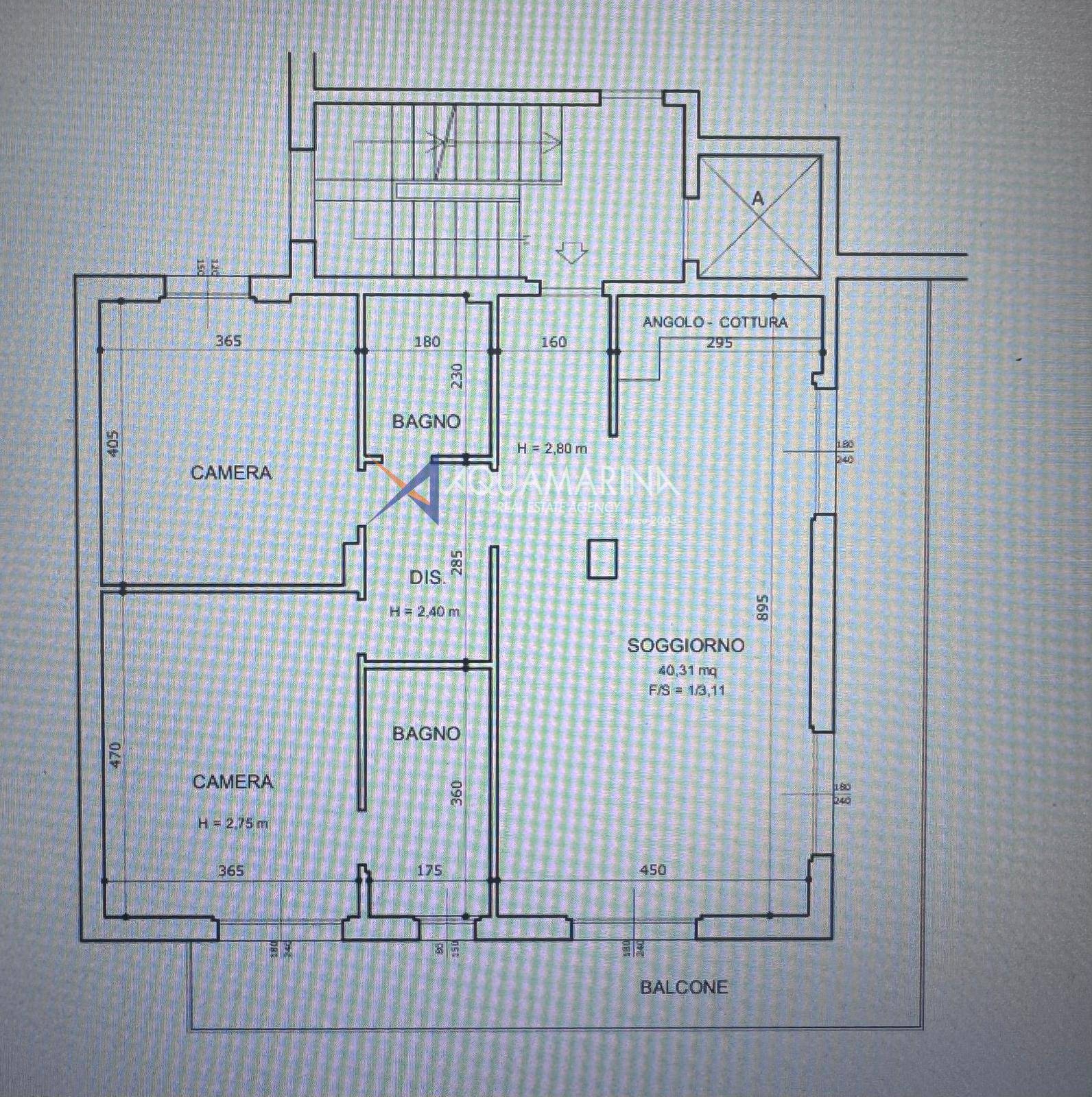
Composizione: due ampie camere da letto; due bagni, di cui uno con accesso diretto dalla camera; soggiorno con cucina a vista; ampio balcone con vista aperta sul mare e giardino, ideale per momenti di relax allaria aperta.
Riscaldamento condominiale e anche aria calda.
Spese condominiali basi con acqua inclusa.
Nel prezzo incluso un garage per unauto di piccole dimensioni.
La zona tranquilla e residenziale, ma allo stesso tempo vicina alle spiagge, alla pista ciclabile e alla passeggiata sul mare. A pochi passi si trovano negozi, caff, supermercato, fermata dellautobus e la stazione ferroviaria.
Il centro di Sanremo raggiungibile in pochi minuti in auto o a piedi lungo il mare. Ottimi collegamenti con la strada Aurelia e lautostrada.
Un perfetto equilibrio tra tranquillit, comfort e vicinanza al mare ideale come residenza principale, casa vacanza o investimento immobiliare. Contatta l'inserzionista

Aquamarina Real Estate BordigheraAquamarina Real Estate Bordighera
Via Vittorio Emanuele II, 302
18012, Udine (Udine)
Visualizza Telefono

INFORMAZIONI SULL'IMMOBILE

  • Riferimento: 14066
  • Tipologia: Appartamento in Vendita
  • Locali: 3 Locali (2 camere con doppi servizi)
  • Piano: Primo
  • Stato: Ristrutturato
  • Prezzo: 530.000 €
  • Prezzo al mq: 5.000 €
  • Spazio Auto: Box singolo
  • Vista mare: Si
  • Modificato il: 02/04/2026
  • Scheda: SC9481945

Stabile

  • Anno: 1970
  • Piano: 1 su 5 totali
  • Giardino: Condominiale
C

Mappa e indirizzo

18038 San Remo (Imperia)
mappa mostra l'annuncio su mappa

Galleria Fotografica

Contatta l'inserzionista

Aquamarina Real Estate Bordighera

Aquamarina Real Estate Bordighera di Udine propone in vendita questo immobile, contattali subito!

Annunci simili

Annunci immobiliari a San Remo (IM)

Copyright Š 2026 PCase.it. All rights reserved. Sede operativa MILANO. P.IVA 08508420968 - Condizioni d'uso e privacy