Preferiti

Sponsorizza

Stampa

Appartamento in vendita classe A4 a San Benedetto del Tronto in via sgattoni 14

  • Prezzo ribassato -9%
  • € 183.000 165.000€
  • 3 locali
  • 67 mq
  • Vendesi

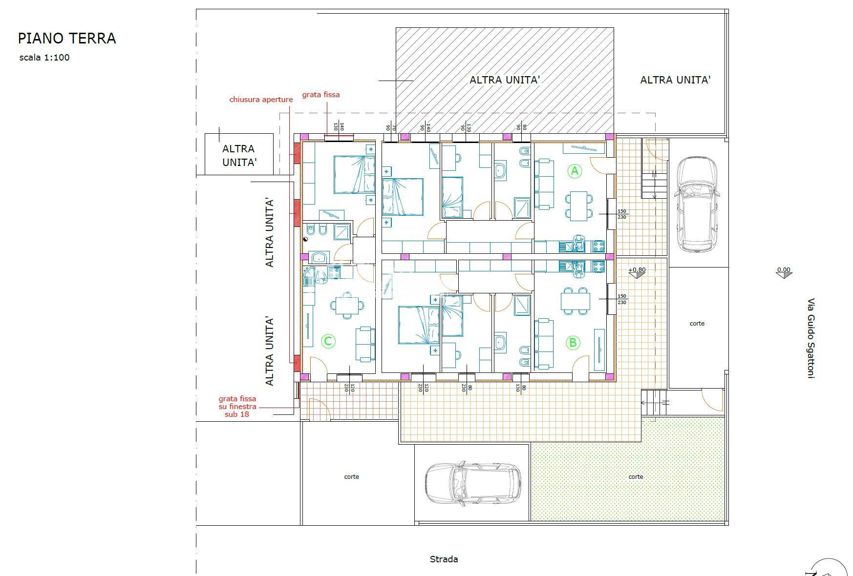
L'agenzia Re Casa Immobiliare propone in vendita appartamento di nuova ristrutturazione, in piccolissimo complesso residenziale composto da un unico piano sito in Via Sgattoni n. 7 in Porto D'Ascoli.
Appartamento 67 mq al piano terra con ingresso autonomo.
Ingresso su soggiorno con angolo cottura, due camere di cui una matrimoniale ed una singola, un bagno con finestra, corte esterna di mq 15 intermente pavimentata.
Posto auto scoperto di mq 19. Collocato all'interno di piccolo fabbricato di 3 appartamenti, su un unico livello.
Nessun spesa condominiale.
Immobile indicato la unit A. Esposizione sud - est. Classe energetica prevista A4. Internamente l'immobile sar rifinito con: pavimentazione in gres porcellanato, infissi in pvc con doppio vetro a taglio termico secondo le ultime normative relative all'isolamento termo acustico, bagno con sanitari sospesi, tapparelle elettriche, impianto di riscaldamento a pavimento, predisposizione impianto di raffrescamento, portone di ingresso blindato, video citofono.
Possibilit di personalizzione delle finiture con scelta di materiali extra capitolato, con differenza dei costi a seconda dei materiali utilizzati.
Inizio lavori previsto per novembre 2025 e ultimazione lavori prevista in 6 mesi dalla stipula del preliminare di compravendita.
Possibilit di usufruire delle detrazioni inerenti la ristrutturazione nella percentuale del 50% in caso di acquisto come prima casa e del 36% in caso di acquisto come seconda casa. La somma imponibile su cui poter calcolare le detrazioni di Euro 96.000,00. Ottima soluzione per chi ama la tranquillit, con servizi tutti facilmente raggiungibili, a pochi passi dal Centro Commerciale La Fontana. Contatta l'inserzionista

Re Casa S.r.l.s.Re Casa S.r.l.s.
Via San Francesco n. 13 b/c
63074, San Benedetto del Tronto (Ascoli Piceno)
Visualizza Telefono

INFORMAZIONI SULL'IMMOBILE

  • Riferimento: 9641
  • Tipologia: Appartamento in Vendita
  • Locali: 3 Locali (2 camere e un bagno)
  • Piano: Rialzato
  • Prezzo: 165.000 €
  • Prezzo al mq: 2.463 €
  • Riscaldamento: Autonomo
  • Spazio Auto: No
  • Modificato il: 26/03/2026
  • Scheda: SC9483374

Stabile

  • Anno: 2025
  • Piano: Rialzato su 1 totali
I.P.E.
52Kwh/m2
A4

Mappa e indirizzo

Appartamento sito in via sgattoni, 14
63039 San Benedetto del Tronto (Ascoli Piceno)
mappa mostra l'annuncio su mappa

Galleria Fotografica

Contatta l'inserzionista

Re Casa S.r.l.s.

Re Casa S.r.l.s. di San Benedetto del Tronto propone in vendita questo immobile, contattali subito!

Annunci simili

Annunci immobiliari a San Benedetto del Tronto (AP)

Copyright Š 2026 PCase.it. All rights reserved. Sede operativa MILANO. P.IVA 08508420968 - Condizioni d'uso e privacy