Preferiti

Sponsorizza

Stampa

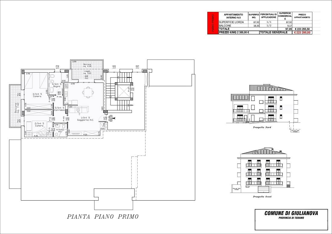
Appartamento in vendita classe A4 a Giulianova

  • 230.000€
  • 3 locali
  • 100 mq
  • Vendesi

Giulianova Lido - Ultimo Appartamento in edificio di nuova costruzione.
Tipologia trilocale, al piano rialzato, composto da soggiorno, cucina, due camere, doppi servizi, terrazzo loggiato a servizio della zona giorno, balcone e area esterna piastrellata ad uso esclusivo.
La costruzione situata in ampia zona verde, a poca distanza dal centro cittadino e a soli 600 mt dal mare, offrendo una visione armonica tra natura e urbanit.
Ogni appartamento stato studiato per garantire flessibilit e comfort, permettendo di personalizzare gli spazi per adattarli ali propri stili di vita. Gli interni sono caratterizzati da un design moderno e funzionale con materiali di alta qualit e finiture eleganti, termoautonomi riscaldamento a pavimento con pompe di calore, efficientamento energetico con pannelli fotovoltaici condominiali.
Possibilit di box auto e cantina a parte.
Costruzione in classe A4. Contatta l'inserzionista

Zuccarini ImmobiliareZuccarini Immobiliare
Corso V. Cerulli, 7-9-1-13
64100, Teramo (Teramo)
Visualizza Telefono

INFORMAZIONI SULL'IMMOBILE

  • Riferimento: 421
  • Tipologia: Appartamento in Vendita
  • Locali: 3 Locali (2 camere con doppi servizi)
  • Piano: Rialzato
  • Prezzo: 230.000 €
  • Prezzo al mq: 2.300 €
  • Riscaldamento: Autonomo
  • Modificato il: 10/02/2026
  • Scheda: SC9557898

Stabile

  • Anno: 2026
  • Piano: Rialzato su 3 totali
A4

Galleria Fotografica

Contatta l'inserzionista

Zuccarini Immobiliare

Zuccarini Immobiliare di Teramo propone in vendita questo immobile, contattali subito!

Annunci simili

Annunci immobiliari a Giulianova (TE)

Copyright Š 2026 PCase.it. All rights reserved. Sede operativa MILANO. P.IVA 08508420968 - Condizioni d'uso e privacy