Preferiti

Sponsorizza

Stampa

Appartamento in vendita con giardino a Giulianova in via galileo galilei

  • 248.000€
  • 5 locali
  • 120 mq
  • Vendesi

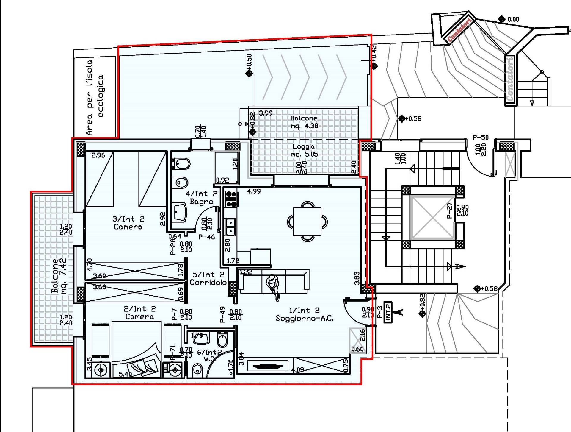
Appartamento in vendita in un edificio di nuova costruzione a Giulianova Lido, progettato con particolare attenzione al comfort abitativo e allefficienza energetica.
Labitazione, posta al piano terra rialzato della struttura, si apre su un ampio soggiorno, collegato alla cucina moderna e funzionale con terrazzo e da questo si accede ad area esterna privata che pu essere destinata a giardino.
Nella zona notte vi una camera matrimoniale, luminosa e spaziosa, con bagno privato e una seconda camera da letto, bagno pi grande e finestrato a servizio dell'appartamento.
Oltre al terrazzo ed al giardino l'unit immobiliare ha un balcone, ulteriore affaccio esterno accessibile dalla camera matrimoniale.
Ledificio sorge in una zona verde e tranquilla di Giulianova, a breve distanza dal centro cittadino, da tutti i negozi e a pochi minuti dal lungomare, offrendo un equilibrio perfetto tra le comodit urbane e la natura.
Ogni appartamento stato pensato per garantire flessibilit degli ambienti e possibilit di personalizzazione secondo il proprio stile di vita. Gli interni sono realizzati con design moderno, materiali di alta qualit e finiture eleganti.
Limpiantistica di ultima generazione include riscaldamento a pavimento termoautonomo con pompe di calore e pannelli fotovoltaici, assicurando ottime prestazioni di efficientamento energetico.
Possibilit di box auto acquistabile separatamente.
Classe energetica A4. Consegna prevista per met 2027. Per maggiori informazioni contattare l'Agenzia. Contatta l'inserzionista

EgoCasaEgoCasa
Via Trieste, 29/31
64021, Palermo (Palermo)
Visualizza Telefono

INFORMAZIONI SULL'IMMOBILE

  • Riferimento: V838
  • Tipologia: Appartamento in Vendita
  • Locali: 5 Locali
  • Stato: Ottimo
  • Bagni: 2
  • Prezzo: 248.000 €
  • Prezzo al mq: 2.067 €
  • Riscaldamento: Autonomo
  • Giardino: Privato - 24 Mq
  • Modificato il: 02/03/2026
  • Scheda: SC9509883

Stabile

  • Anno: 2025
A4

Mappa e indirizzo

Appartamento sito in via galileo galilei
64021 Giulianova (Teramo)
mappa mostra l'annuncio su mappa

Galleria Fotografica

Contatta l'inserzionista

EgoCasa

EgoCasa di Palermo propone in vendita questo immobile, contattali subito!

Annunci simili

Annunci immobiliari a Giulianova (TE)

Copyright Š 2026 PCase.it. All rights reserved. Sede operativa MILANO. P.IVA 08508420968 - Condizioni d'uso e privacy