Preferiti

Sponsorizza

Stampa

Appartamento in vendita a Ascoli Piceno

  • trattativa riservata
  • 50 mq
  • Vendesi

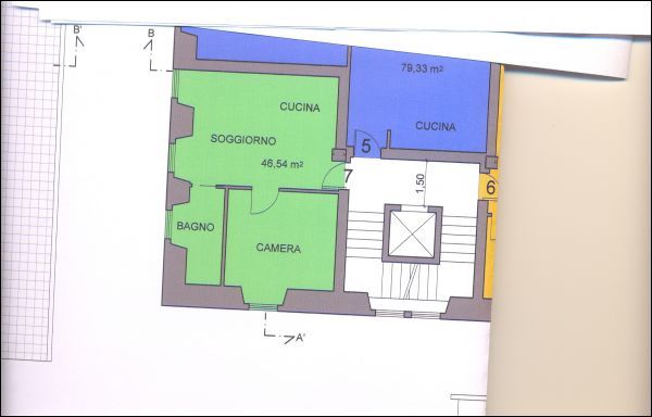
Ascoli Piceno, localit Monterocco, nello splendido scenario del verde collinare e panoramico, in palazzina di poche unit abitative, appartamento ristrutturato di mq 50 con giardino cosl composto: soggiorno con angolo cottura, camera e ***.*******.** di fondaco e posto auto. Contatta l'inserzionista

Ciccarelli DanielaCiccarelli Daniela
Corso Trento e Trieste, 6B
63100, Bolzano (Bolzano)
Visualizza Telefono

INFORMAZIONI SULL'IMMOBILE

  • Riferimento: 15399
  • Tipologia: Appartamento in Vendita
  • Piano: Terra
  • Bagni: 1
  • Modificato il: 08/02/2013
  • Scheda: SC9572875

Stabile

  • Piano: Terra
  • Giardino: Condominiale
  • Classe Energetica: n.d.

Galleria Fotografica

Contatta l'inserzionista

Ciccarelli Daniela

Ciccarelli Daniela di Bolzano propone in vendita questo immobile, contattali subito!

Annunci simili

Annunci immobiliari a Ascoli Piceno (AP)

Copyright Š 2026 PCase.it. All rights reserved. Sede operativa MILANO. P.IVA 08508420968 - Condizioni d'uso e privacy