Preferiti

Sponsorizza

Stampa

Appartamento in vendita con giardino a Rosora

  • 48.000€
  • 4 locali
  • 90 mq
  • Vendesi

A pochi metri dal castello di Rosora, appartamento di complessivi 90 mq con ingresso indipendente e posto auto in garage, in una palazzina degli anni 80. L' appartamento in buone condizioni e' esposto a sud, gode di una stupenda vista della Vallesina, degli Appennini ed e' costituito da : ingresso soggiorno - cucina, camera matrimoniale, cameretta, bagno.
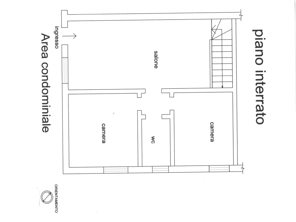
Tramite una scala interna in muratura si scende in una taverna con caminetto.
La taverna di 30 mq e' molto luminosa, per l' altezza h=2,85 mt, la presenza di una finestra e una porta per accesso ad un giardino esclusivo.
Il riscaldamento e' autonomo con termosifoni e caldaia a gas metano. Contatta l'inserzionista

Ing Giulio Pennacchietti - Agenzia ImmobiliareIng Giulio Pennacchietti - Agenzia Immobiliare
Corso Giacomo Matteotti 16
60035, Jesi (Ancona)
Visualizza Telefono

INFORMAZIONI SULL'IMMOBILE

  • Riferimento: AA18
  • Tipologia: Appartamento in Vendita
  • Locali: 4 Locali (3 camere con doppi servizi)
  • Piano: Terra
  • Stato: Buono
  • Prezzo: 48.000 €
  • Prezzo al mq: 533 €
  • Riscaldamento: Autonomo
  • Giardino: Privato - 30 Mq
  • Spazio Auto: Box singolo
  • Modificato il: 23/07/2017
  • Scheda: SC9549284

Stabile

  • Piano: Terra
  • Classe Energetica: n.d.

Mappa e indirizzo

60030 Rosora (Ancona)
mappa mostra l'annuncio su mappa

Galleria Fotografica

Contatta l'inserzionista

Ing Giulio Pennacchietti - Agenzia Immobiliare

Ing Giulio Pennacchietti - Agenzia Immobiliare di Jesi propone in vendita questo immobile, contattali subito!

Annunci immobiliari a Rosora (AN)

Copyright Š 2026 PCase.it. All rights reserved. Sede operativa MILANO. P.IVA 08508420968 - Condizioni d'uso e privacy