Preferiti

Sponsorizza

Stampa

Appartamento in vendita con giardino a Altopascio in via firenze

  • 199.000€
  • 3 locali
  • 75 mq
  • Vendesi

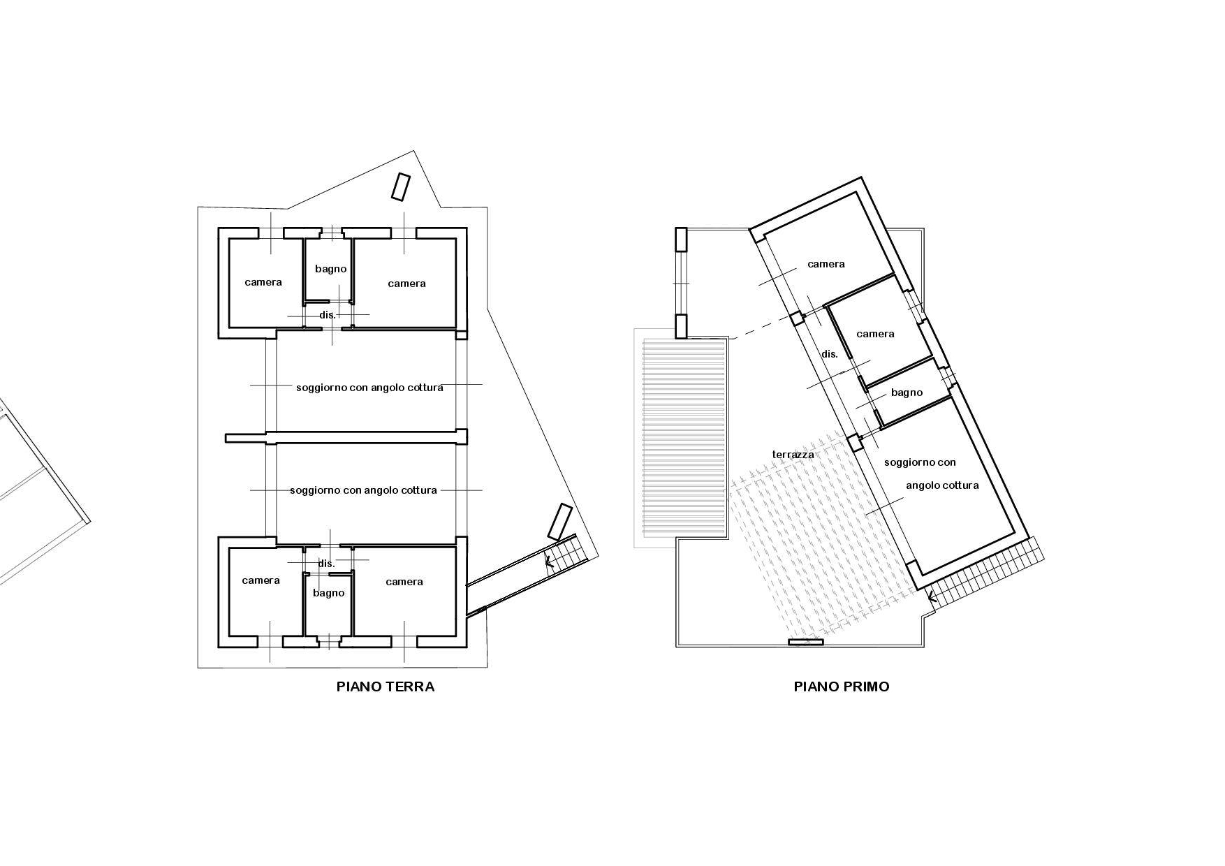
NUOVA REALIZZAZIONE - NOSTRA ESCLUSIVA Proponiamo la vendita di tre appartamenti di circa 75 mq, di nuova realizzazione (ancora da costruire) di cui due posti al piano terra con giardino privato di circa 200 e 300 mq con due posti auto e laltro al piano primo con ampia terrazza di circa 90 mq e due posti auto nel resede di ingresso a comune.
Ogni appartamento composto da zona living con cucina a vista, camera, cameretta e bagno.
Saranno costruiti con le ultime tecnologie impiantistiche e saranno certificati dal punto di vista energetico in classe A4. Prezzi: Appartamento piano terra con 200 mq di giardino ?199.000 Appartamento piano terra con 300 mq di giardino ?205.000 Appartamento piano primo con terrazza di 90 mq ?215.000 Contatta l'inserzionista

ASIP sas di Maurizio Bolognini e C.ASIP sas di Maurizio Bolognini e C.
località Bartoloni 19/a
55011, Pisa (Pisa)
Visualizza Telefono

INFORMAZIONI SULL'IMMOBILE

  • Riferimento: 1442
  • Tipologia: Appartamento in Vendita
  • Locali: 3 Locali (2 camere e un bagno)
  • Prezzo: 199.000 €
  • Prezzo al mq: 2.653 €
  • Riscaldamento: Autonomo
  • Giardino: Privato - 200 Mq
  • Spazio Auto: No
  • Modificato il: 01/04/2026
  • Scheda: SC9569577

Stabile

  • Piani Totali: 2
A4

Mappa e indirizzo

Appartamento sito in via firenze
55011 Altopascio (Lucca)
mappa mostra l'annuncio su mappa

Galleria Fotografica

Contatta l'inserzionista

ASIP sas di Maurizio Bolognini e C.

ASIP sas di Maurizio Bolognini e C. di Pisa propone in vendita questo immobile, contattali subito!

Annunci simili

Annunci immobiliari a Altopascio (LU)

Copyright © 2026 PCase.it. All rights reserved. Sede operativa MILANO. P.IVA 08508420968 - Condizioni d'uso e privacy