A Farra d'Isonzo, proprio alle porte di Gorizia ed a 200 metri dall'imbocco dell'autostrada, proponiamo in vendita questo ottimo capannone con destinazione sia industriale che artigianale. La...
inserito il 25 feb 2026 in Capannoni in vendita a Gorizia e provinciaGORIZIA Posizione strategica! Adiacente allaeroporto di Gorizia e a pochi minuti dallautostrada Proponiamo in vendita importante complesso industriale composto da 10.000 mq coperti su unarea...
Savogna d'Isonzo, capannone industriale con superficie di oltre 700 mq. e area scoperta di oltre 11.000 mq. - predisposizione carro ponte - l'immobile necessita di lavori di ammodernamento ma pu...
Monfalcone (Via Grado): capannone di circa totali mq.1.850 (area produzione mq.1.520 + uffici mq.330) con area scoperta cementata di circa mq.2.000...ottime condizioni con impianto elettrico,...
Cormons: vicino al centro, a 50 mt dalla strada principale....capannone a destinazione commerciale di circa mq.1.010 con area scoperta asfaltata mq.647. Ideale per attivit di vendita al...
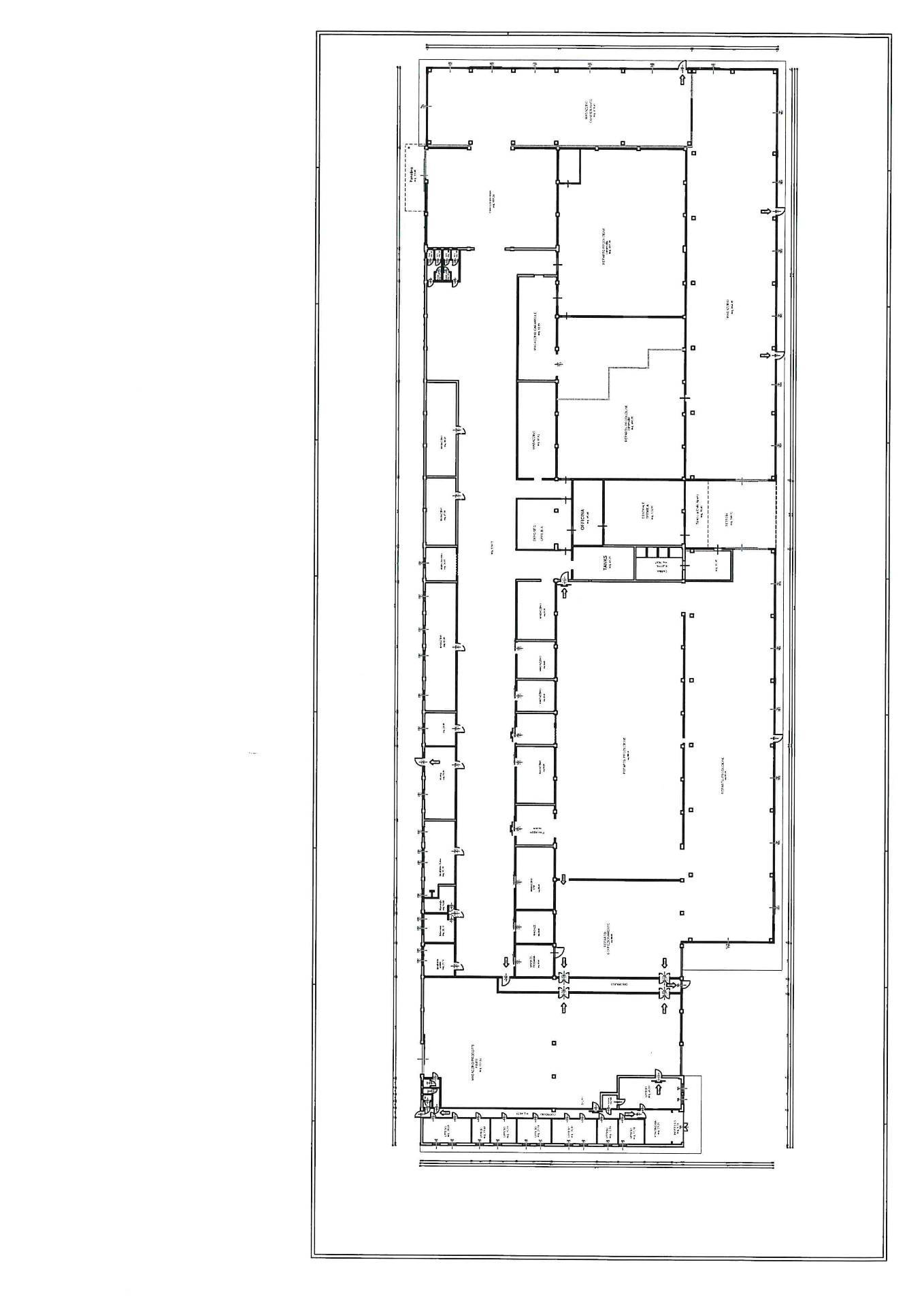
inserito il 20 mar 2026 in Capannoni in vendita a Gorizia e provinciaVillesse, complesso industriale costituito da capannoni completi di uffici, magazzini e mensa per una superficie coperta di complessivi 15.000 mq, insistenti su unarea scoperta di 65.000 mq avente un...
PER INVESTORI!!!!!....Romans d'Isonzo: a 2 minuti uscita Villesse autostrada.....recente capannone di circa totali mq.924 di cui uffici/bagni/sala riunioni svolti su due livelli per totali mq.112 e...
MONFALCONE: via III Armata, Capannone di circa 2600 mq. con 360 mq uffici, 105 mq. mensa e spogliatoi, 115 mq. Appartamento custode, oltre a circa 11.000 mq. di area scoperta in...
Cerchi Capannoni in vendita a Gorizia e provincia ma non hai trovato nulla di tuo interesse?
Utilizza il nostro modulo di richiesta generica ed invia una email di richiesta alle nostra agenzie affiliate!

Romans d'Isonzo - zona industriale nelle immediate vicinanze del casello autostradale di Villesse - ottima viabilit per transito mezzi pesanti - compendio industriale in buone condizioni generali...
via Grado ampia area a destinazione artigianale, industriale e/o commerciale per la realizzazione di un capannone. Info solo in agenzia
Stai cercando Capannoni in vendita a Gorizia e provincia? Su PCase.it puoi trovare diversi annunci immobiliari di Capannoni in vendita a Gorizia e provincia affini alla tua ricerca, ogni giorno tanti nuovi inserimenti e abbassamenti di prezzo da agenzie immobiliari di fiducia, costruttori esperti e privati che offrono i migliori capannoni in vendita a gorizia e provincia corredati da descrizioni complete, foto, video e mappe. Scopri com'è facile trovare subito il tuo nuovo immobile commerciale online in vendita a Gorizia e provincia.