Preferiti

Sponsorizza

Stampa

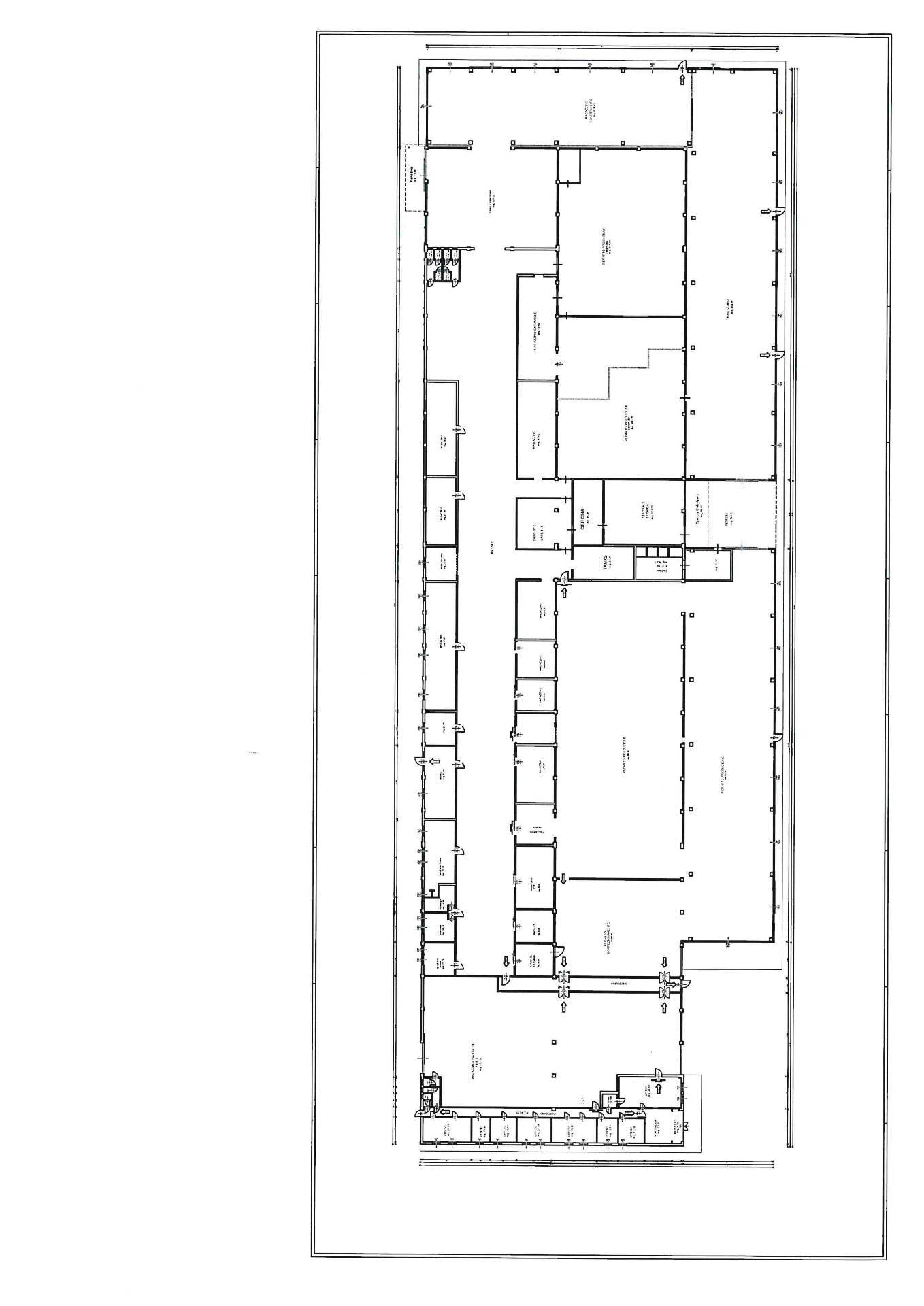
Capannone in vendita a Gorizia

  • trattativa riservata
  • 10000 mq
  • Vendesi

GORIZIA Posizione strategica! Adiacente allaeroporto di Gorizia e a pochi minuti dallautostrada Proponiamo in vendita importante complesso industriale composto da 10.000 mq coperti su unarea complessiva di 33.000 mq. La propriet si presta a molteplici utilizzi grazie alla sua versatilit: - attivit industriali e artigianali - logistica e magazzini - commercio al dettaglio La posizione, particolarmente favorevole per i collegamenti, rende limmobile ideale per aziende che necessitano di facile accesso alle principali vie di comunicazione.
Classe energetica: F EPgl,nren 259,02 kWh/mq anno Per maggiori informazioni: 048193700 Contatta l'inserzionista

Risposte ImmobiliariRisposte Immobiliari
Viale Regina Elena 1
34072, Gradisca d'Isonzo (Gorizia)
Visualizza Telefono

INFORMAZIONI SULL'IMMOBILE

  • Riferimento: U47
  • Tipologia: Capannone in Vendita
  • Modificato il: 14/04/2026
  • Scheda: SC9550747

Stabile

F

Galleria Fotografica

Contatta l'inserzionista

Risposte Immobiliari

Risposte Immobiliari di Gradisca d'Isonzo propone in vendita questo immobile, contattali subito!

Annunci immobiliari a Gorizia (GO)

Copyright Š 2026 PCase.it. All rights reserved. Sede operativa MILANO. P.IVA 08508420968 - Condizioni d'uso e privacy