Preferiti

Sponsorizza

Stampa

Villa in vendita con giardino a Frugarolo in vicolo monzambano 10

  • 25.474€
  • 6 locali
  • 197 mq
  • Vendesi

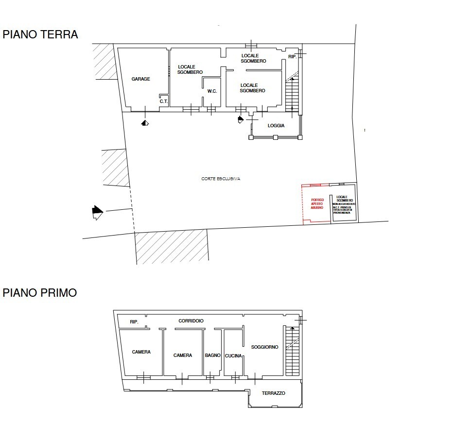
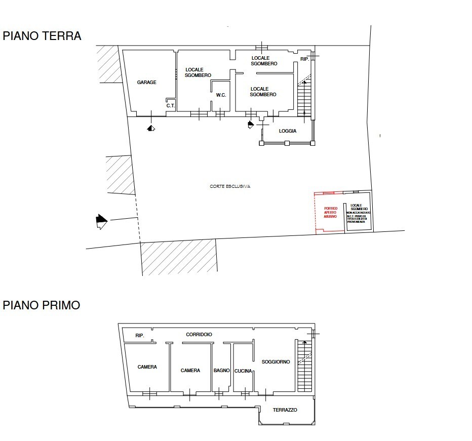
Fabbricato indipendente disposto su due piani fuori terra con sedime pertinenziale di circa mq 200. Il piano terra è composto da: loggia di ingresso, tre locali di sgombero, w.c., ripostiglio; il piano primo da: soggiorno, cucina, corridoio, bagno, ripostiglio, due camere, terrazzo.
I pavimenti interni sono in piastrelle di ceramica, i serramenti interni in legno tamburato, i serramenti esterni in legno con persiane, il riscaldamento autonomo con caldaia a gas. - Il Prezzo visualizzato è la Base d'Asta in quanto limmobile è oggetto di esecuzione immobiliare venduto tramite Asta Giudiziaria.
- L'immobile aggiudicato, viene venduto libero e sgombro da persone cose ed ipoteche nello stato di fatto e di diritto in cui si trova.
- Non rappresentiamo il Tribunale, ma lavoriamo nell'esclusivo interesse del potenziale acquirente per garantire un acquisto sicuro.
- I consulenti di ASTE ITALIA ti assisteranno in tutte le attività dell'iter giudiziario dalla visita dell'immobile fino alla consegna chiavi.
- Contatta il nostro Servizio Clienti , i nostri operatori sono a disposizione per chiarire i molteplici dubbi per partecipare alle ASTE. Contatta l'inserzionista

DOMY ONLINE S.R.L.DOMY ONLINE S.R.L.
Via San Lorenzo 5 Int. 41
16123, Genova (Genova)
Visualizza Telefono

INFORMAZIONI SULL'IMMOBILE

  • Riferimento: AL280/23LU-2506-26-1
  • Tipologia: Villa in Vendita
  • Locali: 6 Locali
  • Piano: Terra
  • Stato: da Ristrutturare
  • Bagni: 2
  • Prezzo: 25.474 €
  • Prezzo al mq: 129 €
  • Terrazzi: 1 - 22 Mq
  • Giardino: Privato
  • Modificato il: 11/03/2026
  • Scheda: SC9617019

Stabile

  • Piano: Terra
G

Mappa e indirizzo

Villa sito in vicolo monzambano 10
15065 Frugarolo (Alessandria)
mappa mostra l'annuncio su mappa

Galleria Fotografica

Contatta l'inserzionista

DOMY ONLINE S.R.L.

DOMY ONLINE S.R.L. di Genova propone in vendita questo immobile, contattali subito!

Annunci immobiliari a Frugarolo (AL)

Copyright Š 2026 PCase.it. All rights reserved. Sede operativa MILANO. P.IVA 08508420968 - Condizioni d'uso e privacy