Preferiti

Sponsorizza

Stampa

Villa in vendita con giardino a Castelnuovo Magra in via bologna 15

  • 350.000€
  • 7 locali
  • 150 mq
  • Vendesi

a colombiera, in posizione pianeggiante e ben servita, ma defilata dal traffico, è in corso di finitura una porzione di trifamiliare terratetto proposta in esclusiva.
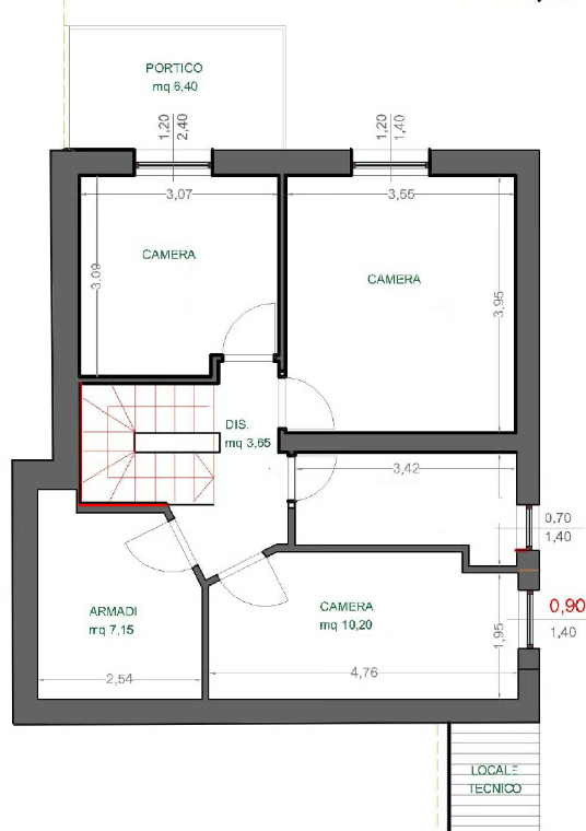
la villetta, costruita secondo i più recenti standard tecnologici ed energetici, sarà certificata in classe a top. labitazione si sviluppa su due livelli principali, oltre a mansarda e sottotetto.
al piano terra sono previsti i parcheggi privati, laccesso al giardino recintato e il porticato dingresso che conduce al soggiorno.
seguono un disimpegno, una cucina abitabile con sala da pranzo e un bagno finestrato.
al piano superiore si trovano una camera matrimoniale, una camera doppia, una camera singola con terrazzina, un secondo bagno finestrato e una spaziosa cabina armadi.
infine, tramite comode scale interne, si accede alla luminosa mansarda calpestabile, ideale come living o quarta camera, con annessa porzione di sottotetto ad uso soffitta/ripostiglio.
particolare attenzione è stata dedicata alla scelta dei materiali e allimpiantistica, tutti di ultima generazione, per garantire il massimo comfort abitativo e le migliori prestazioni energetiche.
la casa sarà dotata di cappotto termico e acustico, insonorizzazioni tra le diverse unità, impianto fotovoltaico da 6 kw dotato di batterie di accumulo da 10 kw, infissi ad alte prestazioni, riscaldamento a pavimento, pompe di calore, climatizzazione ad acqua e impianto vmc (ventilazione meccanica controllata). il sistema di vmc assicura un ricambio costante dellaria 24 ore su 24: laria viziata viene estratta, il calore recuperato tramite scambiatore e aria pulita e filtrata viene immessa negli ambienti.
ciò garantisce ambienti sempre salubri, previene la formazione di muffe, riduce i rischi di allergie e consente ulteriori risparmi energetici, poiché non è necessario aprire porte o finestre.
dal punto di vista della sicurezza e dellefficienza, limmobile sarà interamente elettrico: non sono previste utenze a gas, eliminando così ogni rischio di scoppio o avvelenamento e semplificando la gestione delle forniture.
limpianto fotovoltaico, già predisposto per laccumulo, insieme agli accorgimenti costruttivi dellinvolucro (murature, copertura, infissi ad alte prestazioni) e alle dotazioni impiantistiche avanzate, consente di ridurre al minimo i costi di esercizio e di garantire unabitazione moderna, sostenibile e ad alta efficienza.
la consegna è prevista entro la fine dellanno, con possibilità di personalizzare gli interni attraverso le varianti al capitolato.
- cr immobiliare 347 856174 - per tutelare la privacy dei nostri clienti vi informiamo che lindirizzo è approssimativo e le informazioni e i valori presenti nellannuncio non costituiscono, in alcun modo, elemento contrattuale.
le informazioni dettagliate e specifiche dellimmobile verranno fornite compilando il form dellagenzia o contattandoci telefonicamente. Contatta l'inserzionista

Agenzia Immobiliare di Cecchi RobertoAgenzia Immobiliare di Cecchi Roberto
Via Aurelia, 217
19033, Castelnuovo Magra (La Spezia)
Visualizza Telefono

INFORMAZIONI SULL'IMMOBILE

  • Riferimento: 3544
  • Tipologia: Villa in Vendita
  • Locali: 7 Locali
  • Piano: Terra
  • Stato: Nuovo
  • Bagni: 2
  • Cucina: Abitabile
  • Prezzo: 350.000 €
  • Prezzo al mq: 2.333 €
  • Terrazzi: 1 - 8 Mq
  • Giardino: Privato
  • Modificato il: 06/02/2026
  • Scheda: SC9582538

Stabile

  • Anno: 2026
  • Piano: Terra
A3

Mappa e indirizzo

Villa sito in via bologna 15
19033 Castelnuovo Magra (La Spezia)
mappa mostra l'annuncio su mappa

Galleria Fotografica

Contatta l'inserzionista

Agenzia Immobiliare di Cecchi Roberto

Agenzia Immobiliare di Cecchi Roberto di Castelnuovo Magra propone in vendita questo immobile, contattali subito!

Annunci simili

Annunci immobiliari a Castelnuovo Magra (SP)

Copyright Š 2026 PCase.it. All rights reserved. Sede operativa MILANO. P.IVA 08508420968 - Condizioni d'uso e privacy