Preferiti

Sponsorizza

Stampa

Villa in vendita a Casamassima in via grazia deledda 58

  • 180.000€
  • 5 locali
  • 200 mq
  • Vendesi

Casamassima,nelle vicinanze del parco commerciale, proponiamo in vendita ampia villa angolare allo stato rustico con ampio giardino.
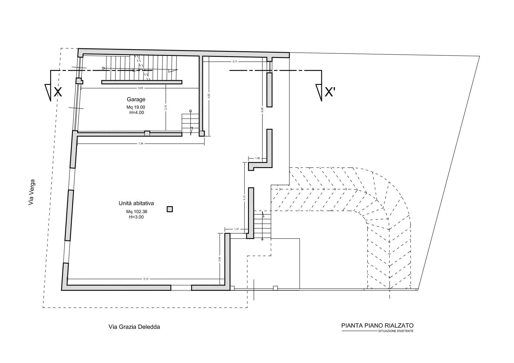
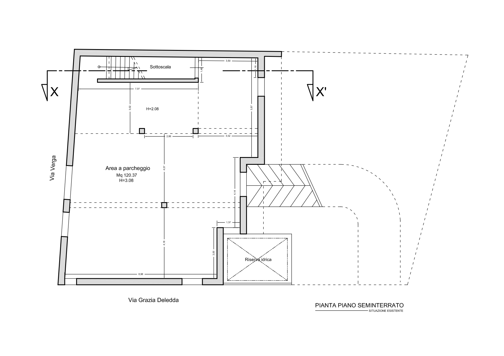
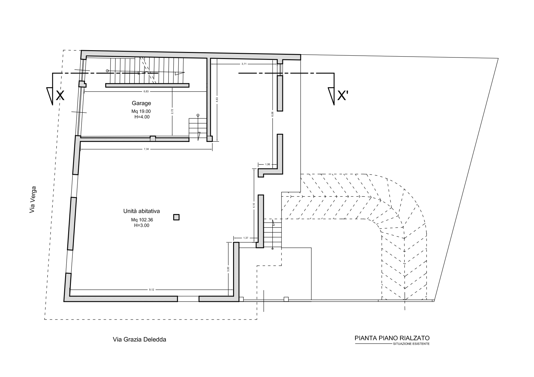
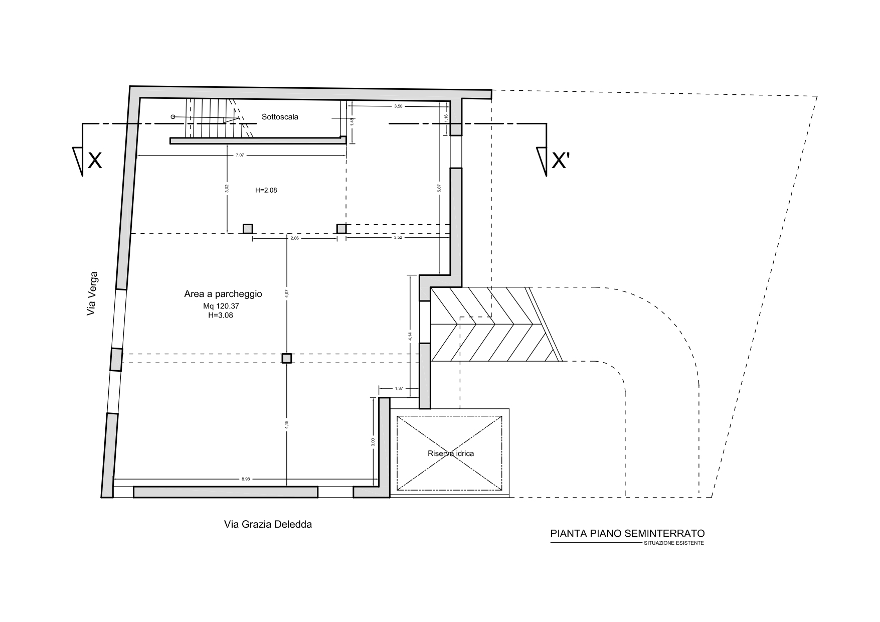
La villa è composta al piano seminterrato da una comoda tavernetta di circa 120 mq, al piano rialzato si sviluppa l'intera abitazione,che comprende salone, cucina abitabile, 3 vani letto e 2 bagni,mentre al primo piano è presente un comodo vano tecnico e il lastrico solare.
La villa dispone di un ampio giardino con ingresso carrabile.
Inoltre è presente già un progetto per la definizione degli spazi e dell'intera ristrutturazione.
Fd Immobiliare Casamassima Contatta l'inserzionista

FD IMMOBILIAREFD IMMOBILIARE
via Bari 70/D
70010, Casamassima (Bari)
Visualizza Telefono

INFORMAZIONI SULL'IMMOBILE

  • Riferimento: 1526
  • Tipologia: Villa in Vendita
  • Locali: 5 Locali
  • Piano: Rialzato
  • Prezzo: 180.000 €
  • Prezzo al mq: 900 €
  • Modificato il: 23/04/2026
  • Scheda: SC9642464

Stabile

  • Piano: Rialzato
  • Classe Energetica: Immobile non soggetto a certificazione energetica

Mappa e indirizzo

Villa sito in via grazia deledda 58
70010 Casamassima (Bari)
mappa mostra l'annuncio su mappa

Galleria Fotografica

Contatta l'inserzionista

FD IMMOBILIARE

FD IMMOBILIARE di Casamassima propone in vendita questo immobile, contattali subito!

Annunci immobiliari a Casamassima (BA)

Copyright Š 2026 PCase.it. All rights reserved. Sede operativa MILANO. P.IVA 08508420968 - Condizioni d'uso e privacy