Preferiti

Sponsorizza

Stampa

Villa in vendita a Sale in via de gasperi 8

  • 53.764€
  • 7 locali
  • 184 mq
  • Vendesi

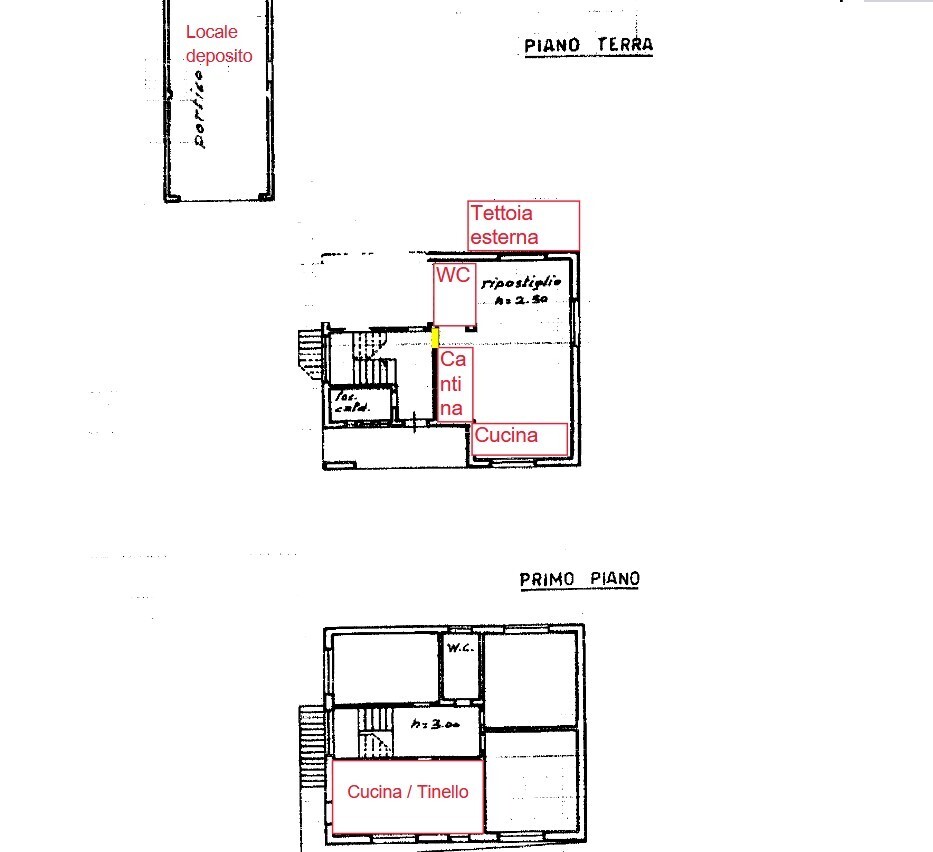
Piena proprietà dei seguenti beni immobili: Abitazione unifamiliare (villa) composto al piano primo da: cucina/tinello, bagno, n. 2 camere da letto e soggiorno; al piano terra da locali di pertinenza: ripostiglio, cantina, bagno, locale caldaia.
Box auto e locale deposito.
- Il Prezzo visualizzato è la Base d'Asta in quanto limmobile è oggetto di esecuzione immobiliare venduto tramite Asta Giudiziaria.
- L'immobile aggiudicato, viene venduto libero e sgombro da persone cose ed ipoteche nello stato di fatto e di diritto in cui si trova.
- Non rappresentiamo il Tribunale, ma lavoriamo nell'esclusivo interesse del potenziale acquirente per garantire un acquisto sicuro.
- I consulenti di ASTE ITALIA ti assisteranno in tutte le attività dell'iter giudiziario dalla visita dell'immobile fino alla consegna chiavi.
- Contatta il nostro Servizio Clienti , i nostri operatori sono a disposizione per chiarire i molteplici dubbi per partecipare alle ASTE. Contatta l'inserzionista

DOMY ONLINE S.R.L.DOMY ONLINE S.R.L.
Via San Lorenzo 5 Int. 41
16123, Genova (Genova)
Visualizza Telefono

INFORMAZIONI SULL'IMMOBILE

  • Riferimento: AL123/24LU-2605-26-1
  • Tipologia: Villa in Vendita
  • Locali: 7 Locali
  • Piano: Terra
  • Stato: Buono
  • Bagni: 2
  • Cucina: Abitabile
  • Prezzo: 53.764 €
  • Prezzo al mq: 292 €
  • Balconi: 1
  • Modificato il: 09/02/2026
  • Scheda: SC9597712

Stabile

  • Piano: Terra
G

Mappa e indirizzo

Villa sito in via de gasperi 8
15045 Sale (Alessandria)
mappa mostra l'annuncio su mappa

Galleria Fotografica

Contatta l'inserzionista

DOMY ONLINE S.R.L.

DOMY ONLINE S.R.L. di Genova propone in vendita questo immobile, contattali subito!

Annunci simili

Annunci immobiliari a Sale (AL)

Copyright Š 2026 PCase.it. All rights reserved. Sede operativa MILANO. P.IVA 08508420968 - Condizioni d'uso e privacy