Preferiti

Sponsorizza

Stampa

Villa in vendita a Trabia

  • 250.000€
  • 280 mq
  • Vendesi

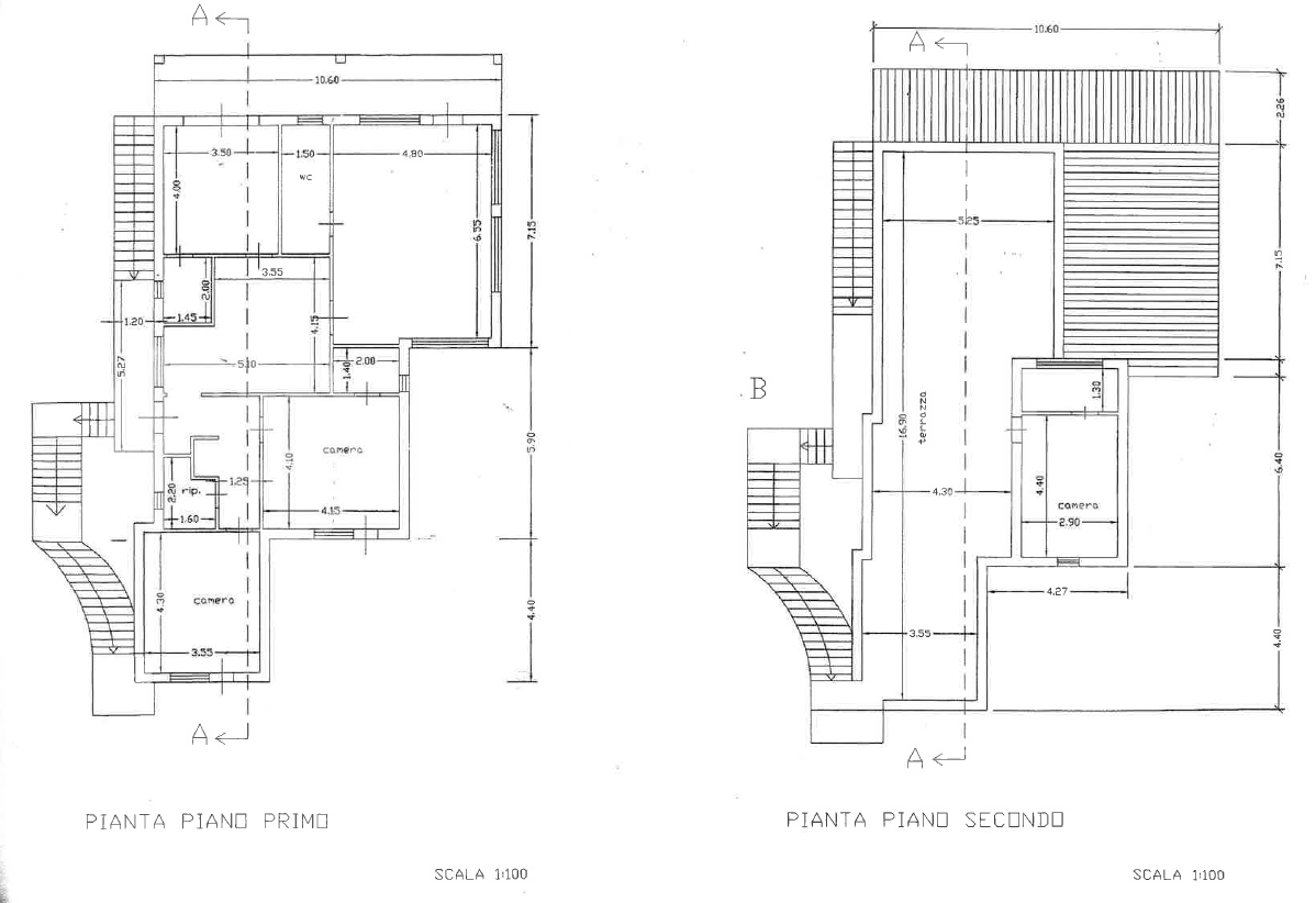
Contrada Roccazzelli snc villa unifamiliare panoramica mq 280 commerciali su lotto di mq 2.000 a Trabia, precisamente San Nicola lArena, a pochi passi dal porto di San Nicola, raggiungibile a piedi.
Composta da piano terra, 1° e 2°. Piano terra: mq 104 + terrazza coperta angolare di mq 30 c.a. panoramica, composto da grande cucina/soggiorno, 3 camere da letto con 3 bagni di cui 2 in camera.
Piano 1° e 2°: mq 131 + terrazza e balconi di mq 96 c.a. e precisamente piano 1° mq 97 con ampio balcone coperto di mq 20 panoramicissimo composto da: salone pari a 2 vani, cucina abitabile, 2 camere e 3 wc. Al piano 2° troviamo una grande camera con bagno di mq 34 con grande terrazza panoramicissima di mq 78 c.a. che domina il porto di San Nicola.
Possibilit realizzare pi unit. Limmobile da ristrutturare.
LIBERO.
Richiesta 250.000 Contatta l'inserzionista

Costa Immobiliare di Mario CostaCosta Immobiliare di Mario Costa
Via R. Wagner 2/C
, Palermo (Palermo)
Visualizza Telefono

INFORMAZIONI SULL'IMMOBILE

  • Riferimento: Cod. rif M9V26VRG
  • Tipologia: Villa singola in Vendita
  • Piano: Rialzato
  • Prezzo: 250.000 €
  • Prezzo al mq: 893 €
  • Spazio Auto: No
  • Modificato il: 18/03/2026
  • Scheda: SC9610988

Stabile

  • Piano: Rialzato
  • Classe Energetica: n.d.

Mappa e indirizzo

90019 Trabia (Palermo)
mappa mostra l'annuncio su mappa

Galleria Fotografica

Contatta l'inserzionista

Costa Immobiliare di Mario Costa

Costa Immobiliare di Mario Costa di Palermo propone in vendita questo immobile, contattali subito!

Annunci simili

Annunci immobiliari a Trabia (PA)

Copyright Š 2026 PCase.it. All rights reserved. Sede operativa MILANO. P.IVA 08508420968 - Condizioni d'uso e privacy