Preferiti

Sponsorizza

Stampa

Villa in vendita a Pojana Maggiore

  • 139.000€
  • 3 locali
  • 80 mq
  • Vendesi

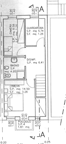
In zona tranquilla di Pojana, proponiamo casetta a schiera disposta su due livelli, funzionale e comoda ai principali servizi.
Al piano terra si trova un soggiorno con cucina open space, pratico e ben distribuito.
Al primo piano sono presenti due camere da letto, un bagno e un ripostiglio.
Allesterno presente un piccolo scoperto privato.
Limmobile si trova in contesto tranquillo e facilmente accessibile.
Una soluzione semplice e funzionale, adatta a chi cerca unabitazione indipendente di dimensioni contenute in una zona comoda e ben servita.
A tutela della privacy l'indirizzo indicato non corrisponde all'esatta posizione dell'immobile.
Per maggiori informazioni chiamare la Ns. sede Professionecasa di Noventa Vicentina in Via Matteotti n° 113, al numero 0444-887063.
Rif. P151 Contatta l'inserzionista

Padova House Sas di Contreras Molares AlessandroPadova House Sas di Contreras Molares Alessandro
Via Matteotti 113
, Noventa Vicentina (Vicenza)
Visualizza Telefono

INFORMAZIONI SULL'IMMOBILE

  • Riferimento: Rif P151VRG
  • Tipologia: Villa a schiera in Vendita
  • Locali: 3 Locali (2 camere e un bagno)
  • Piano: Rialzato
  • Prezzo: 139.000 €
  • Prezzo al mq: 1.738 €
  • Spazio Auto: No
  • Modificato il: 30/10/2025
  • Scheda: SC9489962

Stabile

  • Piano: Rialzato
  • Classe Energetica: n.d.

Mappa e indirizzo

36026 Pojana Maggiore (Vicenza)
mappa mostra l'annuncio su mappa

Galleria Fotografica

Contatta l'inserzionista

Padova House Sas di Contreras Molares Alessandro

Padova House Sas di Contreras Molares Alessandro di Noventa Vicentina propone in vendita questo immobile, contattali subito!

Annunci immobiliari a Pojana Maggiore (VI)

Copyright Š 2026 PCase.it. All rights reserved. Sede operativa MILANO. P.IVA 08508420968 - Condizioni d'uso e privacy