Preferiti

Sponsorizza

Stampa

Villa in vendita con posto auto scoperto a Montignoso

  • 410.000€
  • 110 mq
  • Vendesi

MONTIGNOSO, all'interno di un elegante complesso immobiliare dal fascino antico, proponiamo in vendita villetta a schiera d'angolo con ottima esposizione.
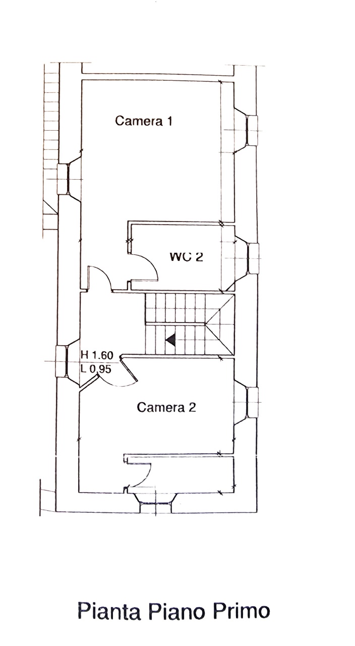
L'abitazione, disposta su due livelli, si compone al piano terra di accogliente e ampio soggiorno con angolo cottura, bagno e comodo studio (utilizzabile anche come camera); al piano primo due camere da letto, entrambe servite da bagno privato.
Completano la proprietà un comodo posto auto e la quota di comproprietà su ampia corte condominiale adibita a giardino, oltre a spaziosa cantina comune adibita a ricovero biciclette.
Euro 410.000,00 Contatta l'inserzionista

AGENZIA IMMOBILIARE ABITARE SRLAGENZIA IMMOBILIARE ABITARE SRL
LOC. MARINA DI MASSA-PIAZZA BETTI 33
54100, Massa (Massa-Carrara)
Visualizza Telefono

INFORMAZIONI SULL'IMMOBILE

  • Riferimento: VS379
  • Tipologia: Villa in Vendita
  • Stato: Buono
  • Bagni: 3
  • Cucina: Angolo cottura
  • Prezzo: 410.000 €
  • Prezzo al mq: 3.727 €
  • Riscaldamento: Autonomo
  • Spazio Auto: Posto auto scoperto
  • Modificato il: 13/04/2026
  • Scheda: SC9636918

Stabile

  • Piani Totali: 2
I.P.E.
189,78Kwh/m2
F

Mappa e indirizzo

54038 Montignoso (Massa-Carrara)
mappa mostra l'annuncio su mappa

Galleria Fotografica

Contatta l'inserzionista

AGENZIA IMMOBILIARE ABITARE SRL

AGENZIA IMMOBILIARE ABITARE SRL di Massa propone in vendita questo immobile, contattali subito!

Annunci simili

Annunci immobiliari a Montignoso (MS)

Copyright Š 2026 PCase.it. All rights reserved. Sede operativa MILANO. P.IVA 08508420968 - Condizioni d'uso e privacy