Preferiti

Sponsorizza

Stampa

Villa in vendita con giardino a Massa - quercioli

  • 270.000€
  • zona quercioli
  • 4 locali
  • 70 mq
  • Vendesi

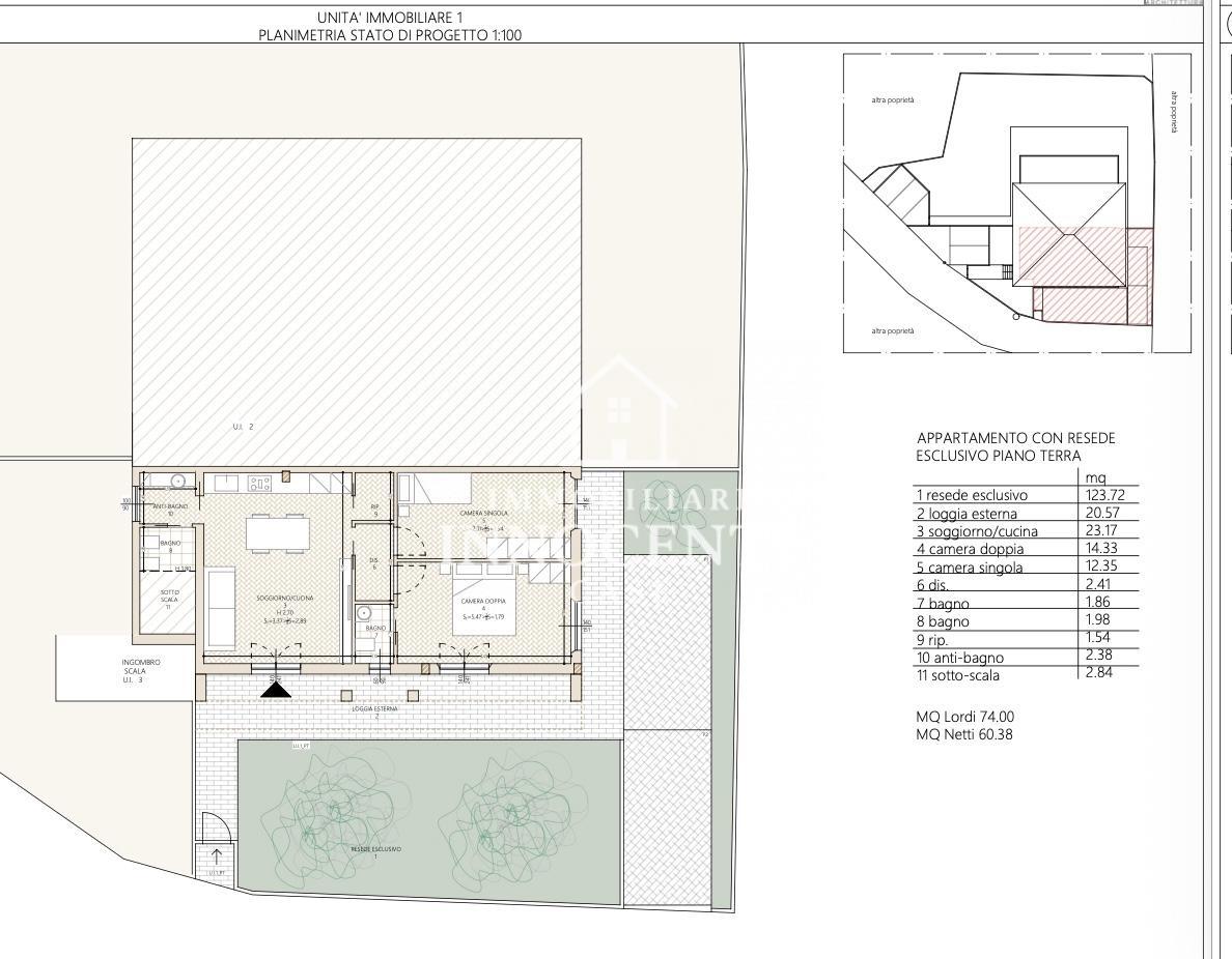
***.*******.** LISA - Massa, località Quercioli, tra il mare e la città, in unoasi di pace e tranquillità, proponiamo in esclusiva APPARTAMENTO inserito IN contesto TRIFAMILIARE con ingresso completamente indipendente, su progetto già approvato e di prossima realizzazione.
Limmobile sarà dotato di accesso privato, due posti auto allinterno della proprietà e giardino esclusivo con loggia esterna, ideale per vivere gli spazi allaperto in totale privacy.
Nessuna spesa condominiale e assenza di servitù di passaggio, con ingressi completamente autonomi.
La soluzione si comporrà di ingresso su soggiorno con angolo cottura, antibagno e bagno, ripostiglio, disimpegno zona notte, secondo bagno, una camera doppia e una camera singola.
Tutti gli ambienti, ad eccezione dei bagni, avranno accesso diretto agli spazi esterni.
Lesposizione su tre lati, nordovestsud, garantirà unottima luminosità durante tutta la giornata.
Limmobile verrà realizzato completamente nuovo, con finiture di ottimo livello e materiali di qualità. Classe energetica in fase di definizione, prevista in fascia elevata.
Il progetto è già definito, con possibilità per lacquirente di apportare eventuali personalizzazioni e migliorie interne, compatibilmente con lo stato di avanzamento lavori e nel rispetto del capitolato.
Soluzione ideale per chi cerca indipendenza, spazi esterni esclusivi e una casa di nuova realizzazione in contesto tranquillo, a pochi minuti dal mare e dai principali servizi. Contatta l'inserzionista

Innocenti Case ImmobiliareInnocenti Case Immobiliare
Piazza Aranci, 39
, Massa (Massa-Carrara)
Visualizza Telefono

INFORMAZIONI SULL'IMMOBILE

  • Riferimento: 1402955/2127/LISA
  • Tipologia: Villetta trifamiliare in Vendita
  • Locali: 4 Locali (3 camere, cucina a vista con doppi servizi)
  • Piano: Terra
  • Stato: Nuovo
  • Prezzo: 270.000 €
  • Prezzo al mq: 3.857 €
  • Riscaldamento: Autonomo
  • Giardino: Privato - 150 Mq
  • Modificato il: 07/04/2026
  • Scheda: SC9633007

Stabile

  • Piano: Terra su 2 totali
  • Classe Energetica: n.d.

Mappa e indirizzo

54100 Massa (Massa-Carrara), zona quercioli
mappa mostra l'annuncio su mappa

Galleria Fotografica

Contatta l'inserzionista

Innocenti Case Immobiliare

Innocenti Case Immobiliare di Massa propone in vendita questo immobile, contattali subito!

Annunci simili

Annunci immobiliari a Massa (MS)

Copyright Š 2026 PCase.it. All rights reserved. Sede operativa MILANO. P.IVA 08508420968 - Condizioni d'uso e privacy