Preferiti

Sponsorizza

Stampa

Villa in vendita da ristrutturare a Castelletto Molina in via roma 15

  • 13.447€
  • 6 locali
  • 167 mq
  • Vendesi

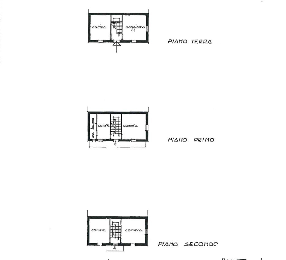
Fabbricato residenziale elevato su tre piani fuori terra, così composto: - piano terra di 52 mq con ingresso su vano scala di collegamento interpiano, cucina, soggiorno; piano I: 52mq con vano scale di collegamento interpiano, due camere, wc, balcone; piano II di 52 mq con vano scala, due camere, balcone.
- Il Prezzo visualizzato è la Base d'Asta in quanto limmobile è oggetto di esecuzione immobiliare venduto tramite Asta Giudiziaria.
- L'immobile aggiudicato, viene venduto libero e sgombro da persone cose ed ipoteche nello stato di fatto e di diritto in cui si trova.
- Non rappresentiamo il Tribunale, ma lavoriamo nell'esclusivo interesse del potenziale acquirente per garantire un acquisto sicuro.
- I consulenti di ASTE ITALIA ti assisteranno in tutte le attività dell'iter giudiziario dalla visita dell'immobile fino alla consegna chiavi.
- Contatta il nostro Servizio Clienti , i nostri operatori sono a disposizione per chiarire i molteplici dubbi per partecipare alle ASTE. Contatta l'inserzionista

DOMY ONLINE S.R.L.DOMY ONLINE S.R.L.
Via San Lorenzo 5 Int. 41
16123, Genova (Genova)
Visualizza Telefono

INFORMAZIONI SULL'IMMOBILE

  • Riferimento: AL210/24LU-0506-26-1
  • Tipologia: Villa in Vendita
  • Locali: 6 Locali
  • Piano: Terra
  • Stato: da Ristrutturare
  • Bagni: 1
  • Cucina: Abitabile
  • Prezzo: 13.447 €
  • Prezzo al mq: 81 €
  • Balconi: 2
  • Modificato il: 09/02/2026
  • Scheda: SC9483661

Stabile

  • Piano: Terra
G

Mappa e indirizzo

Villa sito in via roma 15
14040 Castelletto Molina (Asti)
mappa mostra l'annuncio su mappa

Galleria Fotografica

Contatta l'inserzionista

DOMY ONLINE S.R.L.

DOMY ONLINE S.R.L. di Genova propone in vendita questo immobile, contattali subito!

Annunci immobiliari a Castelletto Molina (AT)

Copyright Š 2026 PCase.it. All rights reserved. Sede operativa MILANO. P.IVA 08508420968 - Condizioni d'uso e privacy