Preferiti

Sponsorizza

Stampa

Villa in vendita con terrazzo a Follo in via xv febbraio snc

  • 136.500€
  • 9 locali
  • 253 mq
  • Vendesi

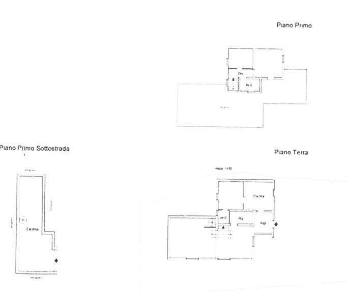
Quota di 1/1 di piena proprietà di villa singola indipendente disposta su tre piani circondata da corte di pertinenza in Via XV Febbraio snc, frazione Pian di Follo, Comune di Follo (SP) della superficie commerciale di 253,00 mq. - Il Prezzo visualizzato è la Base d'Asta in quanto limmobile è oggetto di esecuzione immobiliare venduto tramite Asta Giudiziaria.
- L'immobile aggiudicato, viene venduto libero e sgombro da persone cose ed ipoteche nello stato di fatto e di diritto in cui si trova.
- Non rappresentiamo il Tribunale, ma lavoriamo nell'esclusivo interesse del potenziale acquirente per garantire un acquisto sicuro.
- I consulenti di ASTE ITALIA ti assisteranno in tutte le attività dell'iter giudiziario dalla visita dell'immobile fino alla consegna chiavi.
- Contatta il nostro Servizio Clienti , i nostri operatori sono a disposizione per chiarire i molteplici dubbi per partecipare alle ASTE. Contatta l'inserzionista

DOMY ONLINE S.R.L.DOMY ONLINE S.R.L.
Via San Lorenzo 5 Int. 41
16123, Genova (Genova)
Visualizza Telefono

INFORMAZIONI SULL'IMMOBILE

  • Riferimento: SP92/20L8-0705-26-09
  • Tipologia: Villa in Vendita
  • Locali: 9 Locali
  • Piano: Interrato
  • Stato: da Ristrutturare
  • Bagni: 2
  • Cucina: Abitabile
  • Prezzo: 136.500 €
  • Prezzo al mq: 540 €
  • Terrazzi: 1
  • Modificato il: 12/01/2026
  • Scheda: SC9580160

Stabile

  • Piano: Interrato
G

Mappa e indirizzo

Villa sito in via xv febbraio snc
19020 Follo (La Spezia)
mappa mostra l'annuncio su mappa

Galleria Fotografica

Contatta l'inserzionista

DOMY ONLINE S.R.L.

DOMY ONLINE S.R.L. di Genova propone in vendita questo immobile, contattali subito!

Annunci immobiliari a Follo (SP)

Copyright Š 2026 PCase.it. All rights reserved. Sede operativa MILANO. P.IVA 08508420968 - Condizioni d'uso e privacy