Preferiti

Sponsorizza

Stampa

Villa in vendita con giardino a Vigodarzere

  • 340.000€
  • 4 locali
  • 140 mq
  • Vendesi

VIGODARZERE.
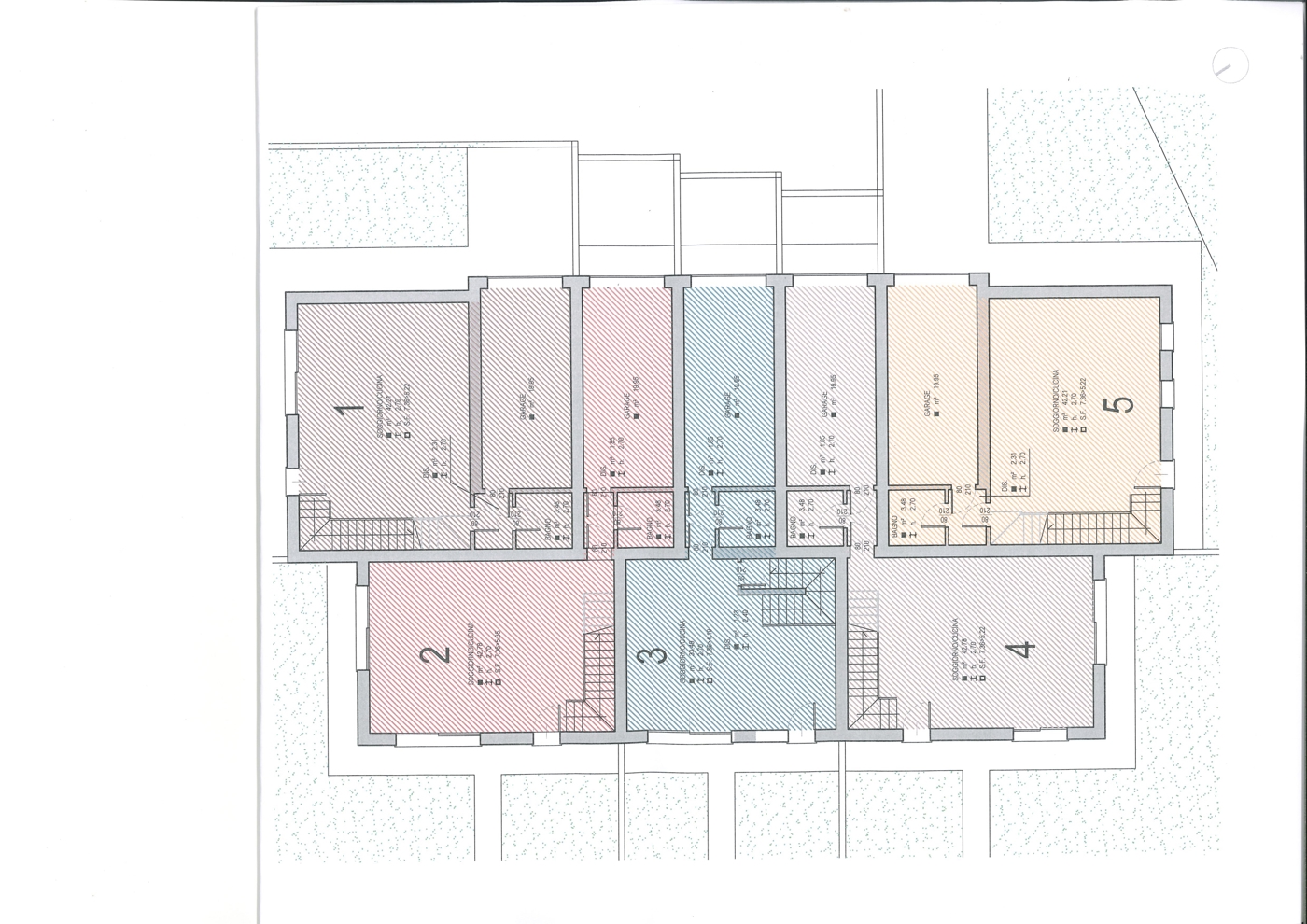
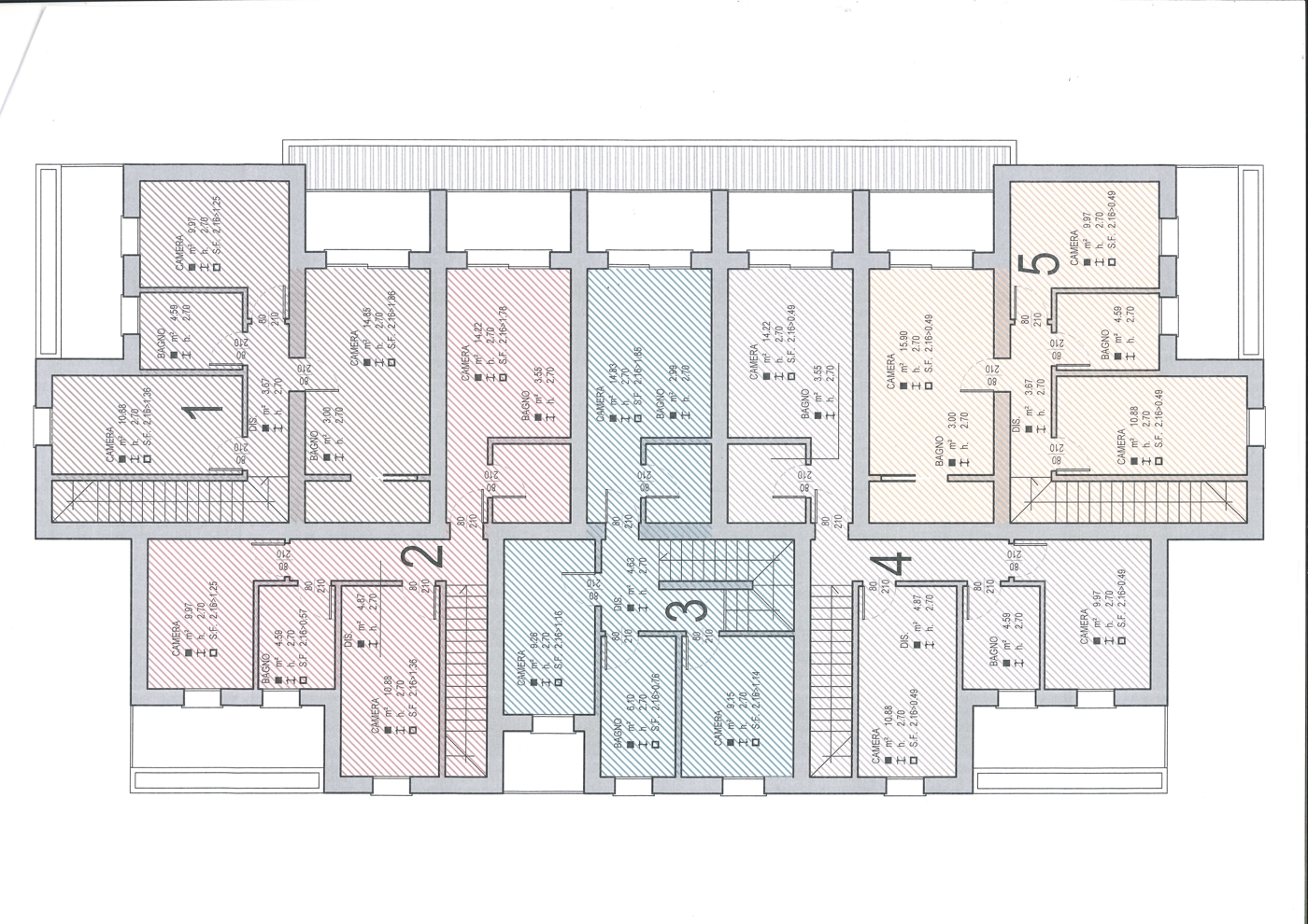
Proponiamo in vendita, cinque esclusive e moderne PORZIONI DI VILLETTE A SCHIERA su due livelli con giardini privati di varie metrature, immerse nel verde che al contempo godono di una posizione strategica vicina ai principali servizi e mezzi di di trasporto.
Le Residenze garantiscono standard elevati di efficienza energetica e tecnologica, con dettagli curati e finiture di pregio.
All'interno, la cucina a vista si apre sul luminoso soggiorno living, creando un ambiente accogliente e conviviale.
Le tre camere da letto a scalare, garantiscono spazi personali ben definiti, mentre i tre bagni offrono confort e praticit per tutta la famiglia.
Garage singolo collegato al piano terra con basculante motorizzato.
Queste soluzioni, rappresentano l'opportunit ideale per chi desidera vivere in un ambiente moderno, confortevole e tecnologicamente avanzato, in una location strategica e ben servita.
Inizio lavori prevista per Gennaio 2026 con consegna 15 mesi. - Fotovoltaico da 3 KW - Infissi In PVC e tapparelle motorizzate - Portoncino ingresso blindato - Predisposizione VMC (ventilazione meccanica controllata) - Predisposizione domotica - Predisposizione antifurto - Predisposizione fibra ottica PREZZI: - PORZIONE 1 360.000 + iva - PORZIONE 2 340.000 + iva - PORZIONE 4 360.000 + iva - PORZIONE 5 380.000 + iva Grimaldi Immobiliare via G. Franco 2/A - 35010 Mejaniga di Cadoneghe (PD) Fisso: 049 8873656 *******@******* ***.*******.** Contatta l'inserzionista

G CASA SAS di Barbara Daniele & CG CASA SAS di Barbara Daniele & C
Galleria delle Porte Contarine 2
, Padova (Padova)
Visualizza Telefono

INFORMAZIONI SULL'IMMOBILE

  • Riferimento: 0493251060VRG
  • Tipologia: Villa a schiera in Vendita
  • Locali: 4 Locali (3 camere, cucina abitabile e 3 bagni)
  • Piano: Rialzato
  • Stato: Nuovo
  • Prezzo: 340.000 €
  • Prezzo al mq: 2.429 €
  • Riscaldamento: Autonomo
  • Giardino: Privato
  • Spazio Auto: Box singolo
  • Modificato il: 21/10/2025
  • Scheda: SC9471560

Stabile

  • Piano: Rialzato
I.P.E.
25,5Kwh/m2
A4

Mappa e indirizzo

35010 Vigodarzere (Padova)
mappa mostra l'annuncio su mappa

Galleria Fotografica

Contatta l'inserzionista

G CASA SAS di Barbara Daniele & C

G CASA SAS di Barbara Daniele & C di Padova propone in vendita questo immobile, contattali subito!

Annunci simili

Annunci immobiliari a Vigodarzere (PD)

Copyright Š 2026 PCase.it. All rights reserved. Sede operativa MILANO. P.IVA 08508420968 - Condizioni d'uso e privacy