Preferiti

Sponsorizza

Stampa

Villa in vendita con giardino a Arquata Scrivia in viale marconi 43

  • 165.750€
  • 7 locali
  • 191 mq
  • Vendesi

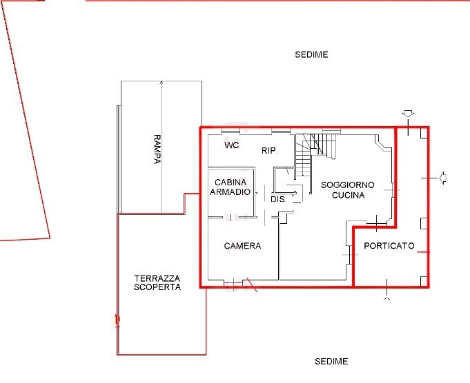
Villetta unifamiliare con autorimessa e ampia area circostante il fabbricato adibita a giardino, composta al piano terra da: ampia zona giorno, disimpegno che distribuisce ad una camera matrimoniale con cabina armadi, un bagno ed una scala che porta al piano interrato.
Superficie di ca mq 150,00. Occupato.
- Il Prezzo visualizzato è la Base d'Asta in quanto limmobile è oggetto di esecuzione immobiliare venduto tramite Asta Giudiziaria.
- L'immobile aggiudicato, viene venduto libero e sgombro da persone cose ed ipoteche nello stato di fatto e di diritto in cui si trova.
- Non rappresentiamo il Tribunale, ma lavoriamo nell'esclusivo interesse del potenziale acquirente per garantire un acquisto sicuro.
- I consulenti di ASTE ITALIA ti assisteranno in tutte le attività dell'iter giudiziario dalla visita dell'immobile fino alla consegna chiavi.
- Contatta il nostro Servizio Clienti , i nostri operatori sono a disposizione per chiarire i molteplici dubbi per partecipare alle ASTE. Contatta l'inserzionista

DOMY ONLINE S.R.L.DOMY ONLINE S.R.L.
Via San Lorenzo 5 Int. 41
16123, Genova (Genova)
Visualizza Telefono

INFORMAZIONI SULL'IMMOBILE

  • Riferimento: AL112/2025LU-1504-26
  • Tipologia: Villa in Vendita
  • Locali: 7 Locali
  • Piano: Interrato
  • Stato: Buono
  • Bagni: 2
  • Cucina: Abitabile
  • Prezzo: 165.750 €
  • Prezzo al mq: 868 €
  • Terrazzi: 1 - 47 Mq
  • Giardino: Privato
  • Modificato il: 27/01/2026
  • Scheda: SC9580951

Stabile

  • Piano: Interrato
G

Mappa e indirizzo

Villa sito in viale marconi 43
15061 Arquata Scrivia (Alessandria)
mappa mostra l'annuncio su mappa

Galleria Fotografica

Contatta l'inserzionista

DOMY ONLINE S.R.L.

DOMY ONLINE S.R.L. di Genova propone in vendita questo immobile, contattali subito!

Annunci immobiliari a Arquata Scrivia (AL)

Copyright Š 2026 PCase.it. All rights reserved. Sede operativa MILANO. P.IVA 08508420968 - Condizioni d'uso e privacy