Preferiti

Sponsorizza

Stampa

Villa in vendita con giardino a Follonica in via pertini

  • 335.000€
  • 150 mq
  • Vendesi

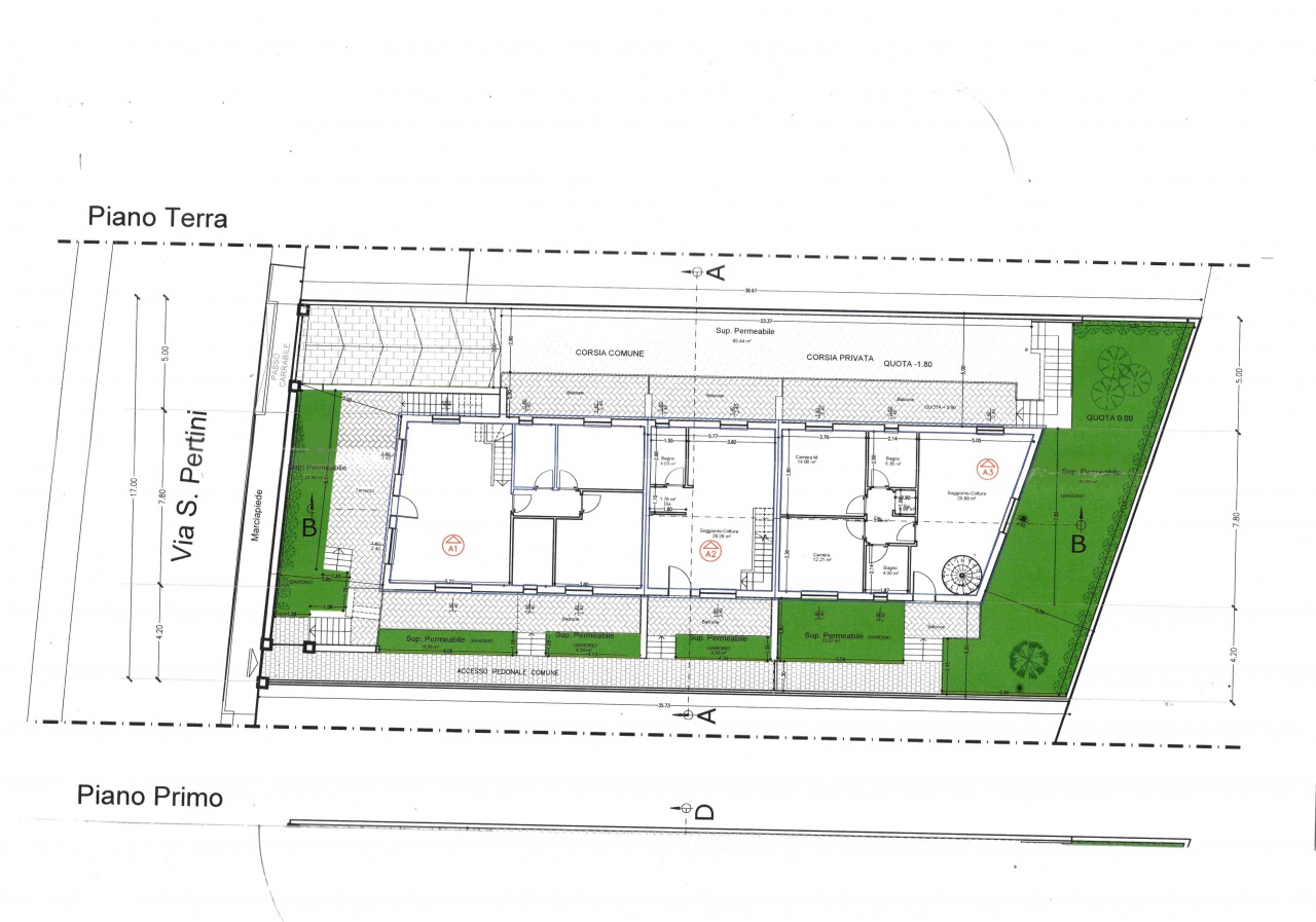
NOSTRA ESCLUSIVA, Via S. Pertini Scopri un'opportunità unica di investimento in una zona residenziale tranquilla e ben collegata! Questo lotto di terreno edificabile è ideale per realizzare una villa trifamiliare, con ingressi indipendenti per ogni unità e giardini privati che offrono spazio e privacy.
Ogni villetta è progettata per garantire comfort e funzionalità, perfetta per famiglie o per chi cerca un ambiente sereno.
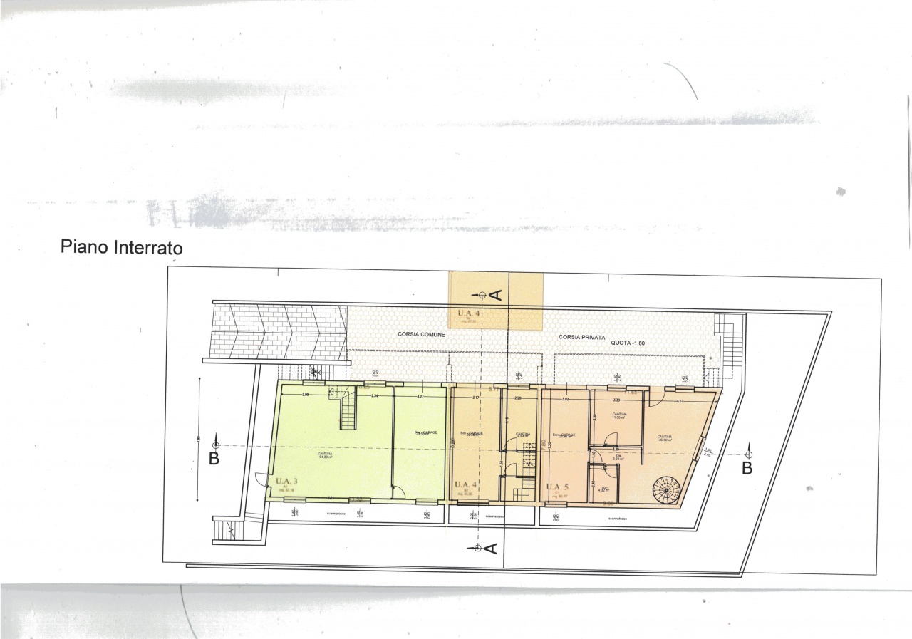
Unità 1: la più grande, composta da ingresso, ampio soggiorno con angolo cottura, tre camere, una con il bagno privato, secondo bagno principale e al piano inferiore grande taverna con garage e il terzo bagno.
Grande giardino privato.
Superficie lorda commerciale 164 mq circa Unità 2: ingresso, ampio soggiorno, cucina, bagno, da una scala ci accede alla mansarda con camera matrimonaile, camerina e secondo bagno e due terrazze.
Completa la proprieta garage e taverna e piccolo giardino.
Superficie lorda commerciale 144 mq circa Unità 3: composta da ingresso, ampio soggiorno con angolo cottura, tre camere, una con il bagno privato, secondo bagno principale e al piano inferiore grande taverna con garage e il terzo bagno.
Grande giardino privato e due spaziose terrazze.
Superficie lorda commerciale 165 mq circa Prezzi partono da 335.000 Per informazioni riservate, documentazione progettuale o per fissare un appuntamento, restiamo a disposizione. Contatta l'inserzionista

SERENA IMMOBILIARESERENA IMMOBILIARE
VIA LITORANEA 27a
58022, Follonica (Grosseto)
Visualizza Telefono

INFORMAZIONI SULL'IMMOBILE

  • Riferimento: OVS400PT
  • Tipologia: Villa in Vendita
  • Stato: Nuovo
  • Bagni: 2
  • Cucina: Abitabile
  • Prezzo: 335.000 €
  • Prezzo al mq: 2.233 €
  • Balconi: 1
  • Terrazzi: 1
  • Riscaldamento: Autonomo
  • Giardino: Privato
  • Spazio Auto: Posto auto scoperto
  • Cantina: Si
  • Modificato il: 18/04/2026
  • Scheda: SC9639742

Stabile

  • Piani Totali: 2
  • Classe Energetica: n.d.

Galleria Fotografica

Contatta l'inserzionista

SERENA IMMOBILIARE

SERENA IMMOBILIARE di Follonica propone in vendita questo immobile, contattali subito!

Annunci simili

Annunci immobiliari a Follonica (GR)

Copyright Š 2026 PCase.it. All rights reserved. Sede operativa MILANO. P.IVA 08508420968 - Condizioni d'uso e privacy