Preferiti

Sponsorizza

Stampa

Villa in vendita con giardino a Quargnento in via kennedy snc

  • 59.231€
  • 10 locali
  • 329 mq
  • Vendesi

Fabbricato in fase di costruzione con area di pertinenza esclusiva a due piani fuori terra e un piano interrato.
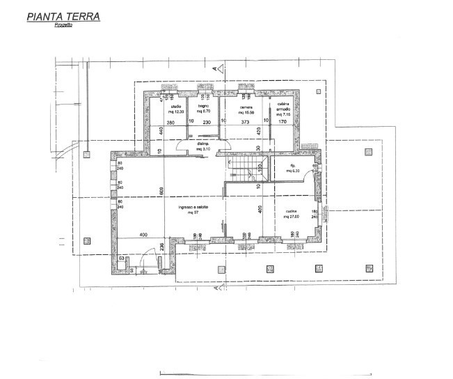
Al piano terra sono presenti: un portico, un ingresso/soggiorno, una cucina abitabile, un ripostiglio, uno studio, un bagno, un disimpegno, una camera con cabina armadi.
Al piano primo sono presenti: due camere, due bagni, un corridoio ed un terrazzo.
Al piano interrato sono presenti un locale autorimessa, un locale caldaia, una cantina, un bagno e un ampio locale di sgombero.
- Il Prezzo visualizzato è la Base d'Asta in quanto limmobile è oggetto di esecuzione immobiliare venduto tramite Asta Giudiziaria.
- L'immobile aggiudicato, viene venduto libero e sgombro da persone cose ed ipoteche nello stato di fatto e di diritto in cui si trova.
- Non rappresentiamo il Tribunale, ma lavoriamo nell'esclusivo interesse del potenziale acquirente per garantire un acquisto sicuro.
- I consulenti di ASTE ITALIA ti assisteranno in tutte le attività dell'iter giudiziario dalla visita dell'immobile fino alla consegna chiavi.
- Contatta il nostro Servizio Clienti , i nostri operatori sono a disposizione per chiarire i molteplici dubbi per partecipare alle ASTE. Contatta l'inserzionista

DOMY ONLINE S.R.L.DOMY ONLINE S.R.L.
Via San Lorenzo 5 Int. 41
16123, Genova (Genova)
Visualizza Telefono

INFORMAZIONI SULL'IMMOBILE

  • Riferimento: AL312/23LU-2406-26-1
  • Tipologia: Villa in Vendita
  • Locali: 10 Locali
  • Piano: Interrato
  • Stato: Nuovo
  • Bagni: 4
  • Cucina: Abitabile
  • Prezzo: 59.231 €
  • Prezzo al mq: 180 €
  • Terrazzi: 1
  • Giardino: Privato
  • Modificato il: 10/02/2026
  • Scheda: SC9459264

Stabile

  • Piano: Interrato
G

Mappa e indirizzo

Villa sito in via kennedy snc
15044 Quargnento (Alessandria)
mappa mostra l'annuncio su mappa

Galleria Fotografica

Contatta l'inserzionista

DOMY ONLINE S.R.L.

DOMY ONLINE S.R.L. di Genova propone in vendita questo immobile, contattali subito!

Annunci immobiliari a Quargnento (AL)

Copyright Š 2026 PCase.it. All rights reserved. Sede operativa MILANO. P.IVA 08508420968 - Condizioni d'uso e privacy