Preferiti

Sponsorizza

Stampa

Villa in vendita con giardino a Campi Bisenzio in via del castellaccio

  • 2.190.000€
  • 5 locali
  • 1380 mq
  • Vendesi

PRESTIGIOSA VILLA STORICA A SAN MARTINO (CAMPI BISENZIO) Nel BORGO DI SAN MARTINO a CAMPI BISENZIO, in zona tranquilla e nel verde ma a un passo da tutti i principali servizi, proponiamo IN VENDITA una DIMORA DAL VALORE STORICO INESTIMABILE.
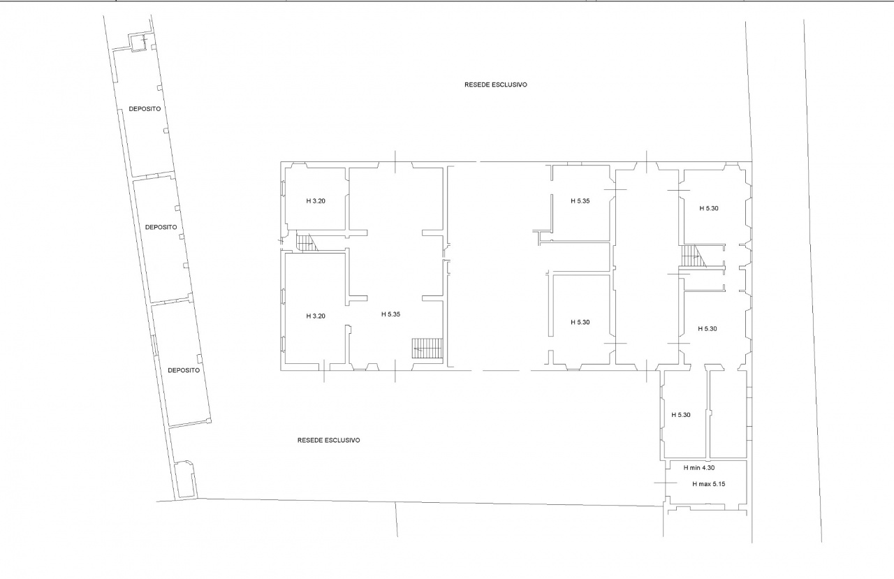
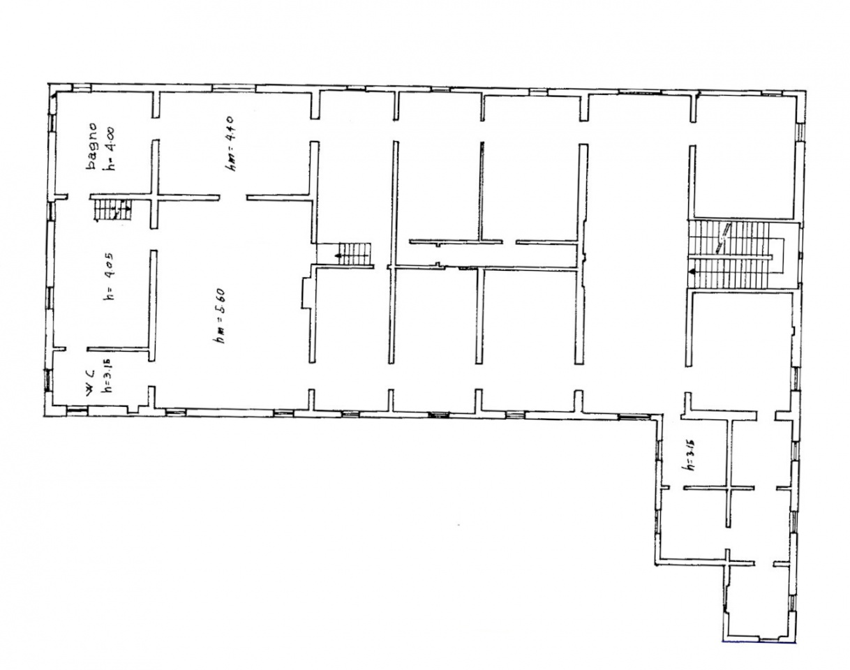
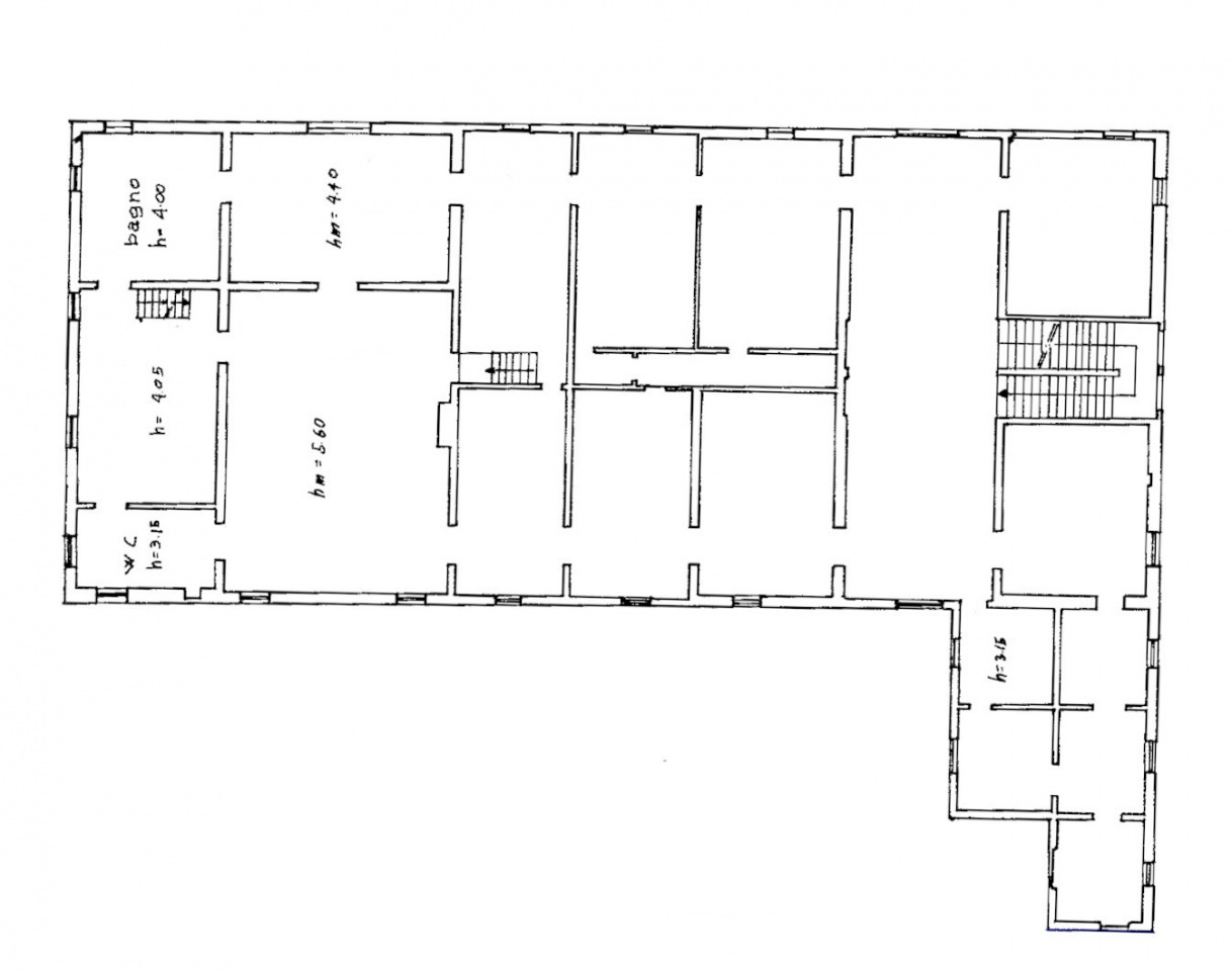
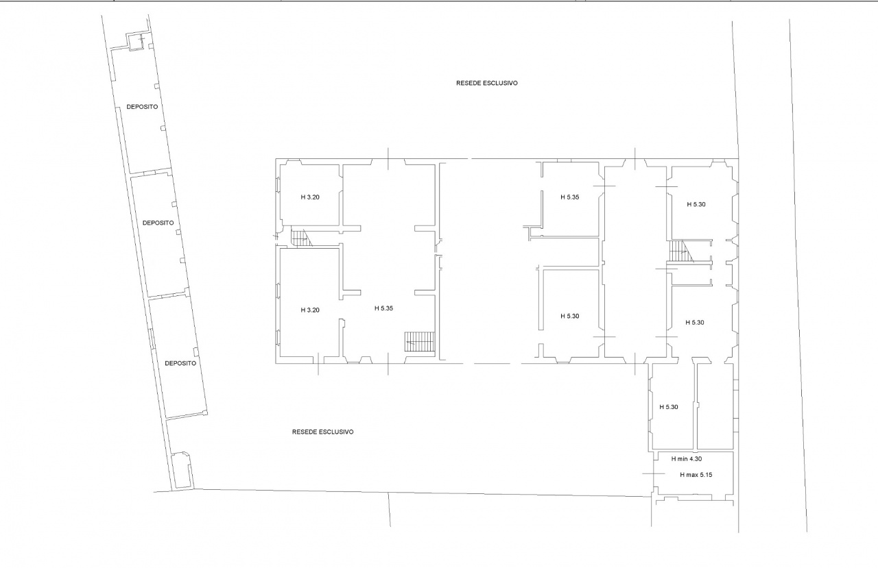
Questa maestosa villa del XV secolo si estende su una superficie di 1480 mq. conservando intatto il fascino delle nobili residenze toscane.
CORPO CENTRALE: 1480 mq distribuiti su ampi volumi, con progetto di frazionamento già ipotizzabile in 17 appartamenti di lusso.
LA CAPPELLA: nella proprietà è inclusa una cappella privata di 55 mq con loggia originale.
ANNESSI: 160 mq di tettoie e un ampio piazzale.
IL PARCO: 1500 mq di terreno privato.
L'immobile pur necessitando di un restauro conservativo, rappresenta un'opportunità unica per investitori o per chi desidera creare un complesso residenziale di altissimo livello.
Prezzo richiesto 2.190.000(TRATTABILI). Per maggiori informazioni e per prenotare una visita, Contattaci! Contatta l'inserzionista

FRA-MO IMMOBILIAREFRA-MO IMMOBILIARE
VIA PISTOIESE, 135
50058, Signa (Firenze)
Visualizza Telefono

INFORMAZIONI SULL'IMMOBILE

  • Riferimento: L1340_2
  • Tipologia: Villa in Vendita
  • Locali: 5 Locali
  • Stato: da Ristrutturare
  • Cucina: Abitabile
  • Prezzo: 2.190.000 €
  • Prezzo al mq: 1.587 €
  • Balconi: 1
  • Terrazzi: 1
  • Riscaldamento: Autonomo
  • Giardino: Privato - 1500 Mq
  • Modificato il: 22/04/2026
  • Scheda: SC9623750

Stabile

  • Piani Totali: 3
G

Mappa e indirizzo

Villa sito in via del castellaccio
50013 Campi Bisenzio (Firenze)
mappa mostra l'annuncio su mappa

Galleria Fotografica

Contatta l'inserzionista

FRA-MO IMMOBILIARE

FRA-MO IMMOBILIARE di Signa propone in vendita questo immobile, contattali subito!

Annunci simili

Annunci immobiliari a Campi Bisenzio (FI)

Copyright Š 2026 PCase.it. All rights reserved. Sede operativa MILANO. P.IVA 08508420968 - Condizioni d'uso e privacy