Preferiti

Sponsorizza

Stampa

Villa in vendita con giardino a Castelnuovo Don Bosco in via avvocato sebastiano filipello 12

  • 199.654€
  • 6 locali
  • 222 mq
  • Vendesi

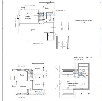
Villetta ad uso civile abitazione, composta da ampia autorimessa, locale tecnico, lavanderia, cantina e due locali di sgombero alpiano interrato; appartamento di soggiorno-cucina, due camere e bagno al piano terreno e due locali disgombero non abitabili al piano sottotetto.
- Il Prezzo visualizzato è la Base d'Asta in quanto limmobile è oggetto di esecuzione immobiliare venduto tramite Asta Giudiziaria.
- L'immobile aggiudicato, viene venduto libero e sgombro da persone cose ed ipoteche nello stato di fatto e di diritto in cui si trova.
- Non rappresentiamo il Tribunale, ma lavoriamo nell'esclusivo interesse del potenziale acquirente per garantire un acquisto sicuro.
- I consulenti di ASTE ITALIA ti assisteranno in tutte le attività dell'iter giudiziario dalla visita dell'immobile fino alla consegna chiavi.
- Contatta il nostro Servizio Clienti , i nostri operatori sono a disposizione per chiarire i molteplici dubbi per partecipare alle ASTE. Contatta l'inserzionista

DOMY ONLINE S.R.L.DOMY ONLINE S.R.L.
Via San Lorenzo 5 Int. 41
16123, Genova (Genova)
Visualizza Telefono

INFORMAZIONI SULL'IMMOBILE

  • Riferimento: AT187/23LU-1510-25-1
  • Tipologia: Villa in Vendita
  • Locali: 6 Locali
  • Piano: Interrato
  • Stato: da Ristrutturare
  • Bagni: 1
  • Cucina: Angolo cottura
  • Prezzo: 199.654 €
  • Prezzo al mq: 899 €
  • Giardino: Privato
  • Modificato il: 17/10/2025
  • Scheda: SC9437948

Stabile

  • Piano: Interrato
G

Mappa e indirizzo

Villa sito in via avvocato sebastiano filipello 12
14022 Castelnuovo Don Bosco (Asti)
mappa mostra l'annuncio su mappa

Galleria Fotografica

Contatta l'inserzionista

DOMY ONLINE S.R.L.

DOMY ONLINE S.R.L. di Genova propone in vendita questo immobile, contattali subito!

Annunci simili

Annunci immobiliari a Castelnuovo Don Bosco (AT)

Copyright Š 2026 PCase.it. All rights reserved. Sede operativa MILANO. P.IVA 08508420968 - Condizioni d'uso e privacy