Preferiti

Sponsorizza

Stampa

Villa in vendita con giardino a Venezia

  • 780.000€
  • 5 locali
  • 248 mq
  • Vendesi

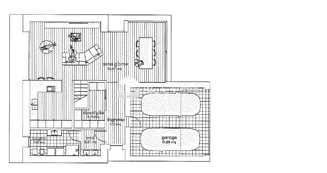
***.*******.** - VILLA DI PREGIO NUOVA COSTRUZIONE IN RESIDENCE MESTRE Proponiamo in vendita all'interno di un esclusivo residence a Mestre immerso in un oasi,in un contesto riservato,raffinato ed immerso nella tranquillità,una splendida villa singola di nuova realizzazione,pensata per chi desidera vivere il lusso autentico,fatto di comfort,privacy e di qualità costruttiva ***.*******.** dal verde e inserita in una location di assoluto prestigio,comoda al centro storico di Mestre ed ai principali servizi,questa residenza interpreta alla perfezione un nuovo concetto di abitare contemporaneo:gli ambienti generosi,la luce naturale protagonista e finiture ricercate capaci di esprimere eleganza in ogni ***.*******.** villa si sviluppa su una superficie di circa 140 mq abitabili,i quali sono distribuiti su due livelli,ed accoglie al piano terra una esclusiva zona living,impreziosita da ampie superfici vetrate che donano luminosità e continuità tra interno e l'***.*******.** suo ingresso introduce ad un ambiente sofisticato e armonioso,dove soggiorno,pranzo e cucina semi-separata convivono in perfetto equilibrio,creando nel contempo uno spazio ideale per vivere e ***.*******.** il piano un bagno,pratiche armadiature a muro,un ampio ripostiglio e infine un comodo garage ***.*******.** piano superiore si apre una raffinata zona notte,progettata per garantire massimo benessere e riservatezza:la suite matrimoniale con bagno en-suite rappresenta uno spazio intimo ed esclusivo,affiancata da due camere singole e da un ulteriore bagno,in una distribuzione degli ambienti pensata per soddisfare le esigenze della famiglia ***.*******.**'esterno, il magnifico giardino privato di circa 250/300 mq valorizza ulteriormente la proprietà,offrendo uno spazio verde riservato dove è possibile realizzare una piscina e creare così un'oasi personale di relax ed esclusività***.*******.** punto di vista impiantistico e costruttivo,l'abitazione è stata concepita secondo standard di eccellenza, con soluzioni all'avanguardia come riscaldamento a pavimento,pompa di calore,una ventilazione meccanica controllata ed impianto fotovoltaico privato,per garantire elevata efficienza energetica,comfort abitativo e un lifestyle ***.*******.** capitolato prevede inoltre materiali di pregio,tra cui legno e marmo,per un risultato finale di assoluta ***.*******.** residenza così esclusiva,laddove il design,tecnologia e natura si incontrano per dare vita ad una casa unica,destinata a chi non si accontenta del semplice abitare,ma desidera ***.*******.** a disposizione presso la nostra nuova sede di Montegrotto Terme (PD) in ***.*******.** delle Terme 117, per illustrarvi tutte le specifiche relative a questo interessantissimo nuovo progetto e condurvi a visitare il cantiere previo appuntamento.
Si intende precisare che gli indirizzi presenti negli annunci non sono identificativi dell'ubicazione precisa dell'immobile, danno un riferimento solo generico della zona al cliente che ricerca, al fine di tutelare la privacy e riservatezza del venditore.
Per visionare l'immobile o per ricevere ulteriori informazioni contattateci allo 0423 1904721 - Le nostre sedi: Montebelluna (TV) - Maser (TV) - Conegliano (TV) - Jesolo (VE) - Montegrotto Terme (PD). Contatta l'inserzionista

ACCORDI AGENZIA CONEGLIANOACCORDI AGENZIA CONEGLIANO
via Madonna 1
31015, Conegliano (Treviso)
Visualizza Telefono

INFORMAZIONI SULL'IMMOBILE

  • Riferimento: LLME3
  • Tipologia: Villa in Vendita
  • Locali: 5 Locali
  • Piano: Terra
  • Stato: Nuovo
  • Bagni: 3
  • Prezzo: 780.000 €
  • Prezzo al mq: 3.145 €
  • Terrazzi: 1
  • Riscaldamento: Autonomo
  • Giardino: Privato - 300 Mq
  • Spazio Auto: Box doppio in larghezza
  • Modificato il: 23/04/2026
  • Scheda: SC9642509

Stabile

  • Piano: Terra su 2 totali
  • Classe Energetica: n.d.

Mappa e indirizzo

30126 Venezia (Venezia)
Santa Croce
mappa mostra l'annuncio su mappa

Galleria Fotografica

Contatta l'inserzionista

ACCORDI AGENZIA CONEGLIANO

ACCORDI AGENZIA CONEGLIANO di Conegliano propone in vendita questo immobile, contattali subito!

Annunci simili

Annunci immobiliari a Venezia (VE)

Copyright Š 2026 PCase.it. All rights reserved. Sede operativa MILANO. P.IVA 08508420968 - Condizioni d'uso e privacy