Preferiti

Sponsorizza

Stampa

Villa in vendita con giardino a Vecchiano - migliarino

  • 315.000€
  • zona migliarino
  • 5 locali
  • 211 mq
  • Vendesi

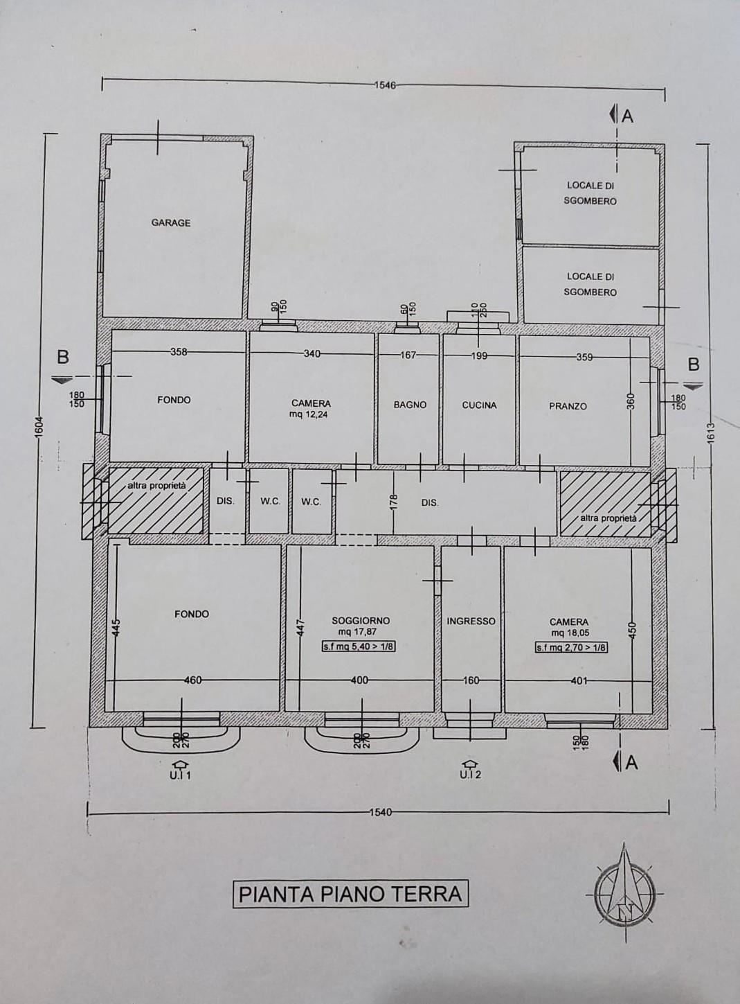
***.*******.** R2605 - Migliarino, libero subito, grande compendio immobiliare formato da appartamento di 5 vani e fondo commerciale di 2 vani, con 3 bagni complessivi e due garages, i fondi ed i garages sono convertibili in una seconda abitazione residenziale mediante richiesta di cambio di destinazione d'uso, l'immobile consisteste nell'interezza del piano terra di una duplex con il doppio ingresso, uno per la parte già residenziale formata da ingresso, soggiorno, cucina, tre grandi camere, bagno padronale e bagno di servizio, uno per la parte commerciale formata da due grandi vani disimpegnati e bagno.
contigui all'immobile principale ci sono 2 locali di dimensioni simili, uno adibito a garage, l'altro a locale di sgombero e lavanderia.
la parte dietro del complesso è corredata da un grande giardino privato, carrabile di circa 500 mq. l'immobile, che ha bisogno di un intervento di riammodernamento, si presta ad un frazionamento in due o più unità abitative uso genitori figli o ad una soluzione ricettiva data la vicinanza alla spiaggia di Marina di Vecchiano, alla tenuta Salviati, all'ingresso della Firenze mare nonchè alla Versilia ed a Pisa e Lucca.
ed è posizionato in zona centrale con tutti i servizi raggiungibili a piedi. Contatta l'inserzionista

ARCHICASAARCHICASA
Via delle Ardenne, 9/B
, Pisa (Pisa)
Visualizza Telefono

INFORMAZIONI SULL'IMMOBILE

  • Riferimento: 1403113/1442/R2605
  • Tipologia: Duplex in Vendita
  • Locali: 5 Locali
  • Piano: Rialzato
  • Stato: Buono
  • Bagni: 3
  • Cucina: Abitabile
  • Prezzo: 315.000 €
  • Prezzo al mq: 1.493 €
  • Riscaldamento: Autonomo
  • Giardino: Privato - 500 Mq
  • Modificato il: 23/03/2026
  • Scheda: SC9624381

Stabile

  • Piano: Rialzato su 2 totali
  • Classe Energetica: n.d.

Mappa e indirizzo

56019 Vecchiano (Pisa), zona migliarino
mappa mostra l'annuncio su mappa

Galleria Fotografica

Contatta l'inserzionista

ARCHICASA

ARCHICASA di Pisa propone in vendita questo immobile, contattali subito!

Annunci simili

Annunci immobiliari a Vecchiano (PI)

Copyright Š 2026 PCase.it. All rights reserved. Sede operativa MILANO. P.IVA 08508420968 - Condizioni d'uso e privacy