Preferiti

Sponsorizza

Stampa

Villa in vendita con giardino a Sangano

  • 329.000€
  • 7 locali
  • 350 mq
  • Vendesi

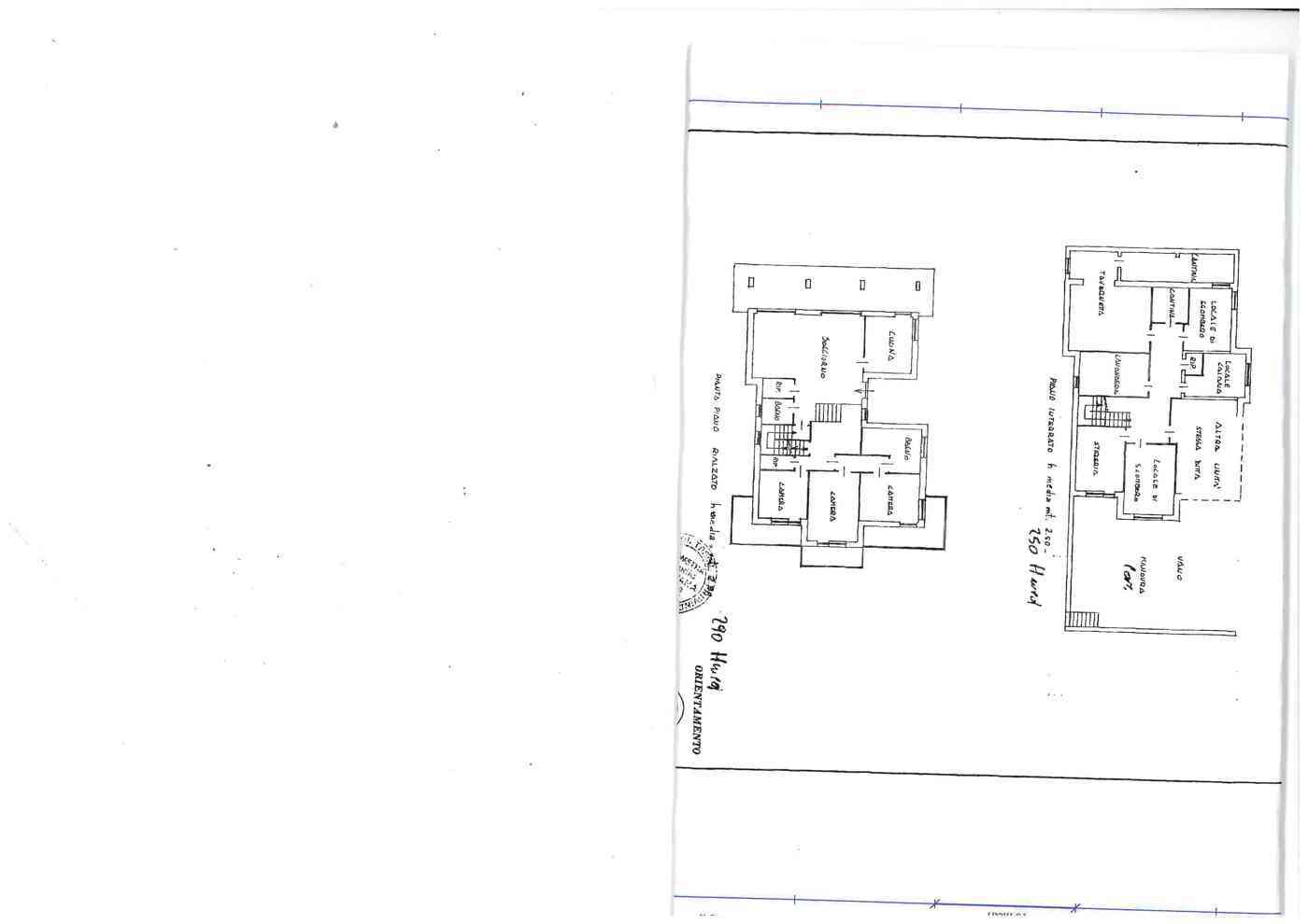
Zona residenziale e soleggiata, proponiamo ampia villa signorile su lotto di c.a 1.500 mq. composta al piano terreno da salone, cucina abitabile, disimpegno, tre camere, doppi servizi e doppi ripostigli.
Sottotetto grezzo dove poter ricavare ulteriori due camere e servizio.
Al piano seminterrato taverna, due locali sgombero, lavanderia, locale caldaia, due cantine e box doppio.
La casa presenta metrature interne ampie e vivibili ideale per un grande nucleo familiare e lo spazio esterno consente di godere a pieno splendide giornate con amici e parenti.
LIBERA SUBITO! Contatta l'inserzionista

INFORMAZIONI SULL'IMMOBILE

  • Riferimento: Cod. rif 3310646VRG
  • Tipologia: Villa o villino in Vendita
  • Locali: 7 Locali
  • Piano: Rialzato
  • Stato: da Ristrutturare
  • Bagni: 3
  • Cucina: Abitabile
  • Prezzo: 329.000 €
  • Prezzo al mq: 940 €
  • Riscaldamento: Autonomo
  • Giardino: Privato
  • Spazio Auto: Posto auto coperto
  • Cantina: Si
  • Modificato il: 17/04/2026
  • Scheda: SC9638511

Stabile

  • Anno: 1986
  • Piano: Rialzato
I.P.E.
253,75Kwh/m2
F

Mappa e indirizzo

10090 Sangano (Torino)
mappa mostra l'annuncio su mappa

Galleria Fotografica

Contatta l'inserzionista

Bruino Case SAS di Illustrato Marco & Illustrato Michele & C.

Bruino Case SAS di Illustrato Marco & Illustrato Michele & C. di Bruino propone in vendita questo immobile, contattali subito!

Annunci immobiliari a Sangano (TO)

Copyright Š 2026 PCase.it. All rights reserved. Sede operativa MILANO. P.IVA 08508420968 - Condizioni d'uso e privacy