Preferiti

Sponsorizza

Stampa

Villa in vendita con giardino a Genova in passo ponte carrega 20

  • 41.850€
  • 5 locali
  • 73 mq
  • Vendesi

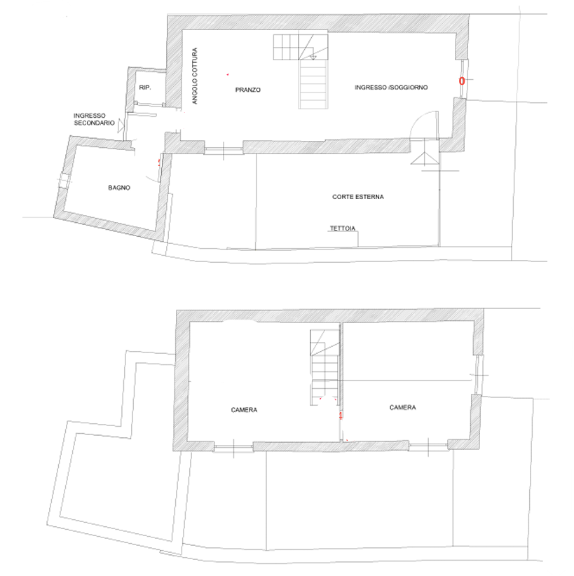
Genova, piena proprietà di abitazione indipendente disposta su due piani, sita in Passo Ponte Carrega civico n. 20, composta da zona giorno con angolo cottura, bagno, ripostiglio e tettoia parzialmente chiusa al piano terra e, due camere al piano superiore (mansardato). della superficie convenzionale è di mq. 72,80, con annesso magazzino posto al piano terreno della superficie convenzionale di mq. 15 nonché circostante terreno della superficie convenzionale di mq. 183. - Il Prezzo visualizzato è la Base d'Asta in quanto limmobile è oggetto di esecuzione immobiliare venduto tramite Asta Giudiziaria.
- L'immobile aggiudicato, viene venduto libero e sgombro da persone cose ed ipoteche nello stato di fatto e di diritto in cui si trova.
- Non rappresentiamo il Tribunale, ma lavoriamo nell'esclusivo interesse del potenziale acquirente per garantire un acquisto sicuro.
- I consulenti di ASTE ITALIA ti assisteranno in tutte le attività dell'iter giudiziario dalla visita dell'immobile fino alla consegna chiavi.
- Contatta il nostro Servizio Clienti , i nostri operatori sono a disposizione per chiarire i molteplici dubbi per partecipare alle ASTE. Contatta l'inserzionista

DOMY ONLINE S.R.L.DOMY ONLINE S.R.L.
Via San Lorenzo 5 Int. 41
16123, Genova (Genova)
Visualizza Telefono

INFORMAZIONI SULL'IMMOBILE

  • Riferimento: GE156/25LU-1405-26-1
  • Tipologia: Villa in Vendita
  • Locali: 5 Locali
  • Piano: Terra
  • Stato: da Ristrutturare
  • Bagni: 1
  • Cucina: Abitabile
  • Prezzo: 41.850 €
  • Prezzo al mq: 573 €
  • Giardino: Privato
  • Modificato il: 27/03/2026
  • Scheda: SC9615364

Stabile

  • Piano: Terra
G

Mappa e indirizzo

Villa sito in passo ponte carrega 20
16159 Genova (Genova)
Molassana, Struppa
mappa mostra l'annuncio su mappa

Galleria Fotografica

Contatta l'inserzionista

DOMY ONLINE S.R.L.

DOMY ONLINE S.R.L. di Genova propone in vendita questo immobile, contattali subito!

Annunci simili

Annunci immobiliari a Genova (GE)

Copyright Š 2026 PCase.it. All rights reserved. Sede operativa MILANO. P.IVA 08508420968 - Condizioni d'uso e privacy