Preferiti

Sponsorizza

Stampa

Villa in vendita con giardino a Marino

  • 320.000€
  • 3 locali
  • 105 mq
  • Vendesi

Marino - Frattocchie in via Kennedy, allinterno del complesso residenziale LUliveto, con tutti i servizi raggiungibili a piedi come scuole, parchi pubblici, supermercati (centro commerciale La Nave) , nonch comodo per il raggiungimento sia di via Nettunense che via del Divino Amore, proponiamo la vendita del nuovo corpo di ville in pentafamiliare.
Le tipologie abitative sono due con 2 o 3 camere da letto, con la progettazione a cura dellArchitetto Alessio de Acetis.
La struttura la fusione perfetta per chi vuole vivere nelle vicinanze dei servizi senza rinunciare allindipendenza.
Un progetto moderno che fa della tecnologia un perno grazie al riscaldamento a pavimento con impianto a pompa di calore sistema Daikin, pavimento radiante, predisposizione per condizionatori idronici in tutti gli ambienti, boiler di accumulo acqua calda sanitaria, impianto fotovoltaico di 1 kw, predisposizione impianto di allarme, cisterna di accumulo acqua piovana per irrigazione giardino.
Il compresso il proseguo di ville gi edificate con gli stessi criteri costruttivi, adiacente al parco comunale di via Kennedy.
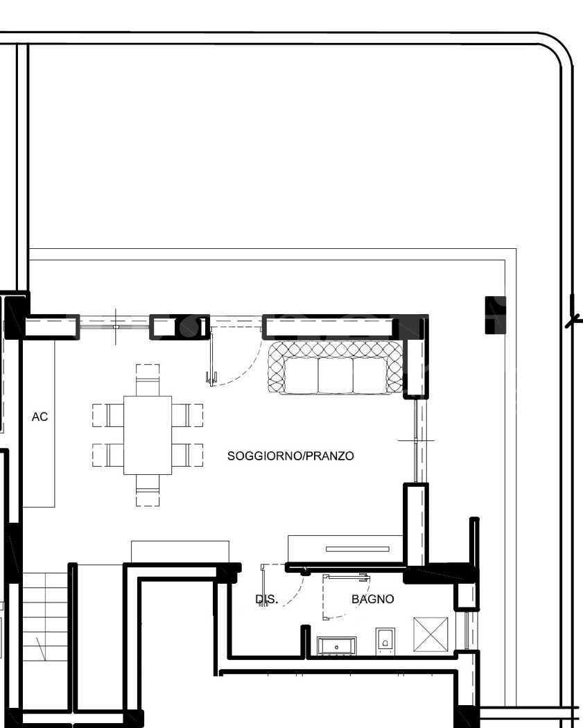
Proponiamo la vendita della porzione Angolare cielo-terra di circa 105 mq residenziali, divisa nella zona giorno al piano terra e la zona notte al primo piano.
Entriamo nella propriet dal giardino perimetrale, raggiungiamo linterno della struttura dove troviamo la comoda zona giorno con angolo cottura, disimpegno e bagno; al piano superiore disimpegno, 2 camere da letto entrambe matrimoniali, 2 bagni e due balconi.
La doppia esposizione rende limmobile luminoso e arioso.
Completa la propriet un posto auto scoperto interno al Residence.
La consegna prevista per fine 2026 Prezzi di vendita a partire da euro 320.000 Contatta l'inserzionista

S.F. Immobiliare srlS.F. Immobiliare srl
Viale della Repubblica 28/B
, Marino (Roma)
Visualizza Telefono

INFORMAZIONI SULL'IMMOBILE

  • Riferimento: 320 VIA KENNEDYVRG
  • Tipologia: Villa Quadrifamiliare in Vendita
  • Locali: 3 Locali (2 camere, cucina angolo cottura e 3 bagni)
  • Piano: Rialzato
  • Stato: Nuovo
  • Prezzo: 320.000 €
  • Prezzo al mq: 3.048 €
  • Spese: 240,00 € (annuali)
  • Balconi: 1
  • Riscaldamento: Autonomo
  • Giardino: Privato
  • Spazio Auto: Posto auto scoperto
  • Modificato il: 12/02/2026
  • Scheda: SC9599541

Stabile

  • Anno: 2026
  • Piano: Rialzato
  • Portineria: No
I.P.E.
44Kwh/m2
A4

Mappa e indirizzo

00047 Marino (Roma)
mappa mostra l'annuncio su mappa

Galleria Fotografica

Contatta l'inserzionista

S.F. Immobiliare srl

S.F. Immobiliare srl di Marino propone in vendita questo immobile, contattali subito!

Annunci simili

Annunci immobiliari a Marino (RM)

Copyright Š 2026 PCase.it. All rights reserved. Sede operativa MILANO. P.IVA 08508420968 - Condizioni d'uso e privacy