Preferiti

Sponsorizza

Stampa

Villa in vendita con giardino a Valbrevenna in località chiappa 4 - chiappa

  • 18.984€
  • zona chiappa
  • 8 locali
  • 157 mq
  • Vendesi

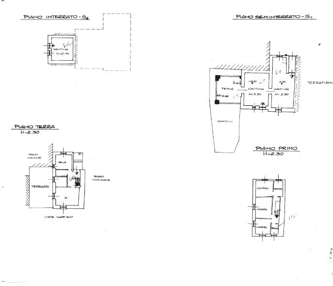
Piena ed intera proprietà della seguente unità immobiliare:Casa Unifamiliare con annessi cantina doppia e fienile con giardino ubicati al primo piano sottostrada; cantina posta al piano secondo sottostrada, ubicata nel comune di Valbrevenna (GE) località Chiappa, civ. 4 piani terra, primo, primo e secondo sottostrada.
- Il Prezzo visualizzato è la Base d'Asta in quanto limmobile è oggetto di esecuzione immobiliare venduto tramite Asta Giudiziaria.
- L'immobile aggiudicato, viene venduto libero e sgombro da persone cose ed ipoteche nello stato di fatto e di diritto in cui si trova.
- Non rappresentiamo il Tribunale, ma lavoriamo nell'esclusivo interesse del potenziale acquirente per garantire un acquisto sicuro.
- I consulenti di ASTE ITALIA ti assisteranno in tutte le attività dell'iter giudiziario dalla visita dell'immobile fino alla consegna chiavi.
- Contatta il nostro Servizio Clienti , i nostri operatori sono a disposizione per chiarire i molteplici dubbi per partecipare alle ASTE. Contatta l'inserzionista

DOMY ONLINE S.R.L.DOMY ONLINE S.R.L.
Via San Lorenzo 5 Int. 41
16123, Genova (Genova)
Visualizza Telefono

INFORMAZIONI SULL'IMMOBILE

  • Riferimento: GE39/24LU-2705-26-14
  • Tipologia: Villa in Vendita
  • Locali: 8 Locali
  • Piano: Interrato
  • Stato: da Ristrutturare
  • Bagni: 1
  • Cucina: Abitabile
  • Prezzo: 18.984 €
  • Prezzo al mq: 121 €
  • Terrazzi: 1 - 33 Mq
  • Giardino: Privato
  • Modificato il: 23/03/2026
  • Scheda: SC9449967

Stabile

  • Piano: Interrato
F

Mappa e indirizzo

Villa sito in località chiappa 4
16010 Valbrevenna (Genova), zona chiappa
mappa mostra l'annuncio su mappa

Galleria Fotografica

Contatta l'inserzionista

DOMY ONLINE S.R.L.

DOMY ONLINE S.R.L. di Genova propone in vendita questo immobile, contattali subito!

Annunci immobiliari a Valbrevenna (GE)

Copyright © 2026 PCase.it. All rights reserved. Sede operativa MILANO. P.IVA 08508420968 - Condizioni d'uso e privacy