Preferiti

Sponsorizza

Stampa

Villa in vendita con giardino a Gavorrano

  • 225.000€
  • 85 mq
  • Vendesi

Caldana (GR), 20 minuti dal mare di Follonica e Castiglione della Pescaia, villetta a schiera di nuova costruzione ai margini del borgo antico.
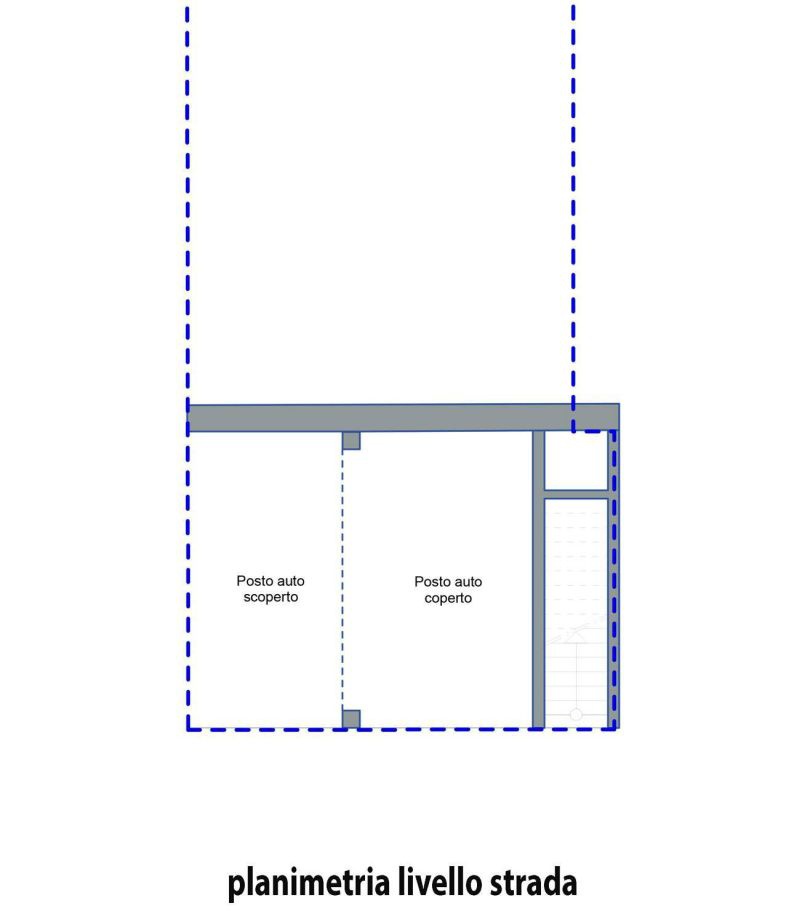
Si tratta di un appartamento indipendente corredato di giardinetto e n 2 posti auto esclusivi.
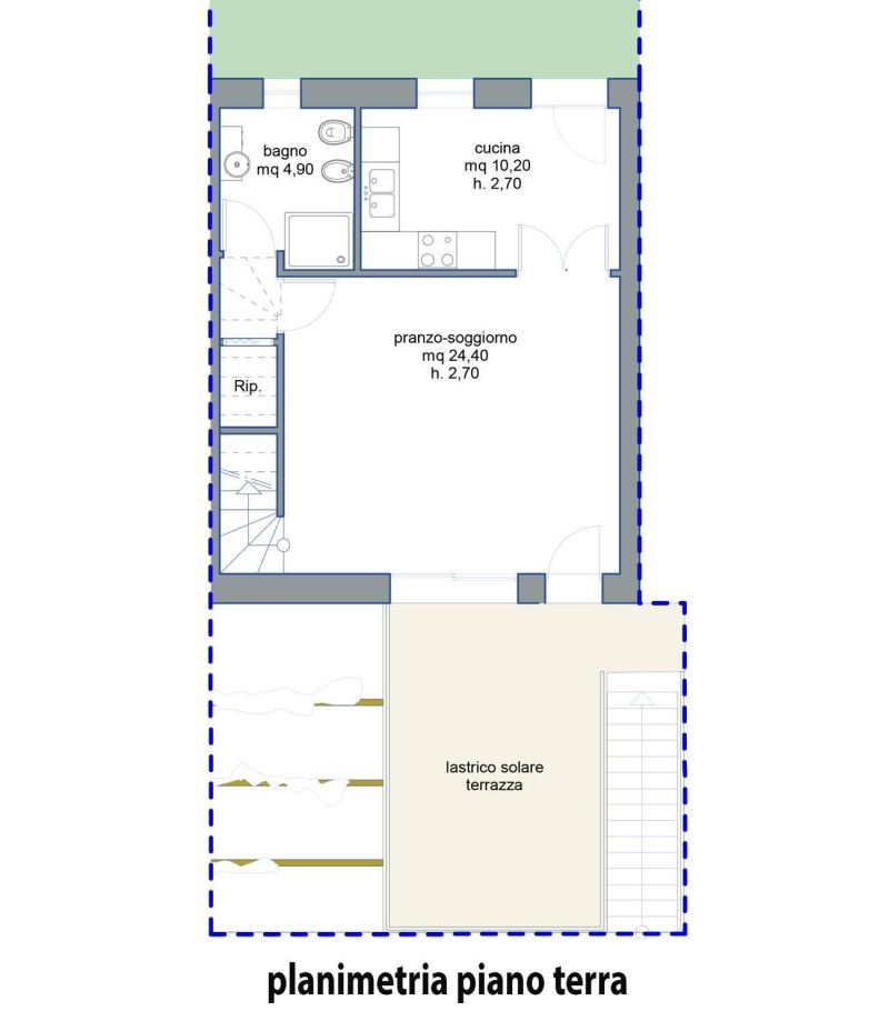
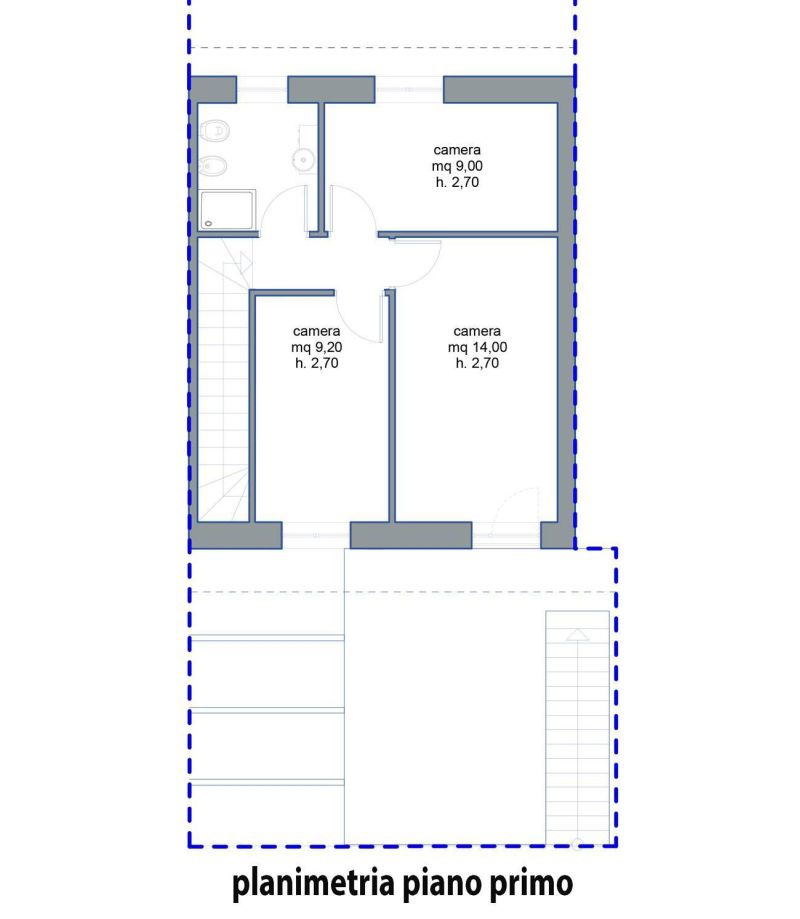
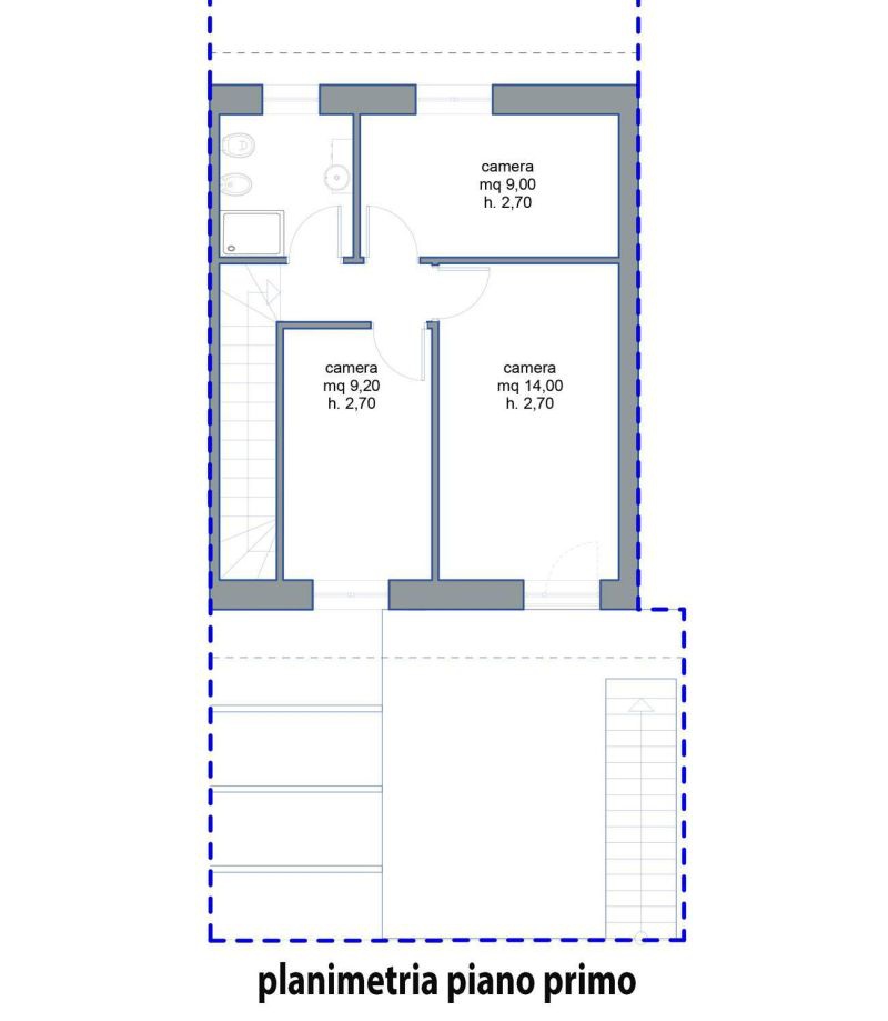
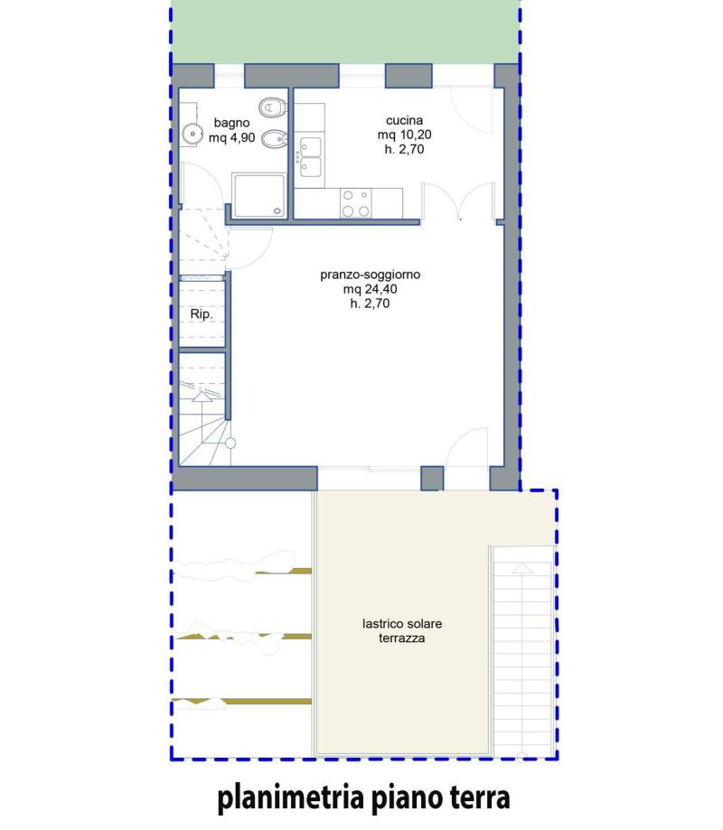
L'alloggio si sviluppa su 2 livelli con accesso da scalinata esterna su ingresso con terrazzo esclusivo di 17 mq che introduce al soggiorno con parete cottura, bagno, ripostiglio sottoscala, e giardinetto esclusivo sul lato cucina; al piano soprastante si trovano 3 camere, ed un bagno.
Finiture di alto livello, impiantistica di ultima generazione, "Classe A" finalizzata al risparmio energetico con riscaldamento radiante a pavimento, pannelli fotovoltaici, domotica.... Bellissima esposizione a sud con vista sulla vallata! 225.000,00 oltre IVA. Contatta l'inserzionista

IMMOBILIARE LA MINIERAIMMOBILIARE LA MINIERA
VIA MATTEOTTI 4
58023, Gavorrano (Grosseto)
Visualizza Telefono

INFORMAZIONI SULL'IMMOBILE

  • Riferimento: 10/19
  • Tipologia: Villa in Vendita
  • Stato: Nuovo
  • Bagni: 2
  • Cucina: Abitabile
  • Prezzo: 225.000 €
  • Prezzo al mq: 2.647 €
  • Terrazzi: 1
  • Riscaldamento: Autonomo
  • Giardino: Privato - 40 Mq
  • Spazio Auto: Posto auto scoperto
  • Modificato il: 03/10/2025
  • Scheda: SC9468223

Stabile

  • Piani Totali: 3
  • Classe Energetica: n.d.

Mappa e indirizzo

58023 Gavorrano (Grosseto)
mappa mostra l'annuncio su mappa

Galleria Fotografica

Contatta l'inserzionista

IMMOBILIARE LA MINIERA

IMMOBILIARE LA MINIERA di Gavorrano propone in vendita questo immobile, contattali subito!

Annunci simili

Annunci immobiliari a Gavorrano (GR)

Copyright Š 2026 PCase.it. All rights reserved. Sede operativa MILANO. P.IVA 08508420968 - Condizioni d'uso e privacy