Preferiti

Sponsorizza

Stampa

Villa in vendita con giardino a Cecina - palazzaccio

  • 397.000€
  • zona palazzaccio
  • 4 locali
  • 85 mq
  • Vendesi

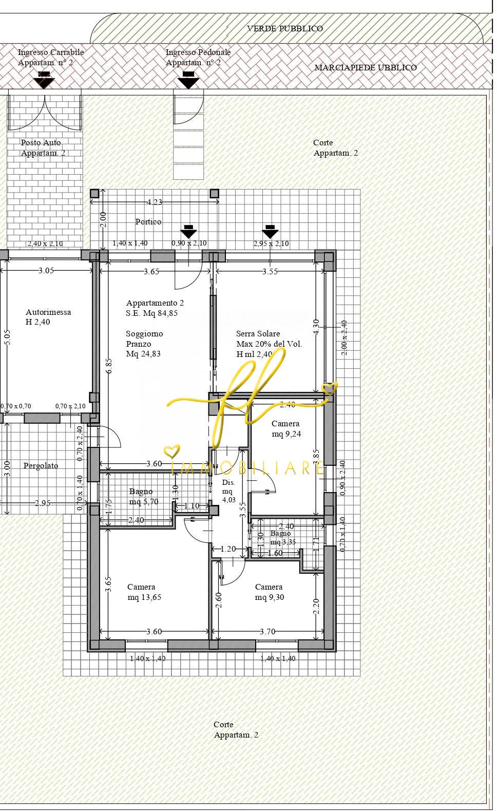
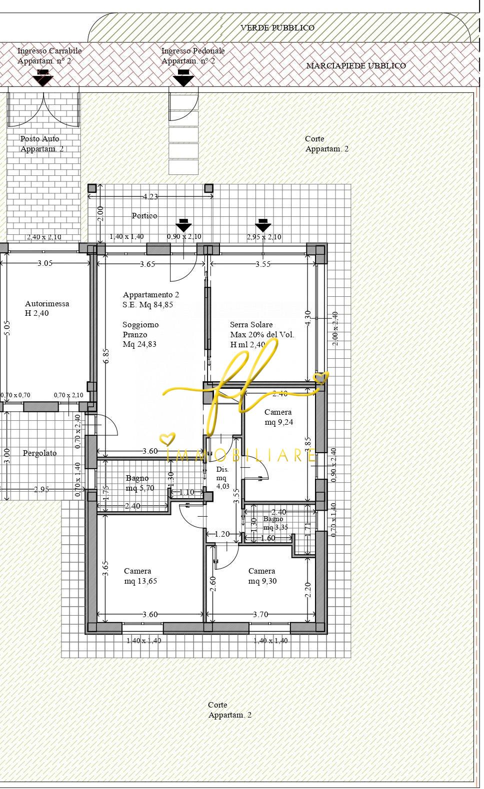
***.*******.** FL-2132MV - FL Immobiliare Vende in Esclusiva Villetta di Nuova Costruzione libera su 3 lati Comfort, Design e Giardino Proponiamo in vendita esclusiva una splendida villetta indipendente, situata interamente al piano terra e libera su tre lati, perfetta per chi cerca la massima comodità senza barriere architettoniche.
Limmobile, di nuova realizzazione, si distingue per le finiture di pregio e efficienza energetica.
L'ingresso si apre su un'ampia e luminosa zona giorno, pensata per accogliere la famiglia in un ambiente moderno e arioso con accesso diretto all'esterno.
La zona notte è composta da: 3 Camere da letto spaziose e ben esposte.
Doppi servizi moderni con materiali di qualità. Completano la proprietà un garage e un giardino privato che circonda la casa su tre lati, l'ideale per momenti di relax all'aperto o cene estive.
Caratteristiche Principali: Libera su 3 lati (totale indipendenza); Tutto su un unico livello (Piano Terra); Ottime rifiniture personalizzabili; Giardino esclusivo e Garage incluso Consegna primavera 2028 Rif. FL-2132MV Lagenzia mette a disposizione dei propri clienti i seguenti servizi: Broker finanziario per Mutui e/o Prestiti, Studio tecnico per redazione di Accesso Atti Catastali, Relazione Tecnica e Attestato di Prestazione Energetica (APE) Contatta l'inserzionista

FL IMMOBILIAREFL IMMOBILIARE
Via Monte Nevoso, 120
, Cecina (Livorno)
Visualizza Telefono

INFORMAZIONI SULL'IMMOBILE

  • Riferimento: 1409492/1721/FL-2132
  • Tipologia: Villetta a schiera angolare in Vendita
  • Locali: 4 Locali (3 camere, cucina a vista con doppi servizi)
  • Piano: Terra
  • Stato: Nuovo
  • Prezzo: 397.000 €
  • Prezzo al mq: 4.671 €
  • Riscaldamento: Autonomo
  • Giardino: Privato
  • Modificato il: 27/04/2026
  • Scheda: SC9644323

Stabile

  • Piano: Terra
I.P.E.
41Kwh/m2
A+

Mappa e indirizzo

57023 Cecina (Livorno), zona palazzaccio
mappa mostra l'annuncio su mappa

Galleria Fotografica

Contatta l'inserzionista

FL IMMOBILIARE

FL IMMOBILIARE di Cecina propone in vendita questo immobile, contattali subito!

Annunci simili

Annunci immobiliari a Cecina (LI)

Copyright Š 2026 PCase.it. All rights reserved. Sede operativa MILANO. P.IVA 08508420968 - Condizioni d'uso e privacy