Preferiti

Sponsorizza

Stampa

Villa in vendita con giardino a Castelfiorentino

  • 325.000€
  • 4 locali
  • 103 mq
  • Vendesi

***.*******.** 2691 - **Proponiamo in Vendita: Appartamento di Nuova Costruzione a Castelfiorentino** Sognate di vivere in un luogo incantevole, tranquillo, riservato ma vicino a tutti i confort del paese? Nel Comune di Castelfiorentino, in una prestigiosa zona residenziale collinare, abbiamo il piacere di presentarvi un appartamento di nuova costruzione, perfetto per chi cerca comfort, privacy e stile di vita. Posizionato sulla sommità della lottizzazione residenziale, questo immobile gode di un panorama straordinario.
Ma non è tutto: potrete raggiungere facilmente anche a piedi tutti i principali servizi che il paese ha da offrire, rendendo la vostra vita quotidiana comoda e pratica.
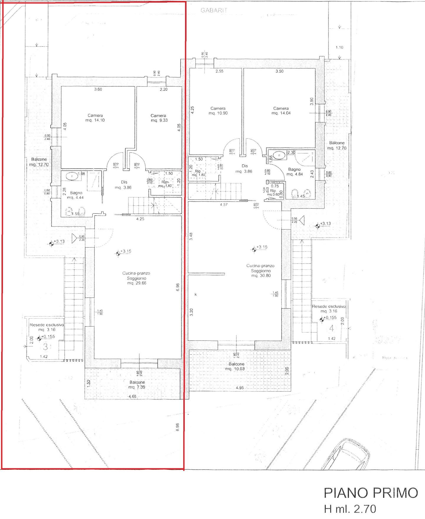
L'appartamento presenta un ingresso indipendente e si sviluppa su due livelli.
Al primo piano, verrete accolti da unampia cucina/soggiorno, illuminata da grandi vetrate che regalano calore e luminosità all'ambiente.
Qui troverete anche un disimpegno, due camere accoglienti di cui una matrimoniale, un bagno finestrato e un utile ripostiglio.
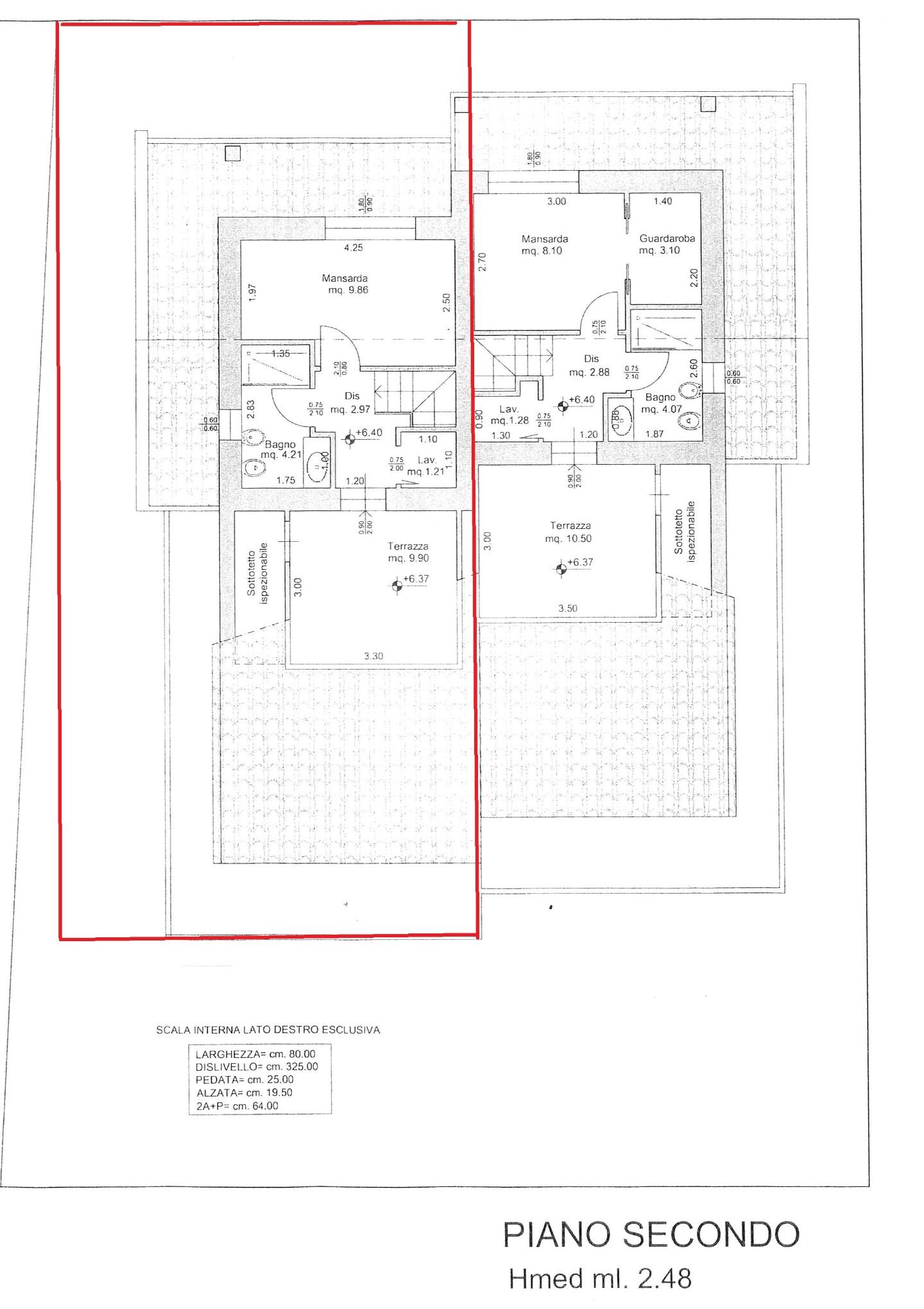
Salendo tramite una scala interna, accedete al secondo piano, dove si trova una mansarda particolarmente luminosa, ideale per ricavare una terza camera matrimoniale.
Anche in questo livello troverete un secondo bagno completo ed una piccola lavanderia.
Inoltre, dalla mansarda potrete affacciarvi su un ampio terrazzo abitabile, perfetto per trascorrere momenti di relax e godere della meravigliosa vista sul paese.
A completare questa straordinaria proprietà, troverete unautorimessa esclusiva e un grazioso resede esterno privato, dove poter organizzare cene all'aperto o semplicemente godervi un momento di tranquillità immersi nel verde.
Non lasciatevi sfuggire questa opportunità unica! Contattateci per maggiori informazioni e per fissare una visita.
Il vostro nuovo sogno abitativo vi aspetta a Castelfiorentino! LAgenzia PETRIMMOBILIARE ci tiene a precisare che per motivi di privacy la posizione riportata su mappa in certi casi può essere soltanto indicativa della zona, così come le piantine degli immobili (quando presenti) servono esclusivamente ad illustrare e far capire la disposizione degli interni.
Per tutte le precisazioni necessarie e la documentazione ufficiale, potete recarvi presso i nostri uffici a Castelfiorentino, in ***.*******.** A. Gramsci, 50/51. Telefono 0571629610, siamo a vostra disposizione.
Per identificare immediatamente lannuncio, prendete nota del codice di riferimento che identifica in maniera univoca ogni nostra offerta.
La nostra agenzia non utilizza annunci civetta, ma tutti gli annunci che vengono pubblicati sono reali, regolarmente revisionati ed aggiornati alloccorrenza. Contatta l'inserzionista

PETRIMMOBILIAREPETRIMMOBILIARE
Piazza Gramsci, 50
, Castelfiorentino (Firenze)
Visualizza Telefono

INFORMAZIONI SULL'IMMOBILE

  • Riferimento: 1395450/93/2691
  • Tipologia: Duplex in Vendita
  • Locali: 4 Locali (3 camere, cucina angolo cottura con doppi servizi)
  • Stato: Nuovo
  • Prezzo: 325.000 €
  • Prezzo al mq: 3.155 €
  • Terrazzi: 3 - 3 Mq
  • Riscaldamento: Autonomo
  • Giardino: Privato - 75 Mq
  • Mansarda: Si
  • Modificato il: 18/02/2026
  • Scheda: SC9603880

Stabile

  • Piani Totali: 2
I.P.E.
100Kwh/m2
A+

Mappa e indirizzo

50051 Castelfiorentino (Firenze)
mappa mostra l'annuncio su mappa

Galleria Fotografica

Contatta l'inserzionista

PETRIMMOBILIARE

PETRIMMOBILIARE di Castelfiorentino propone in vendita questo immobile, contattali subito!

Annunci immobiliari a Castelfiorentino (FI)

Copyright Š 2026 PCase.it. All rights reserved. Sede operativa MILANO. P.IVA 08508420968 - Condizioni d'uso e privacy