Preferiti

Sponsorizza

Stampa

Villa in vendita con giardino a San Giuliano Terme - ghezzano

  • 620.000€
  • zona ghezzano
  • 5 locali
  • 165 mq
  • Vendesi

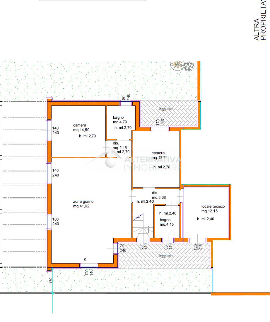
***.*******.** VIA3082 - RIF. VIA3082 - VILLA BIFAMILIARE DI NUOVA COSTRUZIONE GHEZZANO In contesto tranquillo e riservato, ma allo stesso tempo vicino a tutti i servizi, proponiamo in vendita villa bifamiliare di nuova costruzione, realizzata da un'impresa con più di 50 anni di esperienza sul territorio, con materiali e tecnologie di ultima generazione.
Da cancello automatizzato esclusivo si accede al giardino privato di generose metrature, dove è già presente un loggiato di circa 40 mq; vi è inoltre la possibilità di realizzare un casottino in legno di circa 12 mq. La posizione regala una vista mozzafiato sui Monti Pisani, un vero angolo di pace a pochi minuti dal centro.
Internamente la proprietà si svolge comodamente al piano terra: ampio soggiorno con cucina a vista, due camere spaziose, di cui una matrimoniale, due bagni e altro vano da cui è possibile ricavare una terza camera.
Da scala in legno si accede al sottotetto praticabile: un ulteriore spazio versatile, dove è possibile realizzare anche una quarta camera.
Questa è una soluzione perfetta per chi sta cercando una dimora funzionale e ampia, per chi ama la privacy e la natura ma non vuole rinunciare alla vicinanza dei servizi e della città! L'immobile sarà inoltre dotato di impianto fotovoltaico e riscaldamento a pavimento.
Consegna prevista: inizio 2027. Contatta l'inserzionista

ALTERNATIVA ImmobiliareALTERNATIVA Immobiliare
Via Carducci, 60/B
, San Giuliano Terme (Pisa)
Visualizza Telefono

INFORMAZIONI SULL'IMMOBILE

  • Riferimento: 1374457/22/VIA3082
  • Tipologia: Villetta bifamiliare in Vendita
  • Locali: 5 Locali
  • Stato: Nuovo
  • Bagni: 2
  • Cucina: A vista
  • Prezzo: 620.000 €
  • Prezzo al mq: 3.758 €
  • Riscaldamento: Autonomo
  • Giardino: Privato
  • Mansarda: Si
  • Modificato il: 23/04/2026
  • Scheda: SC9515268

Stabile

  • Piani Totali: 2
I.P.E.
46,64Kwh/m2
A+

Mappa e indirizzo

56017 San Giuliano Terme (Pisa), zona ghezzano
mappa mostra l'annuncio su mappa

Galleria Fotografica

Contatta l'inserzionista

ALTERNATIVA Immobiliare

ALTERNATIVA Immobiliare di San Giuliano Terme propone in vendita questo immobile, contattali subito!

Annunci simili

Annunci immobiliari a San Giuliano Terme (PI)

Copyright Š 2026 PCase.it. All rights reserved. Sede operativa MILANO. P.IVA 08508420968 - Condizioni d'uso e privacy