Preferiti

Sponsorizza

Stampa

Villa in vendita con giardino a Pescia - collodi

  • 355.000€
  • zona collodi
  • 4 locali
  • 115 mq
  • Vendesi

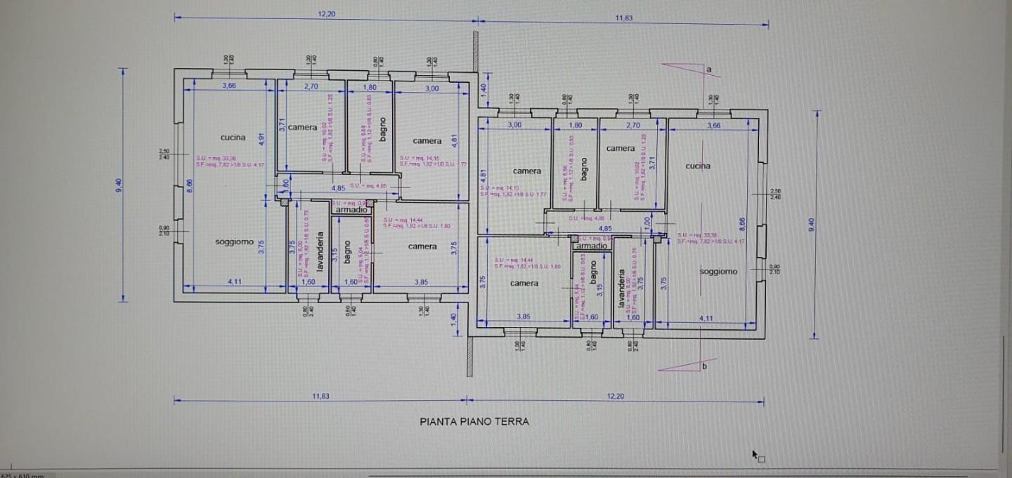
***.*******.** F260 - Collodi ( Pescia) - "Fabbricato A" - Prossima nuova realizzazione di villetta bifamiliare tutta su un piano tipo "viareggina" libera su 3 lati di circa 115 mq composta da: soggiorno con cucina open space, 2 camere matrimoniali di cui una con bagno in camera , 1 camera singola, bagno principale e zona lavanderia.
A corredo giardino privato di circa 345 mq + 2 posti auto privati all' interno della proprietà. L immobile verrà consegnato in classe energetica A/4 con infissi in doppi vetri in pvc, predisposizione aria condizionata e allarme, e fotovoltaico di 2,5 kw. Possibilità di suddivisone degli interni e scelta dei materiali.
Tempistiche di consegna entro giugno 2026. Ottima posizione e vicina ai servizi!!! Vende una società quindi immobile soggetto a iva al 4%. Contatta l'inserzionista

GUERRAZZI Agenzia ImmobiliareGUERRAZZI Agenzia Immobiliare
Via Giacomo Puccini, 2430
, Porcari (Lucca)
Visualizza Telefono

INFORMAZIONI SULL'IMMOBILE

  • Riferimento: 1325628/1208/F260
  • Tipologia: Villetta bifamiliare in Vendita
  • Locali: 4 Locali (3 camere, cucina abitabile con doppi servizi)
  • Piano: Terra
  • Stato: Nuovo
  • Prezzo: 355.000 €
  • Prezzo al mq: 3.087 €
  • Riscaldamento: Autonomo
  • Giardino: Privato - 345 Mq
  • Modificato il: 23/10/2025
  • Scheda: SC9390258

Stabile

  • Piano: Terra
I.P.E.
62,36Kwh/m2
A+

Mappa e indirizzo

51017 Pescia (Pistoia), zona collodi
mappa mostra l'annuncio su mappa

Galleria Fotografica

Contatta l'inserzionista

GUERRAZZI Agenzia Immobiliare

GUERRAZZI Agenzia Immobiliare di Porcari propone in vendita questo immobile, contattali subito!

Annunci simili

Annunci immobiliari a Pescia (PT)

Copyright Š 2026 PCase.it. All rights reserved. Sede operativa MILANO. P.IVA 08508420968 - Condizioni d'uso e privacy