Preferiti

Sponsorizza

Stampa

Ufficio in vendita a Rosignano Marittimo - rosignano solvay

  • 75.000€
  • zona rosignano solvay
  • 2 locali
  • 83 mq
  • Vendesi

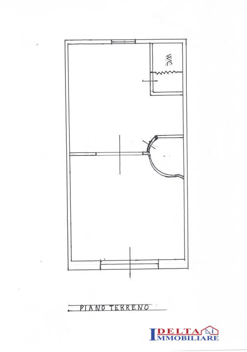
ROSIGNANO SOLVAY Vendesi fondo commerciale in zona di ottimo passaggio affacciato su strada principale con facilità di parcheggio.
Il locale è completo di servizio igienico ed è già predisposto per essere collegato con scala interna, al magazzino situato nel seminterrato ( e perfettamente coincidente con la pianta del fondo) . La Superficie del fondo è di circa 43 mq netti.
mentre la superficie del magazzino è di 40mq netti . Il fondo è dotato di bagno e ripostiglio attualmente è suddiviso in 2 vani ma facilmente utilizzabile in open space.
L'immobile è dotato di condizionatori caldo/freddo .***.*******.** accede al magazzino seminterrato anche da corte condominiale situata sul retro dell'edificio tramite cancello carrabile.
Su tale corte è consentito il ricovero moto e cicli . Prezzo 75.000,00 and euro; rif. F0001 - Maggiori Dettagli: Giardino, Cantina Contatta l'inserzionista

Agenzia Delta ImmobiliareAgenzia Delta Immobiliare
Via Aurelia, 355
57016, Rosignano Marittimo (Livorno)
Visualizza Telefono

INFORMAZIONI SULL'IMMOBILE

  • Tipologia: Ufficio in Vendita
  • Locali: 2 Locali ( 1 camera e un bagno)
  • Prezzo: 75.000 €
  • Prezzo al mq: 904 €
  • Modificato il: 15/01/2026
  • Scheda: SC9547595

Stabile

G

Mappa e indirizzo

57016 Rosignano Marittimo (Livorno), zona rosignano solvay
mappa mostra l'annuncio su mappa

Contatta l'inserzionista

Agenzia Delta Immobiliare

Agenzia Delta Immobiliare di Rosignano Marittimo propone in vendita questo immobile, contattali subito!

Annunci simili

Annunci immobiliari a Rosignano Marittimo (LI)

Copyright Š 2026 PCase.it. All rights reserved. Sede operativa MILANO. P.IVA 08508420968 - Condizioni d'uso e privacy