Preferiti

Sponsorizza

Stampa

Ufficio in vendita da ristrutturare a Serra Riccò in via privata don mario bordo 15

  • 21.959€
  • 3 locali
  • 89 mq
  • Vendesi

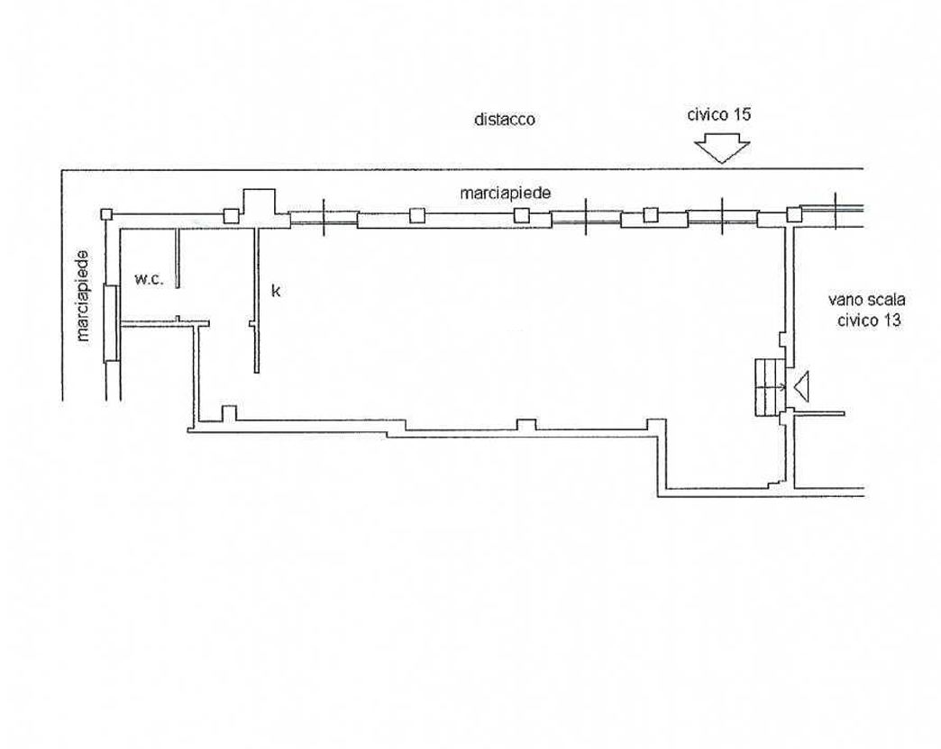
PIENA PROPRIETA' DI LOCALE A SERRA RICCO' (GE) IN VIA PRIVATA DON MARIO BORDO 15 AL PIANO TERRA LEGITTIMATO URBANISTICAMENTE COME UFFICIO (ACCATASTATO COME ABITAZIONE CAT. A/3), COMPOSTO DA UN OPEN SPACE CON ANNESSO BAGNO.
SUPERFICIE CATASTALE 89 MQ. CLASSE ENERGETICA F. - Il Prezzo visualizzato è la Base d'Asta in quanto limmobile è oggetto di esecuzione immobiliare venduto tramite Asta Giudiziaria.
- L'immobile aggiudicato, viene venduto libero e sgombro da persone cose ed ipoteche nello stato di fatto e di diritto in cui si trova.
- Non rappresentiamo il Tribunale, ma lavoriamo nell'esclusivo interesse del potenziale acquirente per garantire un acquisto sicuro.
- I consulenti di ASTE ITALIA ti assisteranno in tutte le attività dell'iter giudiziario dalla visita dell'immobile fino alla consegna chiavi.
- Contatta il nostro Servizio Clienti , i nostri operatori sono a disposizione per chiarire i molteplici dubbi per partecipare alle ASTE. Contatta l'inserzionista

DOMY ONLINE S.R.L.DOMY ONLINE S.R.L.
Via San Lorenzo 5 Int. 41
16123, Genova (Genova)
Visualizza Telefono

INFORMAZIONI SULL'IMMOBILE

  • Riferimento: GE520/24L13-1307-26-
  • Tipologia: Ufficio in Vendita
  • Locali: 3 Locali (2 camere e un bagno)
  • Piano: Terra
  • Stato: da Ristrutturare
  • Prezzo: 21.959 €
  • Prezzo al mq: 247 €
  • Modificato il: 29/04/2026
  • Scheda: SC9645631

Stabile

  • Piano: Terra
F

Mappa e indirizzo

Ufficio sito in via privata don mario bordo 15
16010 Serra Riccò (Genova)
mappa mostra l'annuncio su mappa

Galleria Fotografica

Contatta l'inserzionista

DOMY ONLINE S.R.L.

DOMY ONLINE S.R.L. di Genova propone in vendita questo immobile, contattali subito!

Annunci immobiliari a Serra Riccò (GE)

Copyright © 2026 PCase.it. All rights reserved. Sede operativa MILANO. P.IVA 08508420968 - Condizioni d'uso e privacy